レオパレスアゼリア 物件詳細情報
| 沿線・駅 所在地 |
賃料 共益費(管理費) |
敷金 礼金 |
間取り 専有面積 |
種別 建築年月日 |
|
|---|---|---|---|---|---|
|
しなの鉄道 信濃国分寺駅(徒歩21分)
長野県上田市古里1578−14 |
51,000円 5,000円 |
- 51,000円 |
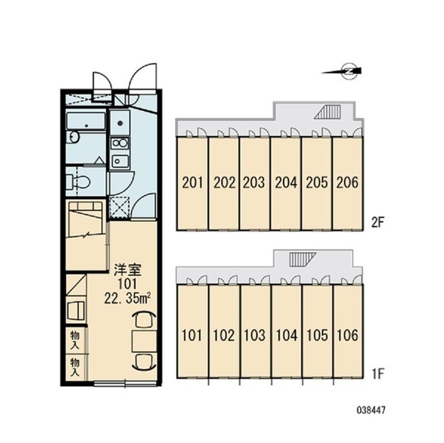
1K 22.35m2 |
アパート 2008年10月 |
|
この物件のお問い合わせ番号 5054-2010018875-0002

- 信濃国分郵便局

- アメリカンドラッグ上田国分店

- ケーズデンキ上田店

- A・コープファーマーズうえだ店
設備
| 部屋設備 | TV付モニターホン / 冷蔵庫 / エアコン / テレビ / ベッド / 照明器具 / 浴室乾燥機 / バストイレ別 / シャワー付トイレ |
|---|---|
| 建物設備 | 駐輪場 |
物件詳細
| 交通機関 | ・しなの鉄道 信濃国分寺駅(徒歩21分) ・しなの鉄道 上田駅(徒歩38分) | ||||
|---|---|---|---|---|---|
| 構造 | 軽量鉄骨造 | 方位 | 西 | 階数/総階数 | 2階/2階建て |
| 総戸数 | 12戸 | 駐車場 | 3,300円 | 入居日 | 2026年3月下旬 |
| 環境 | ケーズデンキ上田店 (475m) / 信濃国分郵便局 (1,537m) / 上田信用金庫本店営業店 (1,221m) / アメリカンドラッグ上田国分店 (457m) / A・コープファーマーズうえだ店 | ||||
| 内装代 | - | 償却 | - | 保険 | 損保要 |
| 更新料 | 16,500円 | 水道料金等預かり金 | - | 特記事項 | - |
| 飲用水 | - | ガス | - | 排水 | - |
| 給湯方式 | - | ||||
その他の費用
| 毎月 | 環境維持費:550円 |
|---|---|
| 一時 | カギ交換代:16,500円/退去清掃費:41,800円 |
この物件のお問い合わせ番号 5054-2010018875-0002
類似物件一覧
-
4.5万円
45,000円
-
-
4.1万円
82,000円
-
1K
長野県上田市蒼久保 -
4.5万円
45,000円
45,000円
1K
長野県上田市諏訪形 -
3.8万円
-
-
1K
長野県上田市踏入2丁目 -
5.2万円
-
-
1K
長野県上田市神畑 -
4.7万円
47,000円
-
1K
長野県上田市国分 -
3.8万円
38,000円
38,000円
1K
長野県上田市常入1丁目 -
4.8万円
48,000円
48,000円
1K
長野県上田市常入1丁目 -
4.0万円
40,000円
-
1R
長野県上田市下之郷 -
4.0万円
40,000円
-
1K
長野県上田市下之郷 -
4.5万円
45,000円
-
1K
長野県上田市住吉 -
4.0万円
80,000円
-
1K
長野県上田市大屋
店舗情報
お電話での物件問い合わせは無料通話で!(直営店のみ)
5054-2010018875-0002
- FC上田店
- 北陸新幹線 上田駅(徒歩25分)
- Tel: 0268-28-1818
- 店舗詳細情報
このお部屋にお問い合わせ
あわせて店舗への来店を希望のお客様は、上の希望店舗の来店予約フォームをご利用ください(直営店舗のみ)
Sorry,Japanese & English only. 日本語・英語のみ対応しております。ご了承ください。
- ※取扱形態は仲介です。 / お部屋の情報は随時更新です / 各種情報と現況に差異がある場合は、現況優先となります。 / 保証会社の審査があります。 / 契約一時金は、契約時に借主より貸主に支払われ返還されない金銭です。

この物件のかんたんお問合せフォーム
お電話でお問合せ
外観・間取り図




















長野県上田市住吉