ポラリス 物件詳細情報
| 沿線・駅 所在地 |
賃料 共益費(管理費) |
敷金 礼金 |
間取り 専有面積 |
種別 建築年月日 |
|
|---|---|---|---|---|---|
|
いわて銀河鉄道 青山駅(徒歩13分)
岩手県盛岡市大新町 |
78,000円 - |
- - |
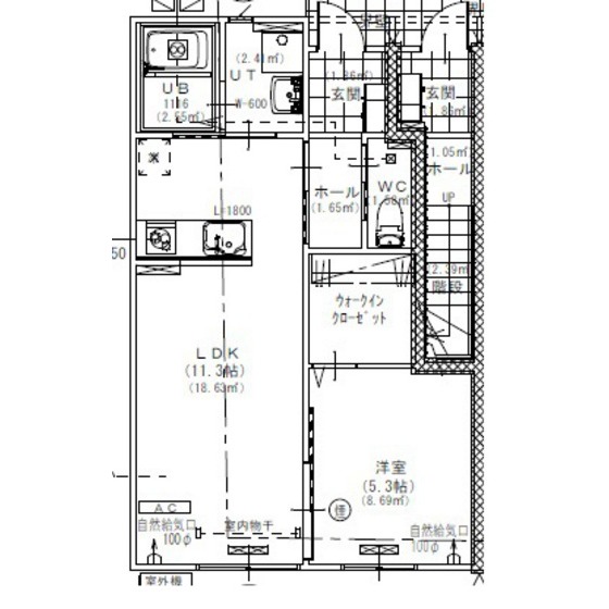
1LDK 40.57m2 |
アパート 2026年5月 |
|
この物件のお問い合わせ番号 5039-0310008154-0001

- 盛岡市立大新小学校

- 盛岡市立厨川中学校
設備
| 部屋設備 | TV付モニターホン / エアコン / 照明器具 / シャワー / 浴室乾燥機 / 追焚き / バストイレ別 / 駐車場2台可能 / 2人入居 / シャワー付トイレ / クロゼット / 洗面所独立 |
|---|---|
| 建物設備 | ペット可 / ネット利用料無料 |
物件詳細
| 交通機関 | ・いわて銀河鉄道 青山駅(徒歩13分) ・東北新幹線 盛岡駅(徒歩31分) ・東北本線 盛岡駅(徒歩31分) | ||||
|---|---|---|---|---|---|
| 構造 | 木造 | 方位 | 南 | 階数/総階数 | 1階/2階建て |
| 総戸数 | 16戸 | 駐車場 | 無料 | 入居日 | 2026年6月中旬 |
| 環境 | 私立江南義塾盛岡高校 (580m) / 盛岡市立大新小学校 (367m) / 盛岡市立厨川中学校 (1,459m) / 大新保育園 (535m) / 国立大学法人岩手大学 (2,418m) | ||||
| 内装代 | - | 償却 | - | 保険 | 損保要 |
| 更新料 | - | 水道料金等預かり金 | - | 特記事項 | - |
| 飲用水 | - | ガス | - | 排水 | - |
| 給湯方式 | - | ||||
この物件のお問い合わせ番号 5039-0310008154-0001
類似物件一覧
-
5.9万円
59,000円
-
-
8.3万円
-
124,500円
1LDK
岩手県盛岡市本宮4丁目 -
5.8万円
58,000円
58,000円
1LDK
岩手県盛岡市西青山2丁目 -
8.6万円
-
-
1LDK
岩手県盛岡市向中野6丁目 -
8.3万円
-
-
1LDK
岩手県盛岡市向中野6丁目 -
6.5万円
-
-
1LDK
岩手県盛岡市上堂1丁目 -
5.8万円
58,000円
-
1LDK
岩手県盛岡市三本柳9地割 -
6.1万円
-
61,000円
1LDK
岩手県盛岡市北飯岡2丁目 -
8.1万円
-
81,000円
1LDK
岩手県盛岡市本宮4丁目 -
5.5万円
110,000円
55,000円
1DK
岩手県盛岡市大沢川原2丁目 -
6.3万円
63,000円
-
1LDK
岩手県盛岡市前九年2丁目 -
6.2万円
-
62,000円
1LDK
岩手県盛岡市北飯岡2丁目
店舗情報
お電話での物件問い合わせは無料通話で!(直営店のみ)
5039-0310008154-0001
- FC盛岡駅前大通店
- 東北本線 盛岡駅(徒歩9分)
- Tel: 019-604-3456
- 店舗詳細情報
このお部屋にお問い合わせ
あわせて店舗への来店を希望のお客様は、上の希望店舗の来店予約フォームをご利用ください(直営店舗のみ)
Sorry,Japanese & English only. 日本語・英語のみ対応しております。ご了承ください。
- ※取扱形態は仲介です。 / お部屋の情報は随時更新です / 各種情報と現況に差異がある場合は、現況優先となります。 / 保証会社の審査があります。 / 契約一時金は、契約時に借主より貸主に支払われ返還されない金銭です。

この物件のかんたんお問合せフォーム
お電話でお問合せ
外観・間取り図







岩手県盛岡市三本柳9地割