メゾンサウスアベニュー 物件詳細情報
| 沿線・駅 所在地 |
賃料 共益費(管理費) |
敷金 礼金 |
間取り 専有面積 |
種別 建築年月日 |
|
|---|---|---|---|---|---|
|
東北本線 仙北町駅(徒歩18分)
岩手県盛岡市南大通1丁目 |
62,000円 3,000円 |
124,000円 - |
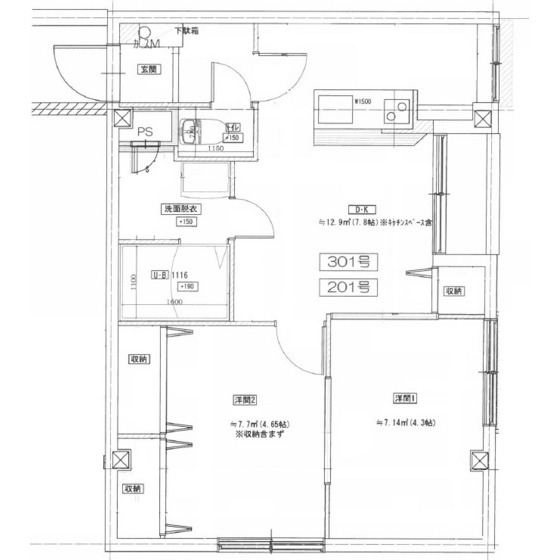
2DK 46.69m2 |
マンション 1983年10月 |
|
この物件のお問い合わせ番号 5039-0310005611-0006
外観・間取り図
情報登録日:2026/03/16 情報更新日:2026/03/17 次回更新予定日:2026/03/24
設備
| 部屋設備 | TV付モニターホン / 下駄箱 / IHヒーター / エアコン / フローリング / 照明器具 / シャワー / 洗髪洗面化粧台 / 室内洗濯機置場 / バストイレ別 / コンロ(コンロ(2口)) / シャワー付トイレ / クロゼット / 洗面所独立 / システムキッチン |
|---|---|
| 建物設備 | ペット可 |
物件詳細
| 交通機関 | ・東北本線 仙北町駅(徒歩18分) ・東北新幹線 盛岡駅(徒歩29分) ・田沢湖線 盛岡駅(バス15分 ・南大通一丁目停、 徒歩2分) | ||||
|---|---|---|---|---|---|
| 構造 | 重量鉄骨造 | 方位 | 南西 | 階数/総階数 | 2階/3階建て |
| 総戸数 | 9戸 | 駐車場 | - | 入居日 | 2026年4月下旬 |
| 環境 | 岩手県立盛岡第二高校 (1,135m) / 盛岡市立城南小学校 (1,160m) / 盛岡市立城東中学校 (1,825m) / 盛岡市立とりょう保育園 (677m) / 私立岩手医科大学 (1,519m) | ||||
| 内装代 | - | 償却 | - | 保険 | 損保要 |
| 更新料 | - | 水道料金等預かり金 | - | 特記事項 | - |
| 飲用水 | - | ガス | - | 排水 | - |
| 給湯方式 | - | ||||
この物件のお問い合わせ番号 5039-0310005611-0006
類似物件一覧
-
5.0万円
100,000円
-
-
6.8万円
-
-
2LDK
岩手県盛岡市津志田中央1丁目 -
7.8万円
-
-
2LDK
岩手県盛岡市向中野5丁目 -
6.2万円
62,000円
62,000円
2LDK
岩手県盛岡市北天昌寺町 -
5.9万円
-
-
2DK
岩手県盛岡市津志田南3丁目 -
6.0万円
120,000円
-
2DK
岩手県盛岡市新田町 -
6.3万円
63,000円
-
2K
岩手県盛岡市本町通2丁目 -
4.7万円
-
-
2K
岩手県盛岡市高松2丁目 -
4.7万円
47,000円
-
2K
岩手県盛岡市神明町 -
5.0万円
100,000円
-
2K
岩手県盛岡市南青山町 -
5.4万円
54,000円
54,000円
2DK
岩手県盛岡市西青山3丁目 -
4.5万円
-
-
2K
岩手県盛岡市上堂1丁目
店舗情報
お電話での物件問い合わせは無料通話で!(直営店のみ)
5039-0310005611-0006
- FC盛岡駅前大通店
- 東北本線 盛岡駅(徒歩9分)
- Tel: 019-604-3456
- 店舗詳細情報
このお部屋にお問い合わせ
あわせて店舗への来店を希望のお客様は、上の希望店舗の来店予約フォームをご利用ください(直営店舗のみ)
Sorry,Japanese & English only. 日本語・英語のみ対応しております。ご了承ください。
- ※取扱形態は仲介です。 / お部屋の情報は随時更新です / 各種情報と現況に差異がある場合は、現況優先となります。 / 保証会社の審査があります。 / 契約一時金は、契約時に借主より貸主に支払われ返還されない金銭です。

この物件のかんたんお問合せフォーム
お電話でお問合せ















岩手県盛岡市茶畑1丁目