アート塚本 物件詳細情報
| 沿線・駅 所在地 |
賃料 共益費(管理費) |
敷金 礼金 |
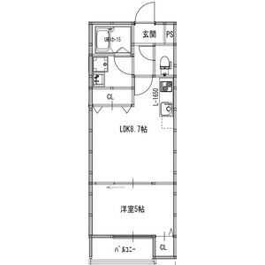
間取り 専有面積 |
種別 建築年月日 |
|
|---|---|---|---|---|---|
|
JR東海道本線 塚本駅(徒歩7分)
大阪府大阪市西淀川区柏里1丁目 |
74,000円 6,000円 |
- 74,000円 |
1LDK 34.13m2 |
アパート 2024年1月 |
|
この物件のお問い合わせ番号 0001-F000139240-0001

- 【スーパー】サンディ 塚本店

- 【スーパー】ライフ 塚本店

- 【コンビニエンスストア】ミニストップ 柏里2丁目店

- 【コンビニエンスストア】セブンイレブン ハートインJR塚本駅西口店

- 【コンビニエンスストア】ローソン 淀川塚本一丁目店

- 【コンビニエンスストア】ファミリーマート西淀川柏里店

- 【ドラッグストア】スギドラッグ 塚本店

- 【書店】こうらく書店
設備
| 部屋設備 | TV付モニターホン / 下駄箱 / エアコン / フローリング / バルコニー / シャワー / 浴室乾燥機 / 洗髪洗面化粧台 / 追焚き / バストイレ別 / シャワー付トイレ / クロゼット / 洗面所独立 / システムキッチン |
|---|---|
| 建物設備 | オートロック / 駐輪場 / バリアフリー / バイク置き場 / ネット利用料無料 / 防犯カメラ |
物件詳細
| 交通機関 | ・JR東海道本線 塚本駅(徒歩7分) ・阪神電鉄本線 姫島駅(徒歩19分) | ||||
|---|---|---|---|---|---|
| 構造 | 木造 | 方位 | 南西 | 階数/総階数 | 1階/3階建て |
| 総戸数 | 12戸 | 駐車場 | - | 入居日 | 2026年5月下旬 |
| 環境 | 【スーパー】サンディ 塚本店 (557m) / 【スーパー】ライフ 塚本店 (494m) / 【コンビニエンスストア】ミニストップ 柏里2丁目店 (577m) / 【コンビニエンスストア】セブンイレブン ハートインJR塚本駅西口店 (471m) / 【コンビニエンスストア】ローソン 淀川塚本一丁目店 (183m) / 【コンビニエンスストア】ファミリーマート西淀川柏里店 (373m) / 【ドラッグストア】スギドラッグ 塚本店 (505m) / 【書店】こうらく書店 (598m) / コンビニ (577m) / スーパー (557m) | ||||
| 内装代 | - | 償却 | 0円 | 保険 | 損保要 |
| 更新料 | 44,000円 | 水道料金等預かり金 | - | 特記事項 | - |
| 飲用水 | - | ガス | - | 排水 | その他 |
| 給湯方式 | - | ||||
その他の費用
| 一時 | 退去時ハウスクリーニング代:38,500円/退去時エアコンクリーニング代(台):16,500円/契約事務手数料:22,000円 |
|---|---|
| 他 | 初回保証料:総賃料の100%月額2,490円(引落し手数料、火災保険、24時間緊急駆けつけサポート帯)年間保証料:10,000円 |
この物件のお問い合わせ番号 0001-F000139240-0001
類似物件一覧
-
9.3万円
-
-
-
7.0万円
-
1.0ヶ月
1LDK
大阪府大阪市西淀川区福町2丁目 -
9.1万円
-
-
1LDK
大阪府大阪市西淀川区柏里2丁目 -
7.7万円
-
80,000円
1LDK
大阪府大阪市西淀川区大野3丁目 -
7.7万円
-
100,000円
1LDK
大阪府大阪市西淀川区御幣島4丁目 -
7.4万円
-
1.0ヶ月
1LDK
大阪府大阪市西淀川区柏里1丁目 -
7.3万円
-
110,000円
1LDK
大阪府大阪市西淀川区出来島1丁目 -
9.0万円
20,000円
150,000円
1LDK
大阪府大阪市西淀川区柏里3丁目 -
9.2万円
-
-
1LDK
大阪府大阪市西淀川区柏里2丁目 -
9.1万円
-
-
1LDK
大阪府大阪市西淀川区柏里2丁目 -
8.8万円
-
-
1DK
大阪府大阪市西淀川区柏里1丁目 -
7.0万円
-
1.0ヶ月
1LDK
大阪府大阪市西淀川区福町2丁目
店舗情報
お電話での物件問い合わせは無料通話で!(直営店のみ)
0001-F000139240-0001
- FC本町店
- 御堂筋線 本町駅(徒歩1分)
- Tel: 06-6253-4455
- 店舗詳細情報
このお部屋にお問い合わせ
あわせて店舗への来店を希望のお客様は、上の希望店舗の来店予約フォームをご利用ください(直営店舗のみ)
Sorry,Japanese & English only. 日本語・英語のみ対応しております。ご了承ください。
- ※取扱形態は媒介(先物)です。 / お部屋の情報は随時更新です / 各種情報と現況に差異がある場合は、現況優先となります。 / 保証会社の審査があります。 / 契約一時金は、契約時に借主より貸主に支払われ返還されない金銭です。

この物件のかんたんお問合せフォーム
お電話でお問合せ
外観・間取り図











大阪府大阪市西淀川区柏里2丁目