シャルマンフジスマート住之江ファミリア 物件詳細情報
| 沿線・駅 所在地 |
賃料 共益費(管理費) |
敷金 礼金 |
間取り 専有面積 |
種別 建築年月日 |
|
|---|---|---|---|---|---|
|
南海電鉄本線 住ノ江駅(徒歩8分)
大阪府大阪市住之江区浜口西3丁目 |
125,000円 - |
- 300,000円 |
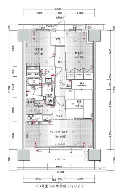
3LDK 70.85m2 |
マンション 2015年6月 |
|
この物件のお問い合わせ番号 0001-F000139150-0001

- 【ドラッグストア】クオール薬局住之江北島店

- 【市役所・区役所】大阪市住之江区役所

- 【スーパー】スーパーSANKO(サンコー) 住之江店

- 【郵便局】住之江南加賀屋郵便局

- 【コンビニエンスストア】ファミリーマート MYS西住之江二丁目店
設備
| 部屋設備 | バルコニー / 追焚き / バストイレ別 / 洗面所独立 / カウンターキッチン |
|---|---|
| 建物設備 | エレベータ / オートロック / 駐輪場 / 宅配ボックス / 防犯カメラ |
物件詳細
| 交通機関 | ・南海電鉄本線 住ノ江駅(徒歩8分) ・阪堺電気軌道阪堺線 安立町駅(徒歩10分) | ||||
|---|---|---|---|---|---|
| 構造 | RC造 | 方位 | 南 | 階数/総階数 | 2階/13階建て |
| 総戸数 | - | 駐車場 | - | 入居日 | 即入居可 |
| 環境 | 【ドラッグストア】クオール薬局住之江北島店 (1,089m) / 【市役所・区役所】大阪市住之江区役所 (435m) / 【スーパー】スーパーSANKO(サンコー) 住之江店 (801m) / 【郵便局】住之江南加賀屋郵便局 (1,116m) / 【コンビニエンスストア】ファミリーマート MYS西住之江二丁目店 (464m) / コンビニ (464m) / スーパー (801m) | ||||
| 内装代 | - | 償却 | 0円 | 保険 | 損保要 |
| 更新料 | - | 水道料金等預かり金 | - | 特記事項 | - |
| 飲用水 | - | ガス | - | 排水 | その他 |
| 給湯方式 | - | ||||
この物件のお問い合わせ番号 0001-F000139150-0001
類似物件一覧
店舗情報
お電話での物件問い合わせは無料通話で!(直営店のみ)
0001-F000139150-0001
- FC本町店
- 御堂筋線 本町駅(徒歩1分)
- Tel: 06-6253-4455
- 店舗詳細情報
このお部屋にお問い合わせ
あわせて店舗への来店を希望のお客様は、上の希望店舗の来店予約フォームをご利用ください(直営店舗のみ)
Sorry,Japanese & English only. 日本語・英語のみ対応しております。ご了承ください。
- ※取扱形態は媒介(先物)です。 / お部屋の情報は随時更新です / 各種情報と現況に差異がある場合は、現況優先となります。 / 保証会社の審査があります。 / 契約一時金は、契約時に借主より貸主に支払われ返還されない金銭です。

この物件のかんたんお問合せフォーム
お電話でお問合せ
外観・間取り図











大阪府大阪市住之江区浜口西3丁目