AXIA CITY大阪淡路 物件詳細情報
| 沿線・駅 所在地 |
賃料 共益費(管理費) |
敷金 礼金 |
間取り 専有面積 |
種別 建築年月日 |
|
|---|---|---|---|---|---|
|
おおさか東線 JR淡路駅(徒歩8分)
大阪府大阪市東淀川区菅原3丁目 |
68,000円 4,000円 |
- 68,000円 |
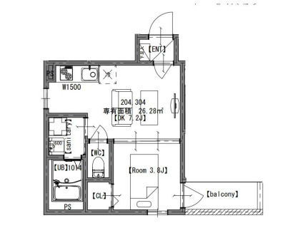
1DK 26.28m2 |
マンション 2026年3月 |
|
この物件のお問い合わせ番号 0001-F000138365-0007

- 【ショッピングセンター】イオンスタイル東淀川

- 【家電製品】エディオン(東淡路)

- 【その他】ゲオ

- 【その他】医誠会病院

- 【スーパー】ライフ(東淡路)

- 【ゲームセンター】ラウンドワン 東淀川店

- 【郵便局】東淀川郵便局

- 【スーパー】Izumiya(イズミヤ) 淡路店

- 【スーパー】アカシヤ 淡路店
設備
| 部屋設備 | TV付モニターホン / 下駄箱 / IHヒーター / エアコン / フローリング / バルコニー / シャワー / 浴室乾燥機 / 洗髪洗面化粧台 / 室内洗濯機置場 / バストイレ別 / コンロ(コンロ(2口)) / 角部屋 / 2人入居 / シャワー付トイレ / クロゼット / 洗面所独立 / システムキッチン |
|---|---|
| 建物設備 | オートロック / 駐輪場 / 宅配ボックス / CATV / ネット利用料無料 |
物件詳細
| 交通機関 | ・おおさか東線 JR淡路駅(徒歩8分) ・阪急電鉄京都線 淡路駅(徒歩12分) | ||||
|---|---|---|---|---|---|
| 構造 | 鉄骨造 | 方位 | 北東 | 階数/総階数 | 3階/4階建て |
| 総戸数 | 20戸 | 駐車場 | 19,800円 | 入居日 | 即入居可 |
| 環境 | 【ショッピングセンター】イオンスタイル東淀川 (560m) / 【家電製品】エディオン(東淡路) (487m) / 【その他】ゲオ (559m) / 【その他】医誠会病院 (292m) / 【スーパー】ライフ(東淡路) (456m) / 【ゲームセンター】ラウンドワン 東淀川店 (490m) / 【郵便局】東淀川郵便局 (1,062m) / 【スーパー】Izumiya(イズミヤ) 淡路店 (1,201m) / 【スーパー】アカシヤ 淡路店 (765m) / スーパー (456m) | ||||
| 内装代 | - | 償却 | 0円 | 保険 | 損保要 |
| 更新料 | - | 水道料金等預かり金 | - | 特記事項 | - |
| 飲用水 | 公営 | ガス | 都市 | 排水 | 公共下水 |
| 給湯方式 | - | ||||
その他の費用
| 他 | 回保証料:賃料等総額×38%※最低保証¥20,000月額費用⇒継続保証料:(¥1,100/月)+火災保険料(¥790/月 |
|---|
この物件のお問い合わせ番号 0001-F000138365-0007
類似物件一覧
-
7.1万円
-
-
-
6.7万円
-
100,000円
1K
大阪府大阪市東淀川区西淡路3丁目 -
5.9万円
-
1.0ヶ月
1K
大阪府大阪市東淀川区小松4丁目 -
7.7万円
-
100,000円
1K
大阪府大阪市東淀川区上新庄3丁目 -
6.7万円
-
1.0ヶ月
1DK
大阪府大阪市東淀川区菅原3丁目 -
8.2万円
-
82,000円
1LDK
大阪府大阪市東淀川区柴島2丁目 -
8.2万円
-
1.0ヶ月
1K
大阪府大阪市東淀川区東中島1丁目 -
6.8万円
-
77,500円
1K
大阪府大阪市東淀川区東中島4丁目 -
8.1万円
-
81,000円
1K
大阪府大阪市東淀川区下新庄4丁目 -
8.1万円
-
-
1R
大阪府大阪市東淀川区東中島1丁目 -
8.2万円
-
82,000円
1LDK
大阪府大阪市東淀川区柴島2丁目 -
6.2万円
-
69,500円
1R
大阪府大阪市東淀川区東中島1丁目
店舗情報
お電話での物件問い合わせは無料通話で!(直営店のみ)
0001-F000138365-0007
- FC新大阪店
- 御堂筋線 新大阪駅(徒歩2分)
- Tel: 06-6100-0021
- 店舗詳細情報
このお部屋にお問い合わせ
あわせて店舗への来店を希望のお客様は、上の希望店舗の来店予約フォームをご利用ください(直営店舗のみ)
Sorry,Japanese & English only. 日本語・英語のみ対応しております。ご了承ください。
- ※取扱形態は媒介(先物)です。 / お部屋の情報は随時更新です / 各種情報と現況に差異がある場合は、現況優先となります。 / 保証会社の審査があります。 / 契約一時金は、契約時に借主より貸主に支払われ返還されない金銭です。

この物件のかんたんお問合せフォーム
お電話でお問合せ
外観・間取り図

























大阪府大阪市東淀川区瑞光1丁目