アデレイド新福島 物件詳細情報
| 沿線・駅 所在地 |
賃料 共益費(管理費) |
敷金 礼金 |
間取り 専有面積 |
種別 建築年月日 |
|
|---|---|---|---|---|---|
|
JR東西線 新福島駅(徒歩2分)
大阪府大阪市福島区福島4丁目 |
187,000円 11,000円 |
187,000円 374,000円 |
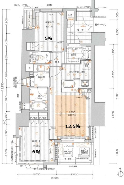
2LDK 55.58m2 |
分譲賃貸 2012年9月 |
|
この物件のお問い合わせ番号 0001-F000137812-0001

- 【スーパー】関西ス-パ- 福島店

- 【公園】下福島公園

- 【スーパー】ライフ 堂島大橋店

- 【スーパー】MISUGIYA(三杉屋) 福島店

- 【コンビニエンスストア】ファミリーマート JCHO大阪病院店

- 【コンビニエンスストア】セブンイレブン 大阪福島西通店

- 【コンビニエンスストア】セブンイレブン 大阪福島7丁目店

- 【コンビニエンスストア】ローソン 福島聖天通店

- 【総合病院】関西電力病院

- 【総合病院】JCHO大阪病院
設備
| 部屋設備 | TV付モニターホン / 下駄箱 / ガスコンロ(コンロ(3口)) / フローリング / 床暖房 / バルコニー / シャワー / 浴室乾燥機 / 追焚き / 室内洗濯機置場 / バストイレ別 / 2人入居 / シャワー付トイレ / クロゼット / 洗面所独立 / システムキッチン |
|---|---|
| 建物設備 | エレベータ / オートロック / 駐輪場 / 宅配ボックス / 防犯カメラ |
物件詳細
| 交通機関 | ・JR東西線 新福島駅(徒歩2分) ・JR大阪環状線 福島駅(徒歩6分) | ||||
|---|---|---|---|---|---|
| 構造 | RC造 | 方位 | 南 | 階数/総階数 | 12階/12階建て |
| 総戸数 | 33戸 | 駐車場 | 近隣 | 入居日 | 2026年4月下旬 |
| 環境 | 【スーパー】関西ス-パ- 福島店 (395m) / 【公園】下福島公園 (548m) / 【スーパー】ライフ 堂島大橋店 (494m) / 【スーパー】MISUGIYA(三杉屋) 福島店 (239m) / 【コンビニエンスストア】ファミリーマート JCHO大阪病院店 (339m) / 【コンビニエンスストア】セブンイレブン 大阪福島西通店 (138m) / 【コンビニエンスストア】セブンイレブン 大阪福島7丁目店 (484m) / 【コンビニエンスストア】ローソン 福島聖天通店 (547m) / 【総合病院】関西電力病院 (622m) / 【総合病院】JCHO大阪病院 (336m) / コンビニ (339m) / スーパー (395m) / 総合病院 (622m) | ||||
| 内装代 | - | 償却 | 0円 | 保険 | 損保要 |
| 更新料 | - | 水道料金等預かり金 | - | 特記事項 | - |
| 飲用水 | 公営 | ガス | 都市 | 排水 | 公共下水 |
| 給湯方式 | - | ||||
その他の費用
| 他 | 初回保証料50%毎月800円 |
|---|
この物件のお問い合わせ番号 0001-F000137812-0001
類似物件一覧
-
18.5万円
-
185,000円
-
15.2万円
-
400,000円
2LDK
大阪府大阪市福島区鷺洲5丁目 -
16.6万円
50,000円
2.0ヶ月
2LDK
大阪府大阪市福島区海老江4丁目 -
16.7万円
-
1.0ヶ月
2LDK
大阪府大阪市福島区海老江8丁目 -
15.2万円
-
400,000円
2LDK
大阪府大阪市福島区鷺洲5丁目 -
21.3万円
-
-
2LDK
大阪府大阪市福島区海老江3丁目 -
21.6万円
-
-
2LDK
大阪府大阪市福島区海老江3丁目 -
22.0万円
-
-
2LDK
大阪府大阪市福島区海老江3丁目 -
21.6万円
-
-
2LDK
大阪府大阪市福島区海老江3丁目 -
17.0万円
-
2.0ヶ月
2LDK
大阪府大阪市福島区吉野5丁目 -
21.6万円
-
-
2LDK
大阪府大阪市福島区海老江3丁目 -
16.6万円
50,000円
2.0ヶ月
2LDK
大阪府大阪市福島区海老江4丁目
店舗情報
お電話での物件問い合わせは無料通話で!(直営店のみ)
0001-F000137812-0001
- FC東三国店
- 御堂筋線 東三国駅(徒歩1分)
- Tel: 06-6399-3251
- 店舗詳細情報
このお部屋にお問い合わせ
あわせて店舗への来店を希望のお客様は、上の希望店舗の来店予約フォームをご利用ください(直営店舗のみ)
Sorry,Japanese & English only. 日本語・英語のみ対応しております。ご了承ください。
- ※取扱形態は媒介(先物)です。 / お部屋の情報は随時更新です / 各種情報と現況に差異がある場合は、現況優先となります。 / 保証会社の審査があります。 / 契約一時金は、契約時に借主より貸主に支払われ返還されない金銭です。

この物件のかんたんお問合せフォーム
お電話でお問合せ
外観・間取り図













大阪府大阪市福島区吉野1丁目