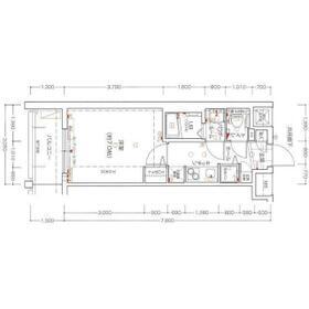
大阪府大阪市東淀川区西淡路2丁目 1K 24.09m2 物件詳細情報
| 沿線・駅 所在地 |
賃料 共益費(管理費) |
敷金 礼金 |
間取り 専有面積 |
種別 建築年月日 |
|
|---|---|---|---|---|---|
|
大阪メトロ御堂筋線 新大阪駅(徒歩7分)
大阪府大阪市東淀川区西淡路2丁目 |
54,700円 4,300円 |
- 109,400円 |
1K 24.09m2 |
マンション 2006年1月 |
|
この物件のお問い合わせ番号 0001-F000135629-0001
外観・間取り図
情報登録日:2026/03/05 情報更新日:2026/03/06 次回更新予定日:2026/03/13
設備
| 部屋設備 | TV付モニターホン / 下駄箱 / IHヒーター / エアコン / バルコニー / 室内洗濯機置場 / バストイレ別 / シャワー付トイレ / クロゼット / 洗面所独立 |
|---|---|
| 建物設備 | エレベータ / 宅配ボックス / 防犯カメラ |
物件詳細
| 交通機関 | ・大阪メトロ御堂筋線 新大阪駅(徒歩7分) ・JR東海道本線 新大阪駅(徒歩5分) | ||||
|---|---|---|---|---|---|
| 構造 | RC造 | 方位 | 北 | 階数/総階数 | 2階/7階建て |
| 総戸数 | - | 駐車場 | - | 入居日 | 2026年5月下旬 |
| 環境 | |||||
| 内装代 | - | 償却 | 0円 | 保険 | 損保要 |
| 更新料 | - | 水道料金等預かり金 | - | 特記事項 | - |
| 飲用水 | - | ガス | - | 排水 | その他 |
| 給湯方式 | - | ||||
その他の費用
| 一時 | カギ費用:27,500円/ハウスクリーニング費:33,000円/スマサポコンシェル入:5,500円 |
|---|---|
| 他 | 株式会社ルームバンクインシュア※大手法人相談可 |
この物件のお問い合わせ番号 0001-F000135629-0001
類似物件一覧
-
6.8万円
-
-
-
5.7万円
-
100,000円
1K
大阪府大阪市東淀川区豊里5丁目 -
4.0万円
-
100,000円
1K
大阪府大阪市東淀川区豊新5丁目 -
4.2万円
-
-
1K
大阪府大阪市東淀川区豊新3丁目 -
6.1万円
-
60,000円
1K
大阪府大阪市東淀川区豊里5丁目 -
6.3万円
-
1.0ヶ月
1K
大阪府大阪市東淀川区東中島4丁目 -
4.5万円
-
-
1K
大阪府大阪市東淀川区豊里1丁目 -
6.5万円
-
1.0ヶ月
1K
大阪府大阪市東淀川区東中島3丁目 -
6.4万円
-
1.0ヶ月
1K
大阪府大阪市東淀川区東中島4丁目 -
4.2万円
-
-
1K
大阪府大阪市東淀川区豊新3丁目 -
6.6万円
-
-
1K
大阪府大阪市東淀川区東中島2丁目 -
6.3万円
-
65,000円
1K
大阪府大阪市東淀川区小松2丁目
店舗情報
お電話での物件問い合わせは無料通話で!(直営店のみ)
0001-F000135629-0001
- FC江坂店
- 御堂筋線 江坂駅(徒歩1分)
- Tel: 06-6386-0321
- 店舗詳細情報
このお部屋にお問い合わせ
あわせて店舗への来店を希望のお客様は、上の希望店舗の来店予約フォームをご利用ください(直営店舗のみ)
Sorry,Japanese & English only. 日本語・英語のみ対応しております。ご了承ください。
- ※取扱形態は媒介(先物)です。 / お部屋の情報は随時更新です / 各種情報と現況に差異がある場合は、現況優先となります。 / 保証会社の審査があります。 / 契約一時金は、契約時に借主より貸主に支払われ返還されない金銭です。

この物件のかんたんお問合せフォーム
お電話でお問合せ






大阪府大阪市東淀川区大桐5丁目