Alivis放出 物件詳細情報
| 沿線・駅 所在地 |
賃料 共益費(管理費) |
敷金 礼金 |
間取り 専有面積 |
種別 建築年月日 |
|
|---|---|---|---|---|---|
|
JR片町線 放出駅(徒歩7分)
大阪府大阪市城東区放出西3丁目 |
69,000円 10,000円 |
- 69,000円 |
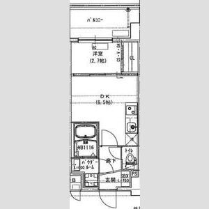
1DK 25.08m2 |
マンション 2025年10月 |
|
この物件のお問い合わせ番号 0001-F000134275-0022

- 【ファーストフード】マクドナルド放出店

- 【スーパー】スーパーサンコー放出店

- 【コンビニエンスストア】ローソン放出東二丁目店

- 【総合病院】城東病院

- 【そば・うどん】丸亀製麺深江橋

- 【スーパー】ライフ 深江橋店

- 【スーパー】業務スーパー 深江橋店

- 【ドラッグストア】スギドラッグ 城東東中浜店
設備
| 部屋設備 | TV付モニターホン / 下駄箱 / IHヒーター / エアコン / フローリング / バルコニー / 浴室乾燥機 / 洗髪洗面化粧台 / 室内洗濯機置場 / バストイレ別 / コンロ(コンロ(2口)) / 角部屋 / 2人入居 / シャワー付トイレ / クロゼット / 洗面所独立 / システムキッチン |
|---|---|
| 建物設備 | エレベータ / オートロック / 駐輪場 / 宅配ボックス / バイク置き場 / ネット利用料無料 / 防犯カメラ |
物件詳細
| 交通機関 | ・JR片町線 放出駅(徒歩7分) ・大阪メトロ中央線 深江橋駅(徒歩17分) | ||||
|---|---|---|---|---|---|
| 構造 | RC造 | 方位 | 東 | 階数/総階数 | 3階/11階建て |
| 総戸数 | - | 駐車場 | 18,700円 | 入居日 | 即入居可 |
| 環境 | 【ファーストフード】マクドナルド放出店 (430m) / 【スーパー】スーパーサンコー放出店 (464m) / 【コンビニエンスストア】ローソン放出東二丁目店 (296m) / 【総合病院】城東病院 (521m) / 【そば・うどん】丸亀製麺深江橋 (878m) / 【スーパー】ライフ 深江橋店 (791m) / 【スーパー】業務スーパー 深江橋店 (884m) / 【ドラッグストア】スギドラッグ 城東東中浜店 (1,346m) / コンビニ (296m) / スーパー (464m) / 総合病院 (521m) | ||||
| 内装代 | - | 償却 | 0円 | 保険 | 損保要 |
| 更新料 | 69,000円 | 水道料金等預かり金 | - | 特記事項 | - |
| 飲用水 | 公営 | ガス | 都市 | 排水 | 公共下水 |
| 給湯方式 | - | ||||
その他の費用
| 一時 | 退去時エアコンクリーニング代:16,500円 |
|---|---|
| 他 | 初回保証料30%・更新料1万円/年、口振手数料330円(税込) |
この物件のお問い合わせ番号 0001-F000134275-0022
類似物件一覧
-
6.6万円
-
2.0ヶ月
-
7.5万円
-
1.0ヶ月
1K
大阪府大阪市城東区蒲生2丁目 -
8.6万円
-
1.0ヶ月
1LDK
大阪府大阪市城東区放出西3丁目 -
8.1万円
-
1.0ヶ月
1DK
大阪府大阪市城東区関目1丁目 -
6.9万円
-
1.0ヶ月
1K
大阪府大阪市城東区東中浜1丁目 -
6.5万円
-
1.0ヶ月
1K
大阪府大阪市城東区中浜3丁目 -
8.0万円
-
1.0ヶ月
1DK
大阪府大阪市城東区永田1丁目 -
7.5万円
-
150,000円
1DK
大阪府大阪市城東区野江2丁目 -
6.2万円
-
1.0ヶ月
1K
大阪府大阪市城東区放出西3丁目 -
5.8万円
58,000円
1.0ヶ月
1K
大阪府大阪市城東区関目1丁目 -
6.6万円
-
1.0ヶ月
1K
大阪府大阪市城東区東中浜1丁目 -
8.4万円
-
1.0ヶ月
1K
大阪府大阪市城東区鴫野東2丁目
店舗情報
お電話での物件問い合わせは無料通話で!(直営店のみ)
0001-F000134275-0022
- FC西中島南方店
- 御堂筋線 西中島南方駅(徒歩1分)
- Tel: 06-6390-3211
- 店舗詳細情報
このお部屋にお問い合わせ
あわせて店舗への来店を希望のお客様は、上の希望店舗の来店予約フォームをご利用ください(直営店舗のみ)
Sorry,Japanese & English only. 日本語・英語のみ対応しております。ご了承ください。
- ※取扱形態は媒介(先物)です。 / お部屋の情報は随時更新です / 各種情報と現況に差異がある場合は、現況優先となります。 / 保証会社の審査があります。 / 契約一時金は、契約時に借主より貸主に支払われ返還されない金銭です。

この物件のかんたんお問合せフォーム
お電話でお問合せ
外観・間取り図

















大阪府大阪市城東区東中浜2丁目