Alivis九条 物件詳細情報
| 沿線・駅 所在地 |
賃料 共益費(管理費) |
敷金 礼金 |
間取り 専有面積 |
種別 建築年月日 |
|
|---|---|---|---|---|---|
|
大阪メトロ中央線 九条駅(徒歩7分)
大阪府大阪市西区本田2丁目 |
80,500円 10,000円 |
- - |
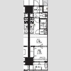
1DK 26.34m2 |
マンション 2026年1月 |
|
この物件のお問い合わせ番号 0001-F000132959-0007

- 【ドラッグストア】マツモトキヨシ 九条店

- 【コンビニエンスストア】ファミリーマート 本田みなと通店

- 【スーパー】スーパー玉出 九条店

- 【ファーストフード】マクドナルド 九条店

- 【スーパー】KOHYO(コーヨー) 堀江店鮮度館

- 【スーパー】mandai(万代) フレスポ阿波座店

- 【スーパー】ライフ阿波座駅前店

- 【スーパー】関西スーパー 南堀江店

- 【市役所・区役所】大阪市西区役所

- 【郵便局】大阪西郵便局
設備
| 部屋設備 | TV付モニターホン / 下駄箱 / ガスコンロ(コンロ(2口)) / エアコン / フローリング / バルコニー / シャワー / 浴室乾燥機 / 洗髪洗面化粧台 / 室内洗濯機置場 / バストイレ別 / 2人入居 / シャワー付トイレ / クロゼット / 洗面所独立 / システムキッチン |
|---|---|
| 建物設備 | エレベータ / オートロック / 駐輪場 / 宅配ボックス / ペット可 / バイク置き場 / ネット利用料無料 / 防犯カメラ |
物件詳細
| 交通機関 | ・大阪メトロ中央線 九条駅(徒歩7分) ・大阪メトロ長堀鶴見緑地線 ドーム前千代崎駅(徒歩12分) | ||||
|---|---|---|---|---|---|
| 構造 | RC造 | 方位 | 南東 | 階数/総階数 | 3階/15階建て |
| 総戸数 | 126戸 | 駐車場 | - | 入居日 | 2026年2月中旬 |
| 環境 | 【ドラッグストア】マツモトキヨシ 九条店 (395m) / 【コンビニエンスストア】ファミリーマート 本田みなと通店 (190m) / 【スーパー】スーパー玉出 九条店 (422m) / 【ファーストフード】マクドナルド 九条店 (513m) / 【スーパー】KOHYO(コーヨー) 堀江店鮮度館 (1,164m) / 【スーパー】mandai(万代) フレスポ阿波座店 (808m) / 【スーパー】ライフ阿波座駅前店 (1,169m) / 【スーパー】関西スーパー 南堀江店 (1,419m) / 【市役所・区役所】大阪市西区役所 (906m) / 【郵便局】大阪西郵便局 (955m) / コンビニ (190m) / スーパー (422m) | ||||
| 内装代 | - | 償却 | 0円 | 保険 | 損保要 |
| 更新料 | 80,500円 | 水道料金等預かり金 | - | 特記事項 | - |
| 飲用水 | 公営 | ガス | 都市 | 排水 | 公共下水 |
| 給湯方式 | - | ||||
その他の費用
| 一時 | 退去時AC清掃代:16,500円 |
|---|---|
| 他 | 初回保証料30%、月次保証料330円、更新料1万円/年 |
この物件のお問い合わせ番号 0001-F000132959-0007
類似物件一覧
-
8.8万円
-
-
-
7.2万円
-
100,000円
1K
大阪府大阪市西区南堀江2丁目 -
6.5万円
-
-
1K
大阪府大阪市西区本田3丁目 -
9.0万円
-
-
1K
大阪府大阪市西区靱本町3丁目 -
7.3万円
-
-
1K
大阪府大阪市西区川口1丁目 -
7.3万円
-
-
1K
大阪府大阪市西区千代崎1丁目 -
6.5万円
65,000円
-
1K
大阪府大阪市西区立売堀4丁目 -
9.4万円
100,000円
200,000円
1K
大阪府大阪市西区靱本町3丁目 -
7.0万円
-
-
1K
大阪府大阪市西区本田2丁目 -
8.9万円
-
-
1K
大阪府大阪市西区靱本町3丁目 -
6.9万円
-
69,000円
1K
大阪府大阪市西区西本町3丁目 -
8.8万円
-
-
1K
大阪府大阪市西区西本町1丁目
店舗情報
お電話での物件問い合わせは無料通話で!(直営店のみ)
0001-F000132959-0007
- FC心斎橋店
- 御堂筋線 心斎橋駅(徒歩2分)
- Tel: 06-6253-6060
- 店舗詳細情報
このお部屋にお問い合わせ
あわせて店舗への来店を希望のお客様は、上の希望店舗の来店予約フォームをご利用ください(直営店舗のみ)
Sorry,Japanese & English only. 日本語・英語のみ対応しております。ご了承ください。
- ※取扱形態は媒介(先物)です。 / お部屋の情報は随時更新です / 各種情報と現況に差異がある場合は、現況優先となります。 / 保証会社の審査があります。 / 契約一時金は、契約時に借主より貸主に支払われ返還されない金銭です。

この物件のかんたんお問合せフォーム
お電話でお問合せ
外観・間取り図




大阪府大阪市西区新町4丁目