グランドファースト大阪福島 物件詳細情報
| 沿線・駅 所在地 |
賃料 共益費(管理費) |
敷金 礼金 |
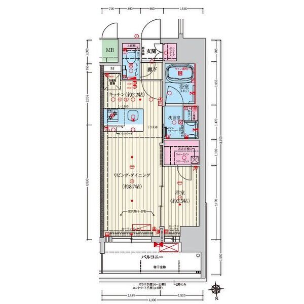
間取り 専有面積 |
種別 建築年月日 |
|
|---|---|---|---|---|---|
|
阪神電鉄本線 野田駅(徒歩4分)
大阪府大阪市福島区吉野1丁目 |
140,950円 13,050円 |
- - |
1LDK 36.55m2 |
分譲賃貸 2026年3月 |
|
この物件のお問い合わせ番号 0001-F000132918-0008
駐輪場:有料 ペット飼育時敷金積み増し料金(償却)有り

- 【小学校】大阪市立中之島小学校・中学校
設備
| 部屋設備 | TV付モニターホン / 下駄箱 / ガスコンロ(コンロ(2口)) / エアコン / フローリング / ウォークインクロゼット / バルコニー / シャワー / 浴室乾燥機 / 洗髪洗面化粧台 / 追焚き / 室内洗濯機置場 / バストイレ別 / 角部屋 / 2人入居 / シャワー付トイレ / 洗面所独立 / カウンターキッチン / システムキッチン |
|---|---|
| 建物設備 | エレベータ / オートロック / 駐輪場 / 宅配ボックス / ペット可 / BSアンテナ / CSアンテナ / CATV / ネット利用料無料 / 防犯カメラ |
物件詳細
| 交通機関 | ・阪神電鉄本線 野田駅(徒歩4分) ・JR東西線 海老江駅(徒歩9分) | ||||
|---|---|---|---|---|---|
| 構造 | RC造 | 方位 | 北 | 階数/総階数 | 6階/13階建て |
| 総戸数 | - | 駐車場 | - | 入居日 | 即入居可 |
| 環境 | 【小学校】大阪市立中之島小学校・中学校 (1,269m) / 大阪市立中之島小学校・中学校 (1,269m) / スーパー (320m) | ||||
| 内装代 | - | 償却 | 0円 | 保険 | 損保要 |
| 更新料 | - | 水道料金等預かり金 | - | 特記事項 | - |
| 飲用水 | 公営 | ガス | 都市 | 排水 | 公共下水 |
| 給湯方式 | - | ||||
その他の費用
| 他 | 総賃料50%(更新:12,000円/1年毎) |
|---|
この物件のお問い合わせ番号 0001-F000132918-0008
類似物件一覧
-
10.4万円
-
1.0ヶ月
-
14.0万円
-
1.0ヶ月
1LDK
大阪府大阪市福島区福島6丁目 -
14.6万円
-
1.0ヶ月
1LDK
大阪府大阪市福島区玉川2丁目 -
10.2万円
-
1.0ヶ月
1LDK
大阪府大阪市福島区野田4丁目 -
13.5万円
-
1.0ヶ月
1SLDK
大阪府大阪市福島区海老江8丁目 -
14.6万円
-
1.0ヶ月
1LDK
大阪府大阪市福島区玉川2丁目 -
13.7万円
-
-
1LDK
大阪府大阪市福島区吉野1丁目 -
10.1万円
-
1.0ヶ月
1LDK
大阪府大阪市福島区野田4丁目 -
15.8万円
30,000円
150,000円
1SLDK
大阪府大阪市福島区吉野1丁目 -
12.0万円
128,000円
128,000円
1LDK
大阪府大阪市福島区海老江2丁目 -
14.4万円
-
1.0ヶ月
1LDK
大阪府大阪市福島区玉川2丁目 -
12.5万円
-
200,000円
1LDK
大阪府大阪市福島区鷺洲5丁目
店舗情報
お電話での物件問い合わせは無料通話で!(直営店のみ)
0001-F000132918-0008
- FC南森町店
- 谷町線 南森町駅(徒歩1分)
- Tel: 06-6356-6161
- 店舗詳細情報
このお部屋にお問い合わせ
あわせて店舗への来店を希望のお客様は、上の希望店舗の来店予約フォームをご利用ください(直営店舗のみ)
Sorry,Japanese & English only. 日本語・英語のみ対応しております。ご了承ください。
- ※取扱形態は媒介(先物)です。 / お部屋の情報は随時更新です / 各種情報と現況に差異がある場合は、現況優先となります。 / 保証会社の審査があります。 / 契約一時金は、契約時に借主より貸主に支払われ返還されない金銭です。

この物件のかんたんお問合せフォーム
お電話でお問合せ
外観・間取り図

























大阪府大阪市福島区野田4丁目