大阪府大阪市北区大淀南3丁目 2LDK 50.74m2 物件詳細情報
| 沿線・駅 所在地 |
賃料 共益費(管理費) |
敷金 礼金 |
間取り 専有面積 |
種別 建築年月日 |
|
|---|---|---|---|---|---|
|
JR大阪環状線 福島駅(徒歩10分)
大阪府大阪市北区大淀南3丁目 |
207,000円 15,000円 |
- 207,000円 |
2LDK 50.74m2 |
マンション 2026年7月 |
|
この物件のお問い合わせ番号 0001-F000132244-0008
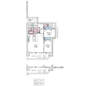
外観・間取り図
情報登録日:2026/03/06 情報更新日:2026/03/07 次回更新予定日:2026/03/14
設備
| 部屋設備 | 下駄箱 / ガスコンロ(コンロ(3口)) / エアコン / フローリング / バルコニー / 浴室乾燥機 / 室内洗濯機置場 / バストイレ別 / 保証人不要 / 角部屋 / シャワー付トイレ / 洗面所独立 / カウンターキッチン |
|---|---|
| 建物設備 | エレベータ / 駐輪場 / 宅配ボックス / ペット可 / BSアンテナ / CSアンテナ / バイク置き場 / ネット利用料無料 / 防犯カメラ |
物件詳細
| 交通機関 | ・JR大阪環状線 福島駅(徒歩10分) ・JR東西線 新福島駅(徒歩12分) | ||||
|---|---|---|---|---|---|
| 構造 | RC造 | 方位 | 東 | 階数/総階数 | 9階/13階建て |
| 総戸数 | 24戸 | 駐車場 | 38,500円 | 入居日 | 2026年8月中旬 |
| 環境 | |||||
| 内装代 | - | 償却 | 0円 | 保険 | 損保要 |
| 更新料 | - | 水道料金等預かり金 | - | 特記事項 | - |
| 飲用水 | 公営 | ガス | 都市 | 排水 | 公共下水 |
| 給湯方式 | - | ||||
その他の費用
| 一時 | アクト安心ライフ24:16,500円/バイク置場(1台):4,400円/原付置場(5台):2,200円 |
|---|---|
| 他 | 【個人】連帯保証人不要・全保連初回保証料:月額総額60%月額保証料:1,700円 |
この物件のお問い合わせ番号 0001-F000132244-0008
類似物件一覧
-
18.0万円
50,000円
280,000円
-
16.2万円
162,000円
1.0ヶ月
2LDK
大阪府大阪市北区大淀南1丁目 -
16.3万円
163,000円
1.0ヶ月
2LDK
大阪府大阪市北区大淀南1丁目 -
20.4万円
-
-
2LDK
大阪府大阪市北区大淀中5丁目 -
18.4万円
184,000円
184,000円
2LDK
大阪府大阪市北区中崎3丁目 -
18.2万円
50,000円
280,000円
2LDK
大阪府大阪市北区大淀中5丁目 -
17.9万円
50,000円
280,000円
2LDK
大阪府大阪市北区大淀中5丁目 -
19.5万円
195,000円
2.0ヶ月
2LDK
大阪府大阪市北区西天満3丁目 -
17.8万円
50,000円
280,000円
2LDK
大阪府大阪市北区大淀中5丁目 -
17.3万円
173,000円
1.0ヶ月
2LDK
大阪府大阪市北区中崎3丁目 -
17.9万円
50,000円
280,000円
2LDK
大阪府大阪市北区大淀中5丁目 -
18.2万円
50,000円
280,000円
2LDK
大阪府大阪市北区大淀中5丁目
店舗情報
お電話での物件問い合わせは無料通話で!(直営店のみ)
0001-F000132244-0008
- FC江坂店
- 御堂筋線 江坂駅(徒歩1分)
- Tel: 06-6386-0321
- 店舗詳細情報
このお部屋にお問い合わせ
あわせて店舗への来店を希望のお客様は、上の希望店舗の来店予約フォームをご利用ください(直営店舗のみ)
Sorry,Japanese & English only. 日本語・英語のみ対応しております。ご了承ください。
- ※取扱形態は媒介(先物)です。 / お部屋の情報は随時更新です / 各種情報と現況に差異がある場合は、現況優先となります。 / 保証会社の審査があります。 / 契約一時金は、契約時に借主より貸主に支払われ返還されない金銭です。

この物件のかんたんお問合せフォーム
お電話でお問合せ





大阪府大阪市北区大淀中5丁目