土佐堀ハイツ 物件詳細情報
| 沿線・駅 所在地 |
賃料 共益費(管理費) |
敷金 礼金 |
間取り 専有面積 |
種別 建築年月日 |
|
|---|---|---|---|---|---|
|
大阪メトロ千日前線 阿波座駅(徒歩9分)
大阪府大阪市西区江戸堀3丁目 |
49,000円 9,000円 |
- - |
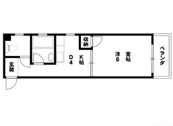
1DK 25.34m2 |
マンション 1979年9月 |
|
この物件のお問い合わせ番号 0001-F000132200-0002
短期解約違約金:6か月以内の解約については、違約金として賃料総額1ヶ月分が必要 月額(ReloRent24マンスリープラン 880円)

- 【中学校】大阪市立花乃井中学校

- 【スーパー】ライフ ビオラル靭店

- 【コンビニエンスストア】ファミリーマート 西本町二丁目店

- 【郵便局】大阪西郵便局

- 【総合病院】住友病院

- 【スーパー】ライフ阿波座駅前店

- 【コンビニエンスストア】ファミリーマート 京町堀三丁目店

- 【公園】靱公園
設備
| 部屋設備 | エアコン / バルコニー / シャワー / バストイレ別 |
|---|---|
| 建物設備 | エレベータ |
物件詳細
| 交通機関 | ・大阪メトロ千日前線 阿波座駅(徒歩9分) ・大阪メトロ四つ橋線 肥後橋駅(徒歩16分) | ||||
|---|---|---|---|---|---|
| 構造 | 鉄骨造 | 方位 | 南西 | 階数/総階数 | 2階/6階建て |
| 総戸数 | 11戸 | 駐車場 | - | 入居日 | 2026年3月下旬 |
| 環境 | 【中学校】大阪市立花乃井中学校 (224m) / 【スーパー】ライフ ビオラル靭店 (304m) / 【コンビニエンスストア】ファミリーマート 西本町二丁目店 (431m) / 【郵便局】大阪西郵便局 (628m) / 【総合病院】住友病院 (471m) / 【スーパー】ライフ阿波座駅前店 (520m) / 【コンビニエンスストア】ファミリーマート 京町堀三丁目店 (241m) / 【公園】靱公園 (704m) / 大阪市立花乃井中学校 (224m) / コンビニ (431m) / スーパー (304m) / 総合病院 (471m) | ||||
| 内装代 | - | 償却 | 0円 | 保険 | 損保要 |
| 更新料 | - | 水道料金等預かり金 | - | 特記事項 | - |
| 飲用水 | 公営 | ガス | 都市 | 排水 | 公共下水 |
| 給湯方式 | - | ||||
その他の費用
| 他 | 初回保証料:賃料総額の50%、月額保証料:賃料総額の1% |
|---|
この物件のお問い合わせ番号 0001-F000132200-0002
類似物件一覧
-
5.8万円
58,000円
-
-
5.2万円
-
1.0ヶ月
1K
大阪府大阪市西区本田2丁目 -
6.2万円
-
1.0ヶ月
1K
大阪府大阪市西区江戸堀1丁目 -
5.3万円
50,000円
200,000円
1R
大阪府大阪市西区江戸堀1丁目 -
5.1万円
-
-
1K
大阪府大阪市西区土佐堀1丁目 -
5.2万円
-
1.0ヶ月
1K
大阪府大阪市西区本田2丁目 -
5.5万円
55,450円
-
1K
大阪府大阪市西区九条南3丁目 -
5.2万円
-
1.0ヶ月
1K
大阪府大阪市西区本田2丁目 -
5.9万円
-
1.0ヶ月
1K
大阪府大阪市西区川口3丁目 -
5.9万円
60,000円
190,000円
1R
大阪府大阪市西区江戸堀1丁目 -
5.6万円
-
-
1K
大阪府大阪市西区北堀江2丁目 -
5.9万円
-
118,400円
1K
大阪府大阪市西区本田4丁目
店舗情報
お電話での物件問い合わせは無料通話で!(直営店のみ)
0001-F000132200-0002
- FC肥後橋店
- 四つ橋線 肥後橋駅(徒歩2分)
- Tel: 06-6441-5000
- 店舗詳細情報
このお部屋にお問い合わせ
あわせて店舗への来店を希望のお客様は、上の希望店舗の来店予約フォームをご利用ください(直営店舗のみ)
Sorry,Japanese & English only. 日本語・英語のみ対応しております。ご了承ください。
- ※取扱形態は媒介(先物)です。 / お部屋の情報は随時更新です / 各種情報と現況に差異がある場合は、現況優先となります。 / 保証会社の審査があります。 / 契約一時金は、契約時に借主より貸主に支払われ返還されない金銭です。

この物件のかんたんお問合せフォーム
お電話でお問合せ
外観・間取り図





















大阪府大阪市西区川口3丁目