Alivis新町 物件詳細情報
| 沿線・駅 所在地 |
賃料 共益費(管理費) |
敷金 礼金 |
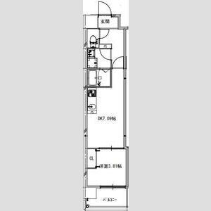
間取り 専有面積 |
種別 建築年月日 |
|
|---|---|---|---|---|---|
|
大阪メトロ長堀鶴見緑地線 西長堀駅(徒歩6分)
大阪府大阪市西区新町4丁目 |
111,500円 10,000円 |
- - |
1DK 29.44m2 |
マンション 2026年1月 |
|
この物件のお問い合わせ番号 0001-F000132198-0012
外観・間取り図
情報登録日:2026/03/24 情報更新日:2026/03/26 次回更新予定日:2026/04/02
設備
| 部屋設備 | TV付モニターホン / ガスコンロ(コンロ(2口)) / エアコン / フローリング / バルコニー / 浴室乾燥機 / 洗髪洗面化粧台 / 室内洗濯機置場 / バストイレ別 / シャワー付トイレ / 洗面所独立 / システムキッチン |
|---|---|
| 建物設備 | エレベータ / オートロック / 宅配ボックス / ペット可 / 防犯カメラ |
物件詳細
| 交通機関 | ・大阪メトロ長堀鶴見緑地線 西長堀駅(徒歩6分) ・大阪メトロ千日前線 阿波座駅(徒歩10分) | ||||
|---|---|---|---|---|---|
| 構造 | RC造 | 方位 | 南 | 階数/総階数 | 6階/9階建て |
| 総戸数 | 32戸 | 駐車場 | - | 入居日 | 即入居可 |
| 環境 | |||||
| 内装代 | - | 償却 | 0円 | 保険 | 損保要 |
| 更新料 | 111,500円 | 水道料金等預かり金 | - | 特記事項 | - |
| 飲用水 | 公営 | ガス | 都市 | 排水 | 公共下水 |
| 給湯方式 | - | ||||
その他の費用
| 一時 | エアコンクリーニング:16,500円 |
|---|---|
| 他 | 保証会社利用必須ジェイリース 【JWF保なし住居30】初回保証料30%・更新料1万円/年、口振手数料330円(税込) |
この物件のお問い合わせ番号 0001-F000132198-0012
類似物件一覧
-
13.9万円
-
1.0ヶ月
-
8.9万円
150,000円
200,000円
1R
大阪府大阪市西区靱本町3丁目 -
8.5万円
-
1.0ヶ月
1DK
大阪府大阪市西区西本町3丁目 -
8.4万円
-
84,000円
1DK
大阪府大阪市西区西本町3丁目 -
9.6万円
-
2.0ヶ月
1LDK
大阪府大阪市西区南堀江3丁目 -
11.1万円
-
-
1DK
大阪府大阪市西区新町4丁目 -
8.0万円
-
1.0ヶ月
1K
大阪府大阪市西区境川1丁目 -
10.9万円
-
1.0ヶ月
1DK
大阪府大阪市西区北堀江4丁目 -
10.8万円
-
-
1R
大阪府大阪市西区西本町2丁目 -
9.4万円
-
102,000円
1DK
大阪府大阪市西区立売堀6丁目 -
8.1万円
-
1.0ヶ月
1K
大阪府大阪市西区南堀江3丁目 -
8.5万円
-
100,000円
1K
大阪府大阪市西区立売堀4丁目
店舗情報
お電話での物件問い合わせは無料通話で!(直営店のみ)
0001-F000132198-0012
- FC天満橋店
- 谷町線 天満橋駅(徒歩1分)
- Tel: 06-6920-4848
- 店舗詳細情報
このお部屋にお問い合わせ
あわせて店舗への来店を希望のお客様は、上の希望店舗の来店予約フォームをご利用ください(直営店舗のみ)
Sorry,Japanese & English only. 日本語・英語のみ対応しております。ご了承ください。
- ※取扱形態は媒介(先物)です。 / お部屋の情報は随時更新です / 各種情報と現況に差異がある場合は、現況優先となります。 / 保証会社の審査があります。 / 契約一時金は、契約時に借主より貸主に支払われ返還されない金銭です。

この物件のかんたんお問合せフォーム
お電話でお問合せ












大阪府大阪市西区南堀江2丁目