Alivis Shimo-Shinjo SoL TERRACE 物件詳細情報
| 沿線・駅 所在地 |
賃料 共益費(管理費) |
敷金 礼金 |
間取り 専有面積 |
種別 建築年月日 |
|
|---|---|---|---|---|---|
|
阪急電鉄千里線 下新庄駅(徒歩4分)
大阪府吹田市西御旅町 |
92,000円 15,000円 |
- - |
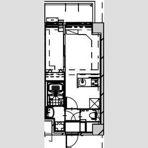
1LDK 30.60m2 |
マンション 2026年2月 |
|
この物件のお問い合わせ番号 0001-F000132106-0039

- 【コンビニエンスストア】ファミリーマート 小浦下新庄駅前店

- 【コンビニエンスストア】セブンイレブン 阪急下新庄駅前店

- 【小学校】大阪市立下新庄小学校

- 【コンビニエンスストア】ローソン下新庄店

- 【郵便局】東淀川下新庄四郵便局

- 【保育園】下新庄保育所
設備
| 部屋設備 | TV付モニターホン / 下駄箱 / ガスコンロ(コンロ(2口)) / エアコン / フローリング / バルコニー / シャワー / 浴室乾燥機 / 室内洗濯機置場 / バストイレ別 / 保証人不要 / シャワー付トイレ / クロゼット / 洗面所独立 / カウンターキッチン / システムキッチン |
|---|---|
| 建物設備 | オートロック / 駐輪場 / 宅配ボックス / ペット可 / BSアンテナ / CSアンテナ / バイク置き場 / ネット利用料無料 / 防犯カメラ |
物件詳細
| 交通機関 | ・阪急電鉄千里線 下新庄駅(徒歩4分) ・おおさか東線 南吹田駅(徒歩17分) | ||||
|---|---|---|---|---|---|
| 構造 | RC造 | 方位 | 北 | 階数/総階数 | 3階/6階建て |
| 総戸数 | 100戸 | 駐車場 | 19,800円 | 入居日 | 即入居可 |
| 環境 | 【コンビニエンスストア】ファミリーマート 小浦下新庄駅前店 (245m) / 【コンビニエンスストア】セブンイレブン 阪急下新庄駅前店 (289m) / 【小学校】大阪市立下新庄小学校 (396m) / 【コンビニエンスストア】ローソン下新庄店 (488m) / 【郵便局】東淀川下新庄四郵便局 (484m) / 【保育園】下新庄保育所 (572m) / 大阪市立下新庄小学校 (396m) / コンビニ (245m) | ||||
| 内装代 | - | 償却 | 0円 | 保険 | 損保要 |
| 更新料 | 92,000円 | 水道料金等預かり金 | - | 特記事項 | - |
| 飲用水 | 公営 | ガス | 都市 | 排水 | 公共下水 |
| 給湯方式 | - | ||||
その他の費用
| 一時 | エアコンクリーニング代(退去時):16,500円 |
|---|---|
| 他 | 初回保証料30%、月次保証料330円、更新料1万円/年 |
この物件のお問い合わせ番号 0001-F000132106-0039
類似物件一覧
-
9.2万円
-
-
-
10.1万円
-
130,000円
1LDK
大阪府吹田市竹谷町 -
8.0万円
-
86,000円
1LDK
大阪府吹田市江坂町3丁目 -
9.9万円
-
-
1LDK
大阪府吹田市南吹田5丁目 -
10.3万円
-
1.0ヶ月
1DK
大阪府吹田市南吹田5丁目 -
11.2万円
-
1.0ヶ月
1DK
大阪府吹田市垂水町3丁目 -
10.7万円
-
107,000円
1LDK
大阪府吹田市豊津町 -
8.6万円
-
-
2K
大阪府吹田市江坂町1丁目 -
9.5万円
-
-
1LDK
大阪府吹田市西御旅町 -
11.5万円
-
-
2K
大阪府吹田市江坂町1丁目 -
11.5万円
-
115,000円
1LDK
大阪府吹田市広芝町 -
8.8万円
50,000円
200,000円
1LDK
大阪府吹田市垂水町3丁目
店舗情報
お電話での物件問い合わせは無料通話で!(直営店のみ)
0001-F000132106-0039
- 三重法人部
- 059-356-8041
- 三重県四日市市鵜の森1丁目1-19太平洋鵜の森ビル5階
このお部屋にお問い合わせ
あわせて店舗への来店を希望のお客様は、上の希望店舗の来店予約フォームをご利用ください(直営店舗のみ)
Sorry,Japanese & English only. 日本語・英語のみ対応しております。ご了承ください。
- ※取扱形態は媒介(先物)です。 / お部屋の情報は随時更新です / 各種情報と現況に差異がある場合は、現況優先となります。 / 保証会社の審査があります。 / 契約一時金は、契約時に借主より貸主に支払われ返還されない金銭です。

この物件のかんたんお問合せフォーム
お電話でお問合せ(法人用)
外観・間取り図













大阪府吹田市芳野町