Alivis新町 物件詳細情報
| 沿線・駅 所在地 |
賃料 共益費(管理費) |
敷金 礼金 |
間取り 専有面積 |
種別 建築年月日 |
|
|---|---|---|---|---|---|
|
大阪メトロ長堀鶴見緑地線 西長堀駅(徒歩6分)
大阪府大阪市西区新町4丁目 |
110,000円 10,000円 |
- - |
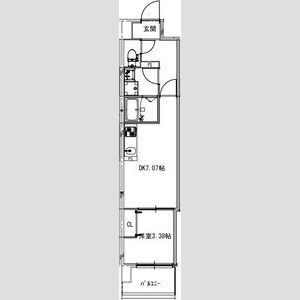
1DK 28.25m2 |
マンション 2026年1月 |
|
この物件のお問い合わせ番号 0001-F000132054-0002
外観・間取り図
情報登録日:2026/04/11 情報更新日:2026/04/14 次回更新予定日:2026/04/21
設備
| 部屋設備 | フローリング / バルコニー / 浴室乾燥機 / 洗髪洗面化粧台 / 室内洗濯機置場 / バストイレ別 / エアコン / ガスコンロ(コンロ(2口)) / TV付モニターホン / シャワー付トイレ / 洗面所独立 / システムキッチン |
|---|---|
| 建物設備 | エレベータ / オートロック / 宅配ボックス / ペット可 / 防犯カメラ |
物件詳細
| 交通機関 | ・大阪メトロ長堀鶴見緑地線 西長堀駅(徒歩6分) ・大阪メトロ千日前線 阿波座駅(徒歩10分) | ||||
|---|---|---|---|---|---|
| 構造 | RC造 | 方位 | 南 | 階数/総階数 | 2階/9階建て |
| 総戸数 | 32戸 | 駐車場 | - | 入居日 | 即入居可 |
| 環境 | |||||
| 内装代 | - | 償却 | 0円 | 保険 | 損保要 |
| 更新料 | 110,000円 | 水道料金等預かり金 | - | 特記事項 | - |
| 飲用水 | 公営 | ガス | 都市 | 排水 | 公共下水 |
| 給湯方式 | - | ||||
その他の費用
| 一時 | エアコンクリーニング:16,500円 |
|---|---|
| 他 | 保証会社利用必須ジェイリース 【JWF保なし住居30】初回保証料30%・更新料1万円/年、口振手数料330円(税込) |
この物件のお問い合わせ番号 0001-F000132054-0002
類似物件一覧
-
8.1万円
-
1.0ヶ月
-
9.0万円
-
1.0ヶ月
1K
大阪府大阪市西区境川1丁目 -
14.2万円
-
155,000円
1SLDK
大阪府大阪市西区川口4丁目 -
13.9万円
139,000円
-
1LDK
大阪府大阪市西区九条1丁目 -
9.0万円
-
-
1R
大阪府大阪市西区江戸堀1丁目 -
11.2万円
-
-
1DK
大阪府大阪市西区新町4丁目 -
7.8万円
-
84,650円
1K
大阪府大阪市西区江戸堀1丁目 -
8.4万円
-
100,000円
1LDK
大阪府大阪市西区江戸堀3丁目 -
10.9万円
-
1.0ヶ月
1R
大阪府大阪市西区新町3丁目 -
12.7万円
-
1.0ヶ月
1LDK
大阪府大阪市西区阿波座1丁目 -
10.6万円
-
-
1LDK
大阪府大阪市西区九条南2丁目 -
11.1万円
-
-
1DK
大阪府大阪市西区新町4丁目
店舗情報
お電話での物件問い合わせは無料通話で!(直営店のみ)
0001-F000132054-0002
- FC心斎橋店
- 御堂筋線 心斎橋駅(徒歩2分)
- Tel: 06-6253-6060
- 店舗詳細情報
このお部屋にお問い合わせ
あわせて店舗への来店を希望のお客様は、上の希望店舗の来店予約フォームをご利用ください(直営店舗のみ)
Sorry,Japanese & English only. 日本語・英語のみ対応しております。ご了承ください。
- ※取扱形態は媒介(先物)です。 / お部屋の情報は随時更新です / 各種情報と現況に差異がある場合は、現況優先となります。 / 保証会社の審査があります。 / 契約一時金は、契約時に借主より貸主に支払われ返還されない金銭です。

この物件のかんたんお問合せフォーム
お電話でお問合せ












大阪府大阪市西区境川1丁目