ドルミ淀川 物件詳細情報
| 沿線・駅 所在地 |
賃料 共益費(管理費) |
敷金 礼金 |
間取り 専有面積 |
種別 建築年月日 |
|
|---|---|---|---|---|---|
|
阪急電鉄千里線 柴島駅(徒歩4分)
大阪府大阪市東淀川区柴島2丁目 |
100,000円 10,000円 |
- 100,000円 |
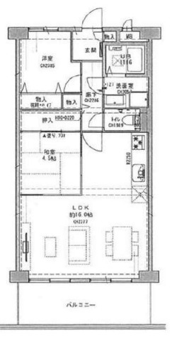
2LDK 59.36m2 |
マンション 1984年2月 |
|
この物件のお問い合わせ番号 0001-F000131273-0001
外観・間取り図
情報登録日:2026/02/06 情報更新日:2026/02/07 次回更新予定日:2026/02/14
設備
| 部屋設備 | 下駄箱 / ガスコンロ(コンロ(3口)) / フローリング / バルコニー / 室内洗濯機置場 / バストイレ別 / 保証人不要 / シャワー付トイレ / クロゼット / 洗面所独立 / システムキッチン |
|---|---|
| 建物設備 | エレベータ / 駐輪場 / バイク置き場 / 防犯カメラ |
物件詳細
| 交通機関 | ・阪急電鉄千里線 柴島駅(徒歩4分) ・阪急電鉄京都線 崇禅寺駅(徒歩8分) | ||||
|---|---|---|---|---|---|
| 構造 | RC造 | 方位 | 南東 | 階数/総階数 | 7階/7階建て |
| 総戸数 | - | 駐車場 | - | 入居日 | 相談 |
| 環境 | 【保育園】あすか保育所 (823m) / 【小学校】大阪市立東淡路小学校 (1,162m) / 【小学校】大阪市立啓発小学校 (991m) / 【中学校】大阪市立柴島中学校 (288m) / 【高校】大阪府立柴島高校 (724m) / 【その他】大阪府立東淀川支援学校 (1,131m) / 【中学校】大阪市立中島中学校 (993m) / 【その他】くにじまテニスコート (1,004m) / 【スーパー】ライフ崇禅寺店 (744m) / 【スーパー】スーパーマーケットバロー 淡路店 (1,150m) / 大阪市立東淡路小学校 (1,162m) / 大阪市立柴島中学校 (288m) / スーパー (744m) | ||||
| 内装代 | - | 償却 | 0円 | 保険 | 損保要 |
| 更新料 | 10,000円 | 水道料金等預かり金 | - | 特記事項 | - |
| 飲用水 | - | ガス | 都市 | 排水 | その他 |
| 給湯方式 | - | ||||
その他の費用
| 一時 | 緊急サポート入会費:5,500円 |
|---|---|
| 他 | 初回保証料:総賃料の50%〜100%更新保証料:10,000円〜13,000円/1年月額保証料:0円〜1,000円 |
この物件のお問い合わせ番号 0001-F000131273-0001
類似物件一覧
-
11.4万円
-
-
-
11.5万円
-
250,000円
2LDK
大阪府大阪市東淀川区大道南1丁目 -
7.5万円
-
75,000円
2LDK
大阪府大阪市東淀川区西淡路1丁目 -
9.4万円
-
-
2LDK
大阪府大阪市東淀川区西淡路3丁目 -
11.5万円
-
250,000円
2LDK
大阪府大阪市東淀川区大道南1丁目 -
11.6万円
-
-
2LDK
大阪府大阪市東淀川区豊里3丁目 -
13.0万円
-
240,000円
2LDK
大阪府大阪市東淀川区豊里5丁目 -
7.0万円
-
150,000円
2LDK
大阪府大阪市東淀川区豊新3丁目 -
11.0万円
-
220,000円
2LDK
大阪府大阪市東淀川区豊新3丁目 -
9.4万円
-
-
2LDK
大阪府大阪市東淀川区西淡路3丁目 -
7.0万円
-
150,000円
2LDK
大阪府大阪市東淀川区豊新3丁目 -
7.5万円
-
75,000円
2LDK
大阪府大阪市東淀川区西淡路1丁目
店舗情報
お電話での物件問い合わせは無料通話で!(直営店のみ)
0001-F000131273-0001
- FC東三国店
- 御堂筋線 東三国駅(徒歩1分)
- Tel: 06-6399-3251
- 店舗詳細情報
このお部屋にお問い合わせ
あわせて店舗への来店を希望のお客様は、上の希望店舗の来店予約フォームをご利用ください(直営店舗のみ)
Sorry,Japanese & English only. 日本語・英語のみ対応しております。ご了承ください。
- ※取扱形態は媒介(先物)です。 / お部屋の情報は随時更新です / 各種情報と現況に差異がある場合は、現況優先となります。 / 保証会社の審査があります。 / 契約一時金は、契約時に借主より貸主に支払われ返還されない金銭です。

この物件のかんたんお問合せフォーム
お電話でお問合せ



大阪府大阪市東淀川区豊里3丁目