パークナード中之島公園ロジュマン 物件詳細情報
| 沿線・駅 所在地 |
賃料 共益費(管理費) |
敷金 礼金 |
間取り 専有面積 |
種別 建築年月日 |
|
|---|---|---|---|---|---|
|
大阪メトロ谷町線 南森町駅(徒歩7分)
大阪府大阪市北区天神橋1丁目 |
325,000円 35,000円 |
100,000円 650,000円 |
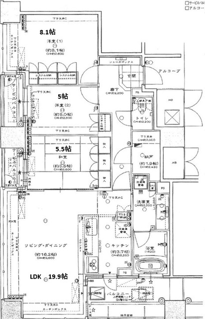
3SLDK 90.01m2 |
分譲賃貸 2010年2月 |
|
この物件のお問い合わせ番号 0001-F000130356-0001

- 【公園】中之島公園 芝生広場

- 【公園】滝川公園.

- 【公園】南天満公園

- 【スーパー】KOHYO(コーヨー) 南森町

- 【スーパー】ライフ東天満

- 【スーパー】KOHYO(コーヨー) 南森町店

- 【コンビニエンスストア】セブンイレブン 大阪天神橋1丁目

- 【寺院・神社】大阪天満宮

- 【コンビニエンスストア】セブンイレブン 大阪西天満1丁目店
設備
| 部屋設備 | フローリング / バルコニー / シャワー / 浴室乾燥機 / 追焚き / バストイレ別 / IHヒーター / TV付モニターホン / コンロ(コンロ(3口)) / シャワー付トイレ / クロゼット / 洗面所独立 / カウンターキッチン / システムキッチン |
|---|---|
| 建物設備 | エレベータ / オートロック / 宅配ボックス / 防犯カメラ |
物件詳細
| 交通機関 | ・大阪メトロ谷町線 南森町駅(徒歩7分) ・JR東西線 大阪天満宮駅(徒歩7分) | ||||
|---|---|---|---|---|---|
| 構造 | RC造 | 方位 | 東 | 階数/総階数 | 21階/26階建て |
| 総戸数 | - | 駐車場 | - | 入居日 | 2026年3月中旬 |
| 環境 | 【公園】中之島公園 芝生広場 (646m) / 【公園】滝川公園. (330m) / 【公園】南天満公園 (361m) / 【スーパー】KOHYO(コーヨー) 南森町 (491m) / 【スーパー】ライフ東天満 (651m) / 【スーパー】KOHYO(コーヨー) 南森町店 (491m) / 【コンビニエンスストア】セブンイレブン 大阪天神橋1丁目 (39m) / 【寺院・神社】大阪天満宮 (301m) / 【コンビニエンスストア】セブンイレブン 大阪西天満1丁目店 (459m) / コンビニ (39m) / スーパー (491m) | ||||
| 内装代 | - | 償却 | 0円 | 保険 | 損保要 |
| 更新料 | 30,000円 | 水道料金等預かり金 | - | 特記事項 | - |
| 飲用水 | 公営 | ガス | - | 排水 | 公共下水 |
| 給湯方式 | - | ||||
その他の費用
| 他 | 初回保証委託料月額総賃料50%/月次保証料800円/口座振替手数料500円+税/口座振替毎月27日当日支払い銀行休業日の場合は翌営業日 |
|---|
この物件のお問い合わせ番号 0001-F000130356-0001
類似物件一覧
-
25.7万円
-
-
-
36.0万円
360,000円
1.0ヶ月
3LDK
大阪府大阪市北区万歳町 -
25.3万円
-
-
3LDK
大阪府大阪市北区大淀中5丁目 -
25.6万円
-
-
3LDK
大阪府大阪市北区大淀中5丁目 -
25.6万円
-
-
3LDK
大阪府大阪市北区大淀中5丁目 -
25.3万円
-
-
3LDK
大阪府大阪市北区大淀中5丁目 -
25.8万円
-
-
3LDK
大阪府大阪市北区大淀中5丁目 -
25.4万円
-
-
3LDK
大阪府大阪市北区大淀中5丁目 -
24.7万円
-
262,000円
3LDK
大阪府大阪市北区西天満5丁目 -
25.4万円
-
-
3LDK
大阪府大阪市北区大淀中5丁目 -
23.5万円
-
2.0ヶ月
3LDK
大阪府大阪市北区万歳町 -
31.0万円
-
1.0ヶ月
3LDK
大阪府大阪市北区大淀南3丁目
店舗情報
お電話での物件問い合わせは無料通話で!(直営店のみ)
0001-F000130356-0001
- FC天満橋店
- 谷町線 天満橋駅(徒歩1分)
- Tel: 06-6920-4848
- 店舗詳細情報
このお部屋にお問い合わせ
あわせて店舗への来店を希望のお客様は、上の希望店舗の来店予約フォームをご利用ください(直営店舗のみ)
Sorry,Japanese & English only. 日本語・英語のみ対応しております。ご了承ください。
- ※取扱形態は媒介(先物)です。 / お部屋の情報は随時更新です / 各種情報と現況に差異がある場合は、現況優先となります。 / 保証会社の審査があります。 / 契約一時金は、契約時に借主より貸主に支払われ返還されない金銭です。

この物件のかんたんお問合せフォーム
お電話でお問合せ
外観・間取り図




大阪府大阪市北区大淀中5丁目