大阪府豊中市三和町1丁目 1SLDK 53.84m2 物件詳細情報
| 沿線・駅 所在地 |
賃料 共益費(管理費) |
敷金 礼金 |
間取り 専有面積 |
種別 建築年月日 |
|
|---|---|---|---|---|---|
|
阪急電鉄宝塚線 庄内駅(徒歩12分)
大阪府豊中市三和町1丁目 |
145,000円 10,000円 |
155,000円 155,000円 |
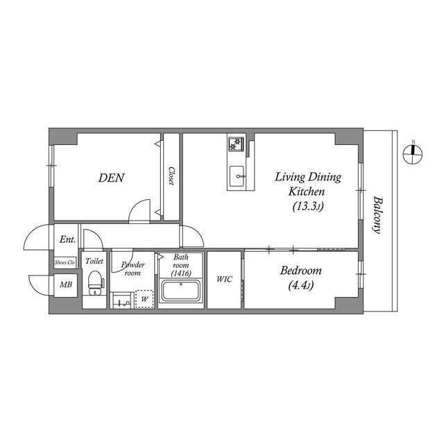
1SLDK 53.84m2 |
マンション 2026年2月 |
|
この物件のお問い合わせ番号 0001-F000128028-0061
外観・間取り図
情報登録日:2026/02/10 情報更新日:2026/02/11 次回更新予定日:2026/02/18
設備
| 部屋設備 | TV付モニターホン / 下駄箱 / エアコン / フローリング / ウォークインクロゼット / トランクルーム / バルコニー / シャワー / 浴室乾燥機 / 追焚き / 室内洗濯機置場 / バストイレ別 / 2人入居 / コンロ(コンロ(3口)) / クロゼット / 洗面所独立 / システムキッチン |
|---|---|
| 建物設備 | エレベータ / オートロック / 駐輪場 / 宅配ボックス / ペット可 / BSアンテナ / CSアンテナ / バイク置き場 / 防犯カメラ |
物件詳細
| 交通機関 | ・阪急電鉄宝塚線 庄内駅(徒歩12分) | ||||
|---|---|---|---|---|---|
| 構造 | RC造 | 方位 | 西 | 階数/総階数 | 5階/8階建て |
| 総戸数 | 64戸 | 駐車場 | - | 入居日 | 2026年3月下旬 |
| 環境 | |||||
| 内装代 | - | 償却 | 0円 | 保険 | 損保要 |
| 更新料 | - | 水道料金等預かり金 | - | 特記事項 | - |
| 飲用水 | - | ガス | 都市 | 排水 | その他 |
| 給湯方式 | - | ||||
その他の費用
| 一時 | スマサポコンシェル入会金:5,500円/退去時RC代:51,700円 |
|---|---|
| 他 | 株式会社テナントファースト※大手法人相談可 |
この物件のお問い合わせ番号 0001-F000128028-0061
類似物件一覧
-
11.8万円
-
-
-
11.3万円
-
200,000円
1SLDK
大阪府豊中市岡町南3丁目 -
10.4万円
-
1.0ヶ月
1LDK
大阪府豊中市服部本町3丁目 -
13.9万円
-
1.0ヶ月
1LDK
大阪府豊中市中桜塚1丁目 -
14.5万円
154,500円
154,500円
1SLDK
大阪府豊中市三和町1丁目 -
11.3万円
-
200,000円
1LDK
大阪府豊中市岡町南3丁目 -
10.5万円
105,000円
2.0ヶ月
1LDK
大阪府豊中市曽根東町1丁目 -
12.1万円
-
-
1LDK
大阪府豊中市東寺内町 -
13.8万円
-
1.0ヶ月
1LDK
大阪府豊中市中桜塚1丁目 -
10.4万円
-
1.0ヶ月
1LDK
大阪府豊中市服部本町3丁目 -
10.5万円
-
200,000円
1LDK
大阪府豊中市小曽根1丁目 -
10.7万円
107,000円
2.0ヶ月
1LDK
大阪府豊中市曽根東町1丁目
店舗情報
お電話での物件問い合わせは無料通話で!(直営店のみ)
0001-F000128028-0061
- FC江坂店
- 御堂筋線 江坂駅(徒歩1分)
- Tel: 06-6386-0321
- 店舗詳細情報
このお部屋にお問い合わせ
あわせて店舗への来店を希望のお客様は、上の希望店舗の来店予約フォームをご利用ください(直営店舗のみ)
Sorry,Japanese & English only. 日本語・英語のみ対応しております。ご了承ください。
- ※取扱形態は媒介(先物)です。 / お部屋の情報は随時更新です / 各種情報と現況に差異がある場合は、現況優先となります。 / 保証会社の審査があります。 / 契約一時金は、契約時に借主より貸主に支払われ返還されない金銭です。

この物件のかんたんお問合せフォーム
お電話でお問合せ






大阪府豊中市東寺内町