コンフォリア・リヴ淡路町一丁目 物件詳細情報
| 沿線・駅 所在地 |
賃料 共益費(管理費) |
敷金 礼金 |
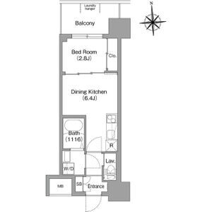
間取り 専有面積 |
種別 建築年月日 |
|
|---|---|---|---|---|---|
|
大阪メトロ堺筋線 北浜駅(徒歩5分)
大阪府大阪市中央区淡路町1丁目 |
103,500円 12,000円 |
- - |
1DK 25.44m2 |
マンション 2025年12月 |
|
この物件のお問い合わせ番号 0001-F000127176-0015
室内清掃費用 27500円 鍵交換代 22000円 初期:駐輪ステッカー 440円 エアコン清掃費 8250円 保証会社利用必須 賃料等の50%(最低2万)、月額保証料:賃料等の1%(更新料無)

- 【スーパー】ライフ 天神橋店

- 【コンビニエンスストア】セブンイレブン 堺筋本町南店

- 【コンビニエンスストア】ローソン 瓦町一丁目店

- 【コンビニエンスストア】ファミリーマート 南本町店

- 【コンビニエンスストア】ファミリーマート内本町西店

- 【銀行】ゆうちょ銀行大阪東店

- 【郵便局】大阪淡路町郵便局

- 【郵便局】大阪伏見町郵便局

- 【警察】東警察署
設備
| 部屋設備 | TV付モニターホン / 下駄箱 / エアコン / フローリング / バルコニー / 浴室乾燥機 / 洗髪洗面化粧台 / 室内洗濯機置場 / バストイレ別 / コンロ(コンロ(2口)) / シャワー付トイレ / 洗面所独立 / システムキッチン |
|---|---|
| 建物設備 | エレベータ / オートロック / 駐輪場 / 宅配ボックス / バイク置き場 / ネット利用料無料 / 防犯カメラ |
物件詳細
| 交通機関 | ・大阪メトロ堺筋線 北浜駅(徒歩5分) ・大阪メトロ中央線 堺筋本町駅(徒歩8分) | ||||
|---|---|---|---|---|---|
| 構造 | RC造 | 方位 | 北 | 階数/総階数 | 4階/15階建て |
| 総戸数 | 98戸 | 駐車場 | - | 入居日 | 即入居可 |
| 環境 | 【スーパー】ライフ 天神橋店 (652m) / 【コンビニエンスストア】セブンイレブン 堺筋本町南店 (510m) / 【コンビニエンスストア】ローソン 瓦町一丁目店 (227m) / 【コンビニエンスストア】ファミリーマート 南本町店 (488m) / 【コンビニエンスストア】ファミリーマート内本町西店 (576m) / 【銀行】ゆうちょ銀行大阪東店 (280m) / 【郵便局】大阪淡路町郵便局 (243m) / 【郵便局】大阪伏見町郵便局 (603m) / 【警察】東警察署 (464m) / コンビニ (510m) / スーパー (652m) | ||||
| 内装代 | - | 償却 | 0円 | 保険 | 損保要 |
| 更新料 | 30,000円 | 水道料金等預かり金 | - | 特記事項 | - |
| 飲用水 | 公営 | ガス | - | 排水 | 公共下水 |
| 給湯方式 | - | ||||
その他の費用
| 一時 | 駐輪ステッカー:440円/エアコン清掃費:8,250円 |
|---|---|
| 他 | 賃料等の50%(最低2万)、月額保証料:賃料等の1%(更新料無) |
この物件のお問い合わせ番号 0001-F000127176-0015
類似物件一覧
-
12.5万円
-
-
-
9.5万円
-
1.0ヶ月
1DK
大阪府大阪市中央区谷町6丁目 -
11.7万円
-
1.5ヶ月
1LDK
大阪府大阪市中央区瓦町1丁目 -
10.0万円
100,000円
1.0ヶ月
1K
大阪府大阪市中央区久太郎町1丁目 -
7.3万円
-
146,200円
1K
大阪府大阪市中央区上本町西1丁目 -
9.7万円
48,500円
105,000円
1K
大阪府大阪市中央区淡路町2丁目 -
12.5万円
-
125,000円
1DK
大阪府大阪市中央区徳井町2丁目 -
9.6万円
-
1.0ヶ月
1DK
大阪府大阪市中央区谷町7丁目 -
10.8万円
-
-
1R
大阪府大阪市中央区安堂寺町2丁目 -
12.3万円
-
123,000円
1LDK
大阪府大阪市中央区谷町4丁目 -
10.5万円
-
-
1DK
大阪府大阪市中央区淡路町1丁目 -
8.4万円
-
100,000円
1K
大阪府大阪市中央区内淡路町1丁目
店舗情報
お電話での物件問い合わせは無料通話で!(直営店のみ)
0001-F000127176-0015
- FC天六店
- 谷町線 天神橋筋六丁目駅(徒歩1分)
- Tel: 06-6882-4008
- 店舗詳細情報
このお部屋にお問い合わせ
あわせて店舗への来店を希望のお客様は、上の希望店舗の来店予約フォームをご利用ください(直営店舗のみ)
Sorry,Japanese & English only. 日本語・英語のみ対応しております。ご了承ください。
- ※取扱形態は媒介(先物)です。 / お部屋の情報は随時更新です / 各種情報と現況に差異がある場合は、現況優先となります。 / 保証会社の審査があります。 / 契約一時金は、契約時に借主より貸主に支払われ返還されない金銭です。

この物件のかんたんお問合せフォーム
お電話でお問合せ
外観・間取り図























大阪府大阪市中央区松屋町住吉