ARCA九条 物件詳細情報
| 沿線・駅 所在地 |
賃料 共益費(管理費) |
敷金 礼金 |
間取り 専有面積 |
種別 建築年月日 |
|
|---|---|---|---|---|---|
|
大阪メトロ中央線 九条駅(徒歩7分)
大阪府大阪市西区本田2丁目 |
78,000円 6,000円 |
- 78,000円 |
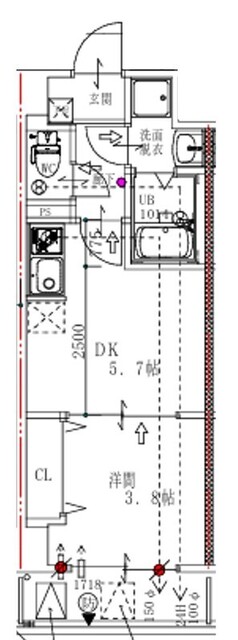
1DK 25.66m2 |
マンション 2026年3月 |
|
この物件のお問い合わせ番号 0001-F000126425-0007
短期解約違約金:2年未満総賃料2ヶ月分 ペット飼育可:小型犬・猫2匹まで ペット飼育時賃料増額:1匹/2千円、2匹/3千円UP 法人契約可:条件調整可能(共益費家賃振替・短期違約金礼金上乗せ 等) 退去時ルームクリーニング代:1650円×平米 月額(マルチサポート 1100円)

- 【ドラッグストア】マツモトキヨシ 九条店

- 【コンビニエンスストア】ファミリーマート 本田みなと通店

- 【スーパー】C&Cエンド 九条店

- 【スーパー】スーパー玉出 九条店

- 【ファーストフード】マクドナルド 九条店

- 【スーパー】阪急オアシス新町店

- 【市役所・区役所】大阪市西区役所

- 【警察】西警察署

- 【スーパー】mandai(万代) フレスポ阿波座店

- 【総合病院】日本生命病院
設備
| 部屋設備 | TV付モニターホン / 下駄箱 / ガスコンロ(コンロ(2口)) / エアコン / フローリング / バルコニー / 浴室乾燥機 / 洗髪洗面化粧台 / 室内洗濯機置場 / バストイレ別 / 2人入居 / シャワー付トイレ / クロゼット / 洗面所独立 / システムキッチン |
|---|---|
| 建物設備 | エレベータ / オートロック / 駐輪場 / 宅配ボックス / ペット可 / バイク置き場 / ネット利用料無料 / 防犯カメラ |
物件詳細
| 交通機関 | ・大阪メトロ中央線 九条駅(徒歩7分) ・大阪メトロ長堀鶴見緑地線 ドーム前千代崎駅(徒歩13分) | ||||
|---|---|---|---|---|---|
| 構造 | RC造 | 方位 | 東 | 階数/総階数 | 2階/10階建て |
| 総戸数 | 36戸 | 駐車場 | 19,800円 | 入居日 | 2026年4月上旬 |
| 環境 | 【ドラッグストア】マツモトキヨシ 九条店 (270m) / 【コンビニエンスストア】ファミリーマート 本田みなと通店 (314m) / 【スーパー】C&Cエンド 九条店 (92m) / 【スーパー】スーパー玉出 九条店 (460m) / 【ファーストフード】マクドナルド 九条店 (449m) / 【スーパー】阪急オアシス新町店 (925m) / 【市役所・区役所】大阪市西区役所 (1,029m) / 【警察】西警察署 (725m) / 【スーパー】mandai(万代) フレスポ阿波座店 (977m) / 【総合病院】日本生命病院 (1,069m) / コンビニ (314m) / スーパー (92m) / 総合病院 (1,069m) | ||||
| 内装代 | - | 償却 | 0円 | 保険 | 損保要 |
| 更新料 | - | 水道料金等預かり金 | - | 特記事項 | - |
| 飲用水 | 公営 | ガス | 都市 | 排水 | 公共下水 |
| 給湯方式 | - | ||||
その他の費用
| 他 | 初回保証料:総賃料50〜60%、引落手数料250円/月 |
|---|
この物件のお問い合わせ番号 0001-F000126425-0007
類似物件一覧
-
10.0万円
-
100,000円
-
6.3万円
-
68,000円
1K
大阪府大阪市西区川口4丁目 -
8.9万円
33,000円
99,000円
1LDK
大阪府大阪市西区川口2丁目 -
7.8万円
-
-
1K
大阪府大阪市西区九条南1丁目 -
8.8万円
96,000円
96,000円
1DK
大阪府大阪市西区京町堀1丁目 -
7.5万円
-
100,000円
1K
大阪府大阪市西区南堀江2丁目 -
6.9万円
-
-
1K
大阪府大阪市西区立売堀6丁目 -
7.1万円
-
119,100円
1K
大阪府大阪市西区立売堀3丁目 -
8.0万円
-
100,000円
1K
大阪府大阪市西区南堀江3丁目 -
8.2万円
-
1.0ヶ月
1K
大阪府大阪市西区境川1丁目 -
10.1万円
-
1.0ヶ月
1LDK
大阪府大阪市西区本田4丁目 -
7.6万円
-
-
1R
大阪府大阪市西区川口1丁目
店舗情報
お電話での物件問い合わせは無料通話で!(直営店のみ)
0001-F000126425-0007
- FC心斎橋店
- 御堂筋線 心斎橋駅(徒歩2分)
- Tel: 06-6253-6060
- 店舗詳細情報
このお部屋にお問い合わせ
あわせて店舗への来店を希望のお客様は、上の希望店舗の来店予約フォームをご利用ください(直営店舗のみ)
Sorry,Japanese & English only. 日本語・英語のみ対応しております。ご了承ください。
- ※取扱形態は媒介(先物)です。 / お部屋の情報は随時更新です / 各種情報と現況に差異がある場合は、現況優先となります。 / 保証会社の審査があります。 / 契約一時金は、契約時に借主より貸主に支払われ返還されない金銭です。

この物件のかんたんお問合せフォーム
お電話でお問合せ
外観・間取り図




大阪府大阪市西区新町3丁目