コープ野村豊中立花町 物件詳細情報
| 沿線・駅 所在地 |
賃料 共益費(管理費) |
敷金 礼金 |
間取り 専有面積 |
種別 建築年月日 |
|
|---|---|---|---|---|---|
|
阪急電鉄宝塚線 豊中駅(徒歩12分)
大阪府豊中市立花町3丁目 |
105,000円 - |
136,500円 105,000円 |
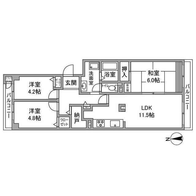
3LDK 67.52m2 |
分譲賃貸 1984年9月 |
|
この物件のお問い合わせ番号 0001-F000124993-0002
外観・間取り図
情報登録日:2026/02/19 情報更新日:2026/02/20 次回更新予定日:2026/02/27
設備
| 部屋設備 | ガスコンロ(コンロ(3口)) / フローリング / トランクルーム / バルコニー / シャワー / 室内洗濯機置場 / バストイレ別 / シャワー付トイレ / 洗面所独立 / システムキッチン |
|---|---|
| 建物設備 | CATV |
物件詳細
| 交通機関 | ・阪急電鉄宝塚線 豊中駅(徒歩12分) ・阪急電鉄宝塚線 岡町駅(徒歩13分) | ||||
|---|---|---|---|---|---|
| 構造 | RC造 | 方位 | 南 | 階数/総階数 | 2階/4階建て |
| 総戸数 | - | 駐車場 | - | 入居日 | 相談 |
| 環境 | |||||
| 内装代 | - | 償却 | 0円 | 保険 | 損保要 |
| 更新料 | - | 水道料金等預かり金 | - | 特記事項 | 定期建物賃貸借物件 |
| 飲用水 | 公営 | ガス | 都市 | 排水 | 公共下水 |
| 給湯方式 | - | ||||
その他の費用
| 一時 | 駐車場登録料 1台(利用時のみ):11,000円/除菌施工料(簡易消火用具付)※契約時のみ:29,700円 |
|---|---|
| 他 | 保証会社要:初回賃料総額100%+月額賃料総額2%(最低1,000円) |
この物件のお問い合わせ番号 0001-F000124993-0002
類似物件一覧
-
10.7万円
107,000円
2.0ヶ月
-
10.5万円
136,500円
1.0ヶ月
3LDK
大阪府豊中市立花町3丁目 -
13.0万円
200,000円
400,000円
3LDK
大阪府豊中市上新田3丁目 -
11.0万円
-
300,000円
3LDK
大阪府豊中市上新田3丁目 -
13.0万円
200,000円
400,000円
3LDK
大阪府豊中市上新田3丁目 -
13.5万円
100,000円
400,000円
3LDK
大阪府豊中市大字上新田 -
13.5万円
100,000円
400,000円
3LDK
大阪府豊中市大字上新田 -
11.0万円
100,000円
2.0ヶ月
3LDK
大阪府豊中市赤阪1丁目 -
9.9万円
99,000円
200,000円
3LDK
大阪府豊中市上新田4丁目 -
8.0万円
-
2.0ヶ月
3DK
大阪府豊中市東豊中町5丁目 -
8.0万円
-
100,000円
3DK
大阪府豊中市上新田3丁目 -
9.4万円
-
204,000円
3LDK
大阪府豊中市原田元町3丁目
店舗情報
お電話での物件問い合わせは無料通話で!(直営店のみ)
0001-F000124993-0002
- 三重法人部
- 059-356-8041
- 三重県四日市市鵜の森1丁目1-19太平洋鵜の森ビル5階
このお部屋にお問い合わせ
あわせて店舗への来店を希望のお客様は、上の希望店舗の来店予約フォームをご利用ください(直営店舗のみ)
Sorry,Japanese & English only. 日本語・英語のみ対応しております。ご了承ください。
- ※取扱形態は媒介(先物)です。 / お部屋の情報は随時更新です / 各種情報と現況に差異がある場合は、現況優先となります。 / 保証会社の審査があります。 / 契約一時金は、契約時に借主より貸主に支払われ返還されない金銭です。

この物件のかんたんお問合せフォーム
お電話でお問合せ(法人用)




大阪府豊中市上新田1丁目