グランセジュール大国町 物件詳細情報
| 沿線・駅 所在地 |
賃料 共益費(管理費) |
敷金 礼金 |
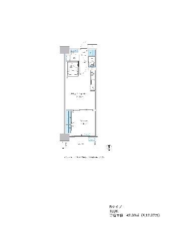
間取り 専有面積 |
種別 建築年月日 |
|
|---|---|---|---|---|---|
|
大阪メトロ御堂筋線 大国町駅(徒歩4分)
大阪府大阪市浪速区敷津東2丁目 |
142,000円 15,000円 |
142,000円 142,000円 |
1LDK 42.90m2 |
マンション 2026年1月 |
|
この物件のお問い合わせ番号 0001-F000124617-0016
駐輪場:有料 ペット飼育時敷金積み増し料金(償却)有り

- 【その他】末富 大阪タカシマヤ
設備
| 部屋設備 | TV付モニターホン / 下駄箱 / ガスコンロ(コンロ(3口)) / エアコン / フローリング / バルコニー / シャワー / 浴室乾燥機 / 洗髪洗面化粧台 / 追焚き / 室内洗濯機置場 / バストイレ別 / 2人入居 / シャワー付トイレ / クロゼット / 洗面所独立 / システムキッチン |
|---|---|
| 建物設備 | エレベータ / オートロック / 駐輪場 / 宅配ボックス / ペット可 / CATV / ネット利用料無料 / 防犯カメラ |
物件詳細
| 交通機関 | ・大阪メトロ御堂筋線 大国町駅(徒歩4分) ・南海電鉄高野線 今宮戎駅(徒歩7分) | ||||
|---|---|---|---|---|---|
| 構造 | RC造 | 方位 | 階数/総階数 | 10階/13階建て | |
| 総戸数 | - | 駐車場 | - | 入居日 | 即入居可 |
| 環境 | 【その他】末富 大阪タカシマヤ (1,101m) | ||||
| 内装代 | - | 償却 | 0円 | 保険 | 損保要 |
| 更新料 | 156,200円 | 水道料金等預かり金 | - | 特記事項 | 定期建物賃貸借物件 |
| 飲用水 | 公営 | ガス | 都市 | 排水 | 公共下水 |
| 給湯方式 | - | ||||
その他の費用
| 他 | 総賃料60%更新時10000円/年 |
|---|
この物件のお問い合わせ番号 0001-F000124617-0016
類似物件一覧
-
14.8万円
148,000円
1.0ヶ月
-
10.6万円
-
1.0ヶ月
1DK
大阪府大阪市浪速区芦原1丁目 -
10.0万円
-
110,000円
1LDK
大阪府大阪市浪速区浪速東1丁目 -
10.1万円
-
214,000円
1LDK
大阪府大阪市浪速区日本橋3丁目 -
10.1万円
-
214,000円
1LDK
大阪府大阪市浪速区日本橋3丁目 -
17.2万円
-
1.0ヶ月
1LDK
大阪府大阪市浪速区塩草1丁目 -
15.5万円
155,000円
1.0ヶ月
1LDK
大阪府大阪市浪速区敷津東2丁目 -
11.5万円
-
2.0ヶ月
1LDK
大阪府大阪市浪速区桜川4丁目 -
11.8万円
-
1.0ヶ月
1LDK
大阪府大阪市浪速区塩草1丁目 -
10.7万円
-
1.0ヶ月
1DK
大阪府大阪市浪速区芦原1丁目 -
11.3万円
-
1.0ヶ月
1DK
大阪府大阪市浪速区芦原1丁目 -
15.4万円
-
1.0ヶ月
1LDK
大阪府大阪市浪速区塩草1丁目
店舗情報
お電話での物件問い合わせは無料通話で!(直営店のみ)
0001-F000124617-0016
- FC肥後橋店
- 四つ橋線 肥後橋駅(徒歩2分)
- Tel: 06-6441-5000
- 店舗詳細情報
このお部屋にお問い合わせ
あわせて店舗への来店を希望のお客様は、上の希望店舗の来店予約フォームをご利用ください(直営店舗のみ)
Sorry,Japanese & English only. 日本語・英語のみ対応しております。ご了承ください。
- ※取扱形態は媒介(先物)です。 / お部屋の情報は随時更新です / 各種情報と現況に差異がある場合は、現況優先となります。 / 保証会社の審査があります。 / 契約一時金は、契約時に借主より貸主に支払われ返還されない金銭です。

この物件のかんたんお問合せフォーム
お電話でお問合せ
外観・間取り図

























大阪府大阪市浪速区敷津東2丁目