アーバネックス堺筋本町 物件詳細情報
| 沿線・駅 所在地 |
賃料 共益費(管理費) |
敷金 礼金 |
間取り 専有面積 |
種別 建築年月日 |
|
|---|---|---|---|---|---|
|
大阪メトロ中央線 堺筋本町駅(徒歩4分)
大阪府大阪市中央区南本町2丁目 |
177,500円 13,000円 |
- - |
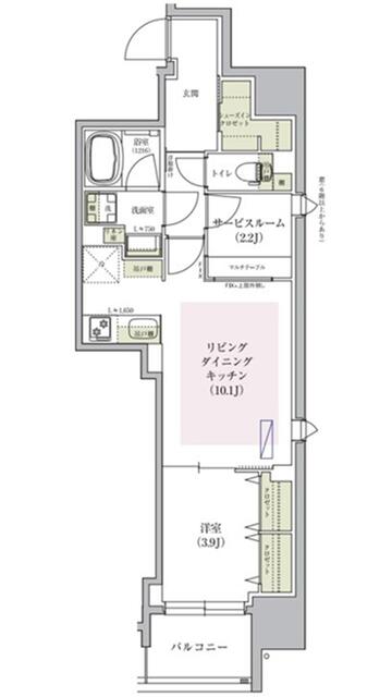
1SLDK 43.99m2 |
マンション 2025年12月 |
|
この物件のお問い合わせ番号 0001-F000123010-0016
水道代2人入居4400円/月 月額(水道代 2750円)

- 【スーパー】ライフ 堺筋本町店

- 【スーパー】FRESCO(フレスコ) ミニ 御堂筋本町店

- 【スーパー】KOHYO(コーヨー) 南船場店

- 【コンビニエンスストア】ファミリーマート カツラギ南本町店

- 【コンビニエンスストア】セブンイレブン 大阪南本町2丁目店

- 【銀行】ゆうちょ銀行大阪東店

- 【市役所・区役所】大阪市中央区役所

- 【警察】東警察署

- 【ドラッグストア】スギドラッグ 北久宝寺店

- 【郵便局】大阪東郵便局
設備
| 部屋設備 | TV付モニターホン / 下駄箱 / ガスコンロ(コンロ(2口)) / エアコン / フローリング / ウォークインクロゼット / 床暖房 / バルコニー / シャワー / 浴室乾燥機 / 洗髪洗面化粧台 / 室内洗濯機置場 / バストイレ別 / 角部屋 / 2人入居 / シャワー付トイレ / クロゼット / 洗面所独立 / システムキッチン |
|---|---|
| 建物設備 | エレベータ / オートロック / 駐輪場 / 宅配ボックス / ペット可 / ネット利用料無料 / ネット環境(光ファイバ対応) / バイク置き場 / 防犯カメラ |
物件詳細
| 交通機関 | ・大阪メトロ中央線 堺筋本町駅(徒歩4分) ・大阪メトロ御堂筋線 本町駅(徒歩7分) | ||||
|---|---|---|---|---|---|
| 構造 | RC造 | 方位 | 北 | 階数/総階数 | 10階/15階建て |
| 総戸数 | 56戸 | 駐車場 | - | 入居日 | 即入居可 |
| 環境 | 【スーパー】ライフ 堺筋本町店 (463m) / 【スーパー】FRESCO(フレスコ) ミニ 御堂筋本町店 (567m) / 【スーパー】KOHYO(コーヨー) 南船場店 (566m) / 【コンビニエンスストア】ファミリーマート カツラギ南本町店 (298m) / 【コンビニエンスストア】セブンイレブン 大阪南本町2丁目店 (128m) / 【銀行】ゆうちょ銀行大阪東店 (612m) / 【市役所・区役所】大阪市中央区役所 (568m) / 【警察】東警察署 (428m) / 【ドラッグストア】スギドラッグ 北久宝寺店 (496m) / 【郵便局】大阪東郵便局 (612m) / コンビニ (298m) / スーパー (463m) | ||||
| 内装代 | - | 償却 | 0円 | 保険 | 損保要 |
| 更新料 | 30,000円 | 水道料金等預かり金 | - | 特記事項 | - |
| 飲用水 | 公営 | ガス | 都市 | 排水 | 公共下水 |
| 給湯方式 | - | ||||
その他の費用
| 一時 | 水道料(居住用):2,750円 |
|---|---|
| 他 | 初回:月額総賃料50%(法人100%),月次:月額総賃料1.0%(大手法人敷金賃料1ヶ月) |
この物件のお問い合わせ番号 0001-F000123010-0016
類似物件一覧
-
12.9万円
-
1.0ヶ月
-
12.5万円
125,000円
-
1DK
大阪府大阪市中央区徳井町2丁目 -
19.6万円
-
-
1LDK
大阪府大阪市中央区材木町 -
15.5万円
-
-
1LDK
大阪府大阪市中央区久太郎町1丁目 -
18.0万円
200,000円
400,000円
1SLDK
大阪府大阪市中央区内久宝寺町4丁目 -
13.8万円
-
-
1LDK
大阪府大阪市中央区淡路町1丁目 -
13.5万円
-
150,000円
1LDK
大阪府大阪市中央区南船場1丁目 -
16.8万円
-
168,000円
1LDK
大阪府大阪市中央区谷町4丁目 -
17.0万円
-
1.0ヶ月
1LDK
大阪府大阪市中央区安堂寺町1丁目 -
20.0万円
-
-
1LDK
大阪府大阪市中央区松屋町 -
13.0万円
-
1.0ヶ月
1LDK
大阪府大阪市中央区南久宝寺町1丁目 -
15.2万円
-
300,000円
1SLDK
大阪府大阪市中央区瓦屋町1丁目
店舗情報
お電話での物件問い合わせは無料通話で!(直営店のみ)
0001-F000123010-0016
- FC江坂店
- 御堂筋線 江坂駅(徒歩1分)
- Tel: 06-6386-0321
- 店舗詳細情報
このお部屋にお問い合わせ
あわせて店舗への来店を希望のお客様は、上の希望店舗の来店予約フォームをご利用ください(直営店舗のみ)
Sorry,Japanese & English only. 日本語・英語のみ対応しております。ご了承ください。
- ※取扱形態は媒介(先物)です。 / お部屋の情報は随時更新です / 各種情報と現況に差異がある場合は、現況優先となります。 / 保証会社の審査があります。 / 契約一時金は、契約時に借主より貸主に支払われ返還されない金銭です。

この物件のかんたんお問合せフォーム
お電話でお問合せ
外観・間取り図




















大阪府大阪市中央区鎗屋町2丁目