プレサンス東淀川駅前プローシェ 物件詳細情報
| 沿線・駅 所在地 |
賃料 共益費(管理費) |
敷金 礼金 |
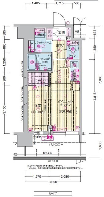
間取り 専有面積 |
種別 建築年月日 |
|
|---|---|---|---|---|---|
|
JR東海道本線 東淀川駅(徒歩2分)
大阪府大阪市東淀川区西淡路1丁目 |
87,600円 6,900円 |
- - |
1DK 25.55m2 |
分譲賃貸 2026年2月 |
|
この物件のお問い合わせ番号 0001-F000120922-0152
月額(プレサポ安心 990円)

- 【ファーストフード】マクドナルド 東三国駅前店
設備
| 部屋設備 | TV付モニターホン / 下駄箱 / ガスコンロ(コンロ(2口)) / エアコン / フローリング / ウォークインクロゼット / バルコニー / シャワー / 浴室乾燥機 / 洗髪洗面化粧台 / 室内洗濯機置場 / バストイレ別 / シャワー付トイレ / 洗面所独立 / システムキッチン |
|---|---|
| 建物設備 | エレベータ / オートロック / 駐輪場 / 宅配ボックス / BSアンテナ / CATV / バイク置き場 / ネット利用料無料 / 防犯カメラ |
物件詳細
| 交通機関 | ・JR東海道本線 東淀川駅(徒歩2分) ・JR東海道本線 新大阪駅(徒歩7分) | ||||
|---|---|---|---|---|---|
| 構造 | RC造 | 方位 | 北 | 階数/総階数 | 11階/15階建て |
| 総戸数 | 257戸 | 駐車場 | 18,000円 | 入居日 | 即入居可 |
| 環境 | 【ファーストフード】マクドナルド 東三国駅前店 (1,059m) / コンビニ (283m) / スーパー (995m) | ||||
| 内装代 | - | 償却 | 0円 | 保険 | 損保要 |
| 更新料 | 11,000円 | 水道料金等預かり金 | - | 特記事項 | - |
| 飲用水 | 公営 | ガス | 都市 | 排水 | 公共下水 |
| 給湯方式 | - | ||||
その他の費用
| 他 | 初回:月額総賃料50%月額:総賃料1.5% |
|---|
この物件のお問い合わせ番号 0001-F000120922-0152
類似物件一覧
-
9.4万円
-
-
-
9.4万円
-
-
1LDK
大阪府大阪市東淀川区上新庄3丁目 -
7.2万円
-
1.0ヶ月
1K
大阪府大阪市東淀川区東中島4丁目 -
11.0万円
-
1.0ヶ月
1LDK
大阪府大阪市東淀川区南江口3丁目 -
8.7万円
-
-
1DK
大阪府大阪市東淀川区西淡路1丁目 -
8.2万円
-
1.0ヶ月
1K
大阪府大阪市東淀川区東中島1丁目 -
7.3万円
-
1.0ヶ月
1K
大阪府大阪市東淀川区東中島1丁目 -
7.1万円
-
-
1K
大阪府大阪市東淀川区東中島3丁目 -
6.5万円
-
64,500円
1K
大阪府大阪市東淀川区東中島1丁目 -
6.8万円
-
100,000円
1LDK
大阪府大阪市東淀川区瑞光5丁目 -
6.2万円
-
-
1K
大阪府大阪市東淀川区淡路2丁目 -
8.8万円
-
-
1DK
大阪府大阪市東淀川区西淡路1丁目
店舗情報
お電話での物件問い合わせは無料通話で!(直営店のみ)
0001-F000120922-0152
- FC天六店
- 谷町線 天神橋筋六丁目駅(徒歩1分)
- Tel: 06-6882-4008
- 店舗詳細情報
このお部屋にお問い合わせ
あわせて店舗への来店を希望のお客様は、上の希望店舗の来店予約フォームをご利用ください(直営店舗のみ)
Sorry,Japanese & English only. 日本語・英語のみ対応しております。ご了承ください。
- ※取扱形態は媒介(先物)です。 / お部屋の情報は随時更新です / 各種情報と現況に差異がある場合は、現況優先となります。 / 保証会社の審査があります。 / 契約一時金は、契約時に借主より貸主に支払われ返還されない金銭です。

この物件のかんたんお問合せフォーム
お電話でお問合せ
外観・間取り図

























大阪府大阪市東淀川区上新庄3丁目