プレサンス東淀川駅前プローシェ 物件詳細情報
| 沿線・駅 所在地 |
賃料 共益費(管理費) |
敷金 礼金 |
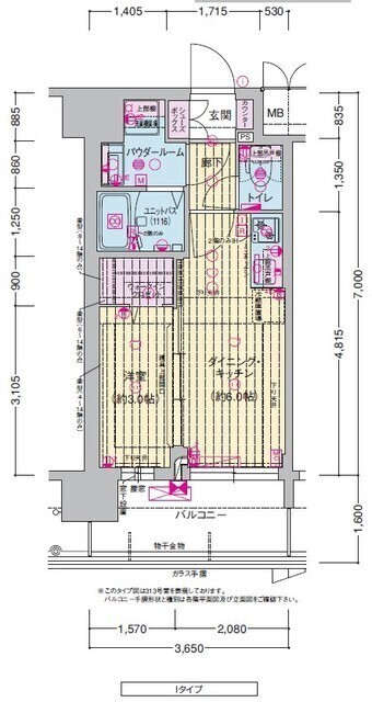
間取り 専有面積 |
種別 建築年月日 |
|
|---|---|---|---|---|---|
|
JR東海道本線 東淀川駅(徒歩2分)
大阪府大阪市東淀川区西淡路1丁目 |
84,600円 6,900円 |
- 84,600円 |
1DK 25.55m2 |
分譲賃貸 2026年2月 |
|
この物件のお問い合わせ番号 0001-F000120714-0175

- 【ファーストフード】マクドナルド 東三国駅前店

- 【ファーストフード】ケンタッキー東三国店

- 【スーパー】スーパーマーケットバロー 淡路店

- 【スーパー】ダイエー東三国店・イオンフードスタイル

- 【コンビニエンスストア】セブンイレブン 大阪東淀川駅前店

- 【コンビニエンスストア】ローソン東三国南口店

- 【ジム】セントラルフィットネスクラブ 新大阪駅前

- 【ジム】URBAN FIT(アーバン フィット)24 東三国店

- 【クリーニング】ライフクリーナー 宮原店

- 【ドラッグストア】ジャパン東三国店
設備
| 部屋設備 | TV付モニターホン / 下駄箱 / ガスコンロ(コンロ(2口)) / エアコン / フローリング / ウォークインクロゼット / バルコニー / シャワー / 浴室乾燥機 / 洗髪洗面化粧台 / 室内洗濯機置場 / バストイレ別 / シャワー付トイレ / 洗面所独立 / システムキッチン |
|---|---|
| 建物設備 | エレベータ / オートロック / 駐輪場 / 宅配ボックス / BSアンテナ / CATV / バイク置き場 / ネット利用料無料 / 防犯カメラ |
物件詳細
| 交通機関 | ・JR東海道本線 東淀川駅(徒歩2分) ・JR東海道本線 新大阪駅(徒歩7分) | ||||
|---|---|---|---|---|---|
| 構造 | RC造 | 方位 | 北 | 階数/総階数 | 6階/15階建て |
| 総戸数 | 257戸 | 駐車場 | 18,000円 | 入居日 | 2026年2月下旬 |
| 環境 | 【ファーストフード】マクドナルド 東三国駅前店 (1,059m) / 【ファーストフード】ケンタッキー東三国店 (1,019m) / 【スーパー】スーパーマーケットバロー 淡路店 (995m) / 【スーパー】ダイエー東三国店・イオンフードスタイル (1,261m) / 【コンビニエンスストア】セブンイレブン 大阪東淀川駅前店 (283m) / 【コンビニエンスストア】ローソン東三国南口店 (552m) / 【ジム】セントラルフィットネスクラブ 新大阪駅前 (1,245m) / 【ジム】URBAN FIT(アーバン フィット)24 東三国店 (901m) / 【クリーニング】ライフクリーナー 宮原店 (569m) / 【ドラッグストア】ジャパン東三国店 (1,042m) / コンビニ (283m) / スーパー (995m) | ||||
| 内装代 | - | 償却 | 0円 | 保険 | 損保要 |
| 更新料 | 11,000円 | 水道料金等預かり金 | - | 特記事項 | - |
| 飲用水 | 公営 | ガス | 都市 | 排水 | 公共下水 |
| 給湯方式 | - | ||||
その他の費用
| 他 | 初回:月額総賃料50%月額:総賃料1.5% |
|---|
この物件のお問い合わせ番号 0001-F000120714-0175
類似物件一覧
-
6.6万円
-
-
-
8.9万円
-
1.0ヶ月
1DK
大阪府大阪市東淀川区東中島4丁目 -
9.9万円
-
-
1LDK
大阪府大阪市東淀川区東中島1丁目 -
10.3万円
-
-
1LDK
大阪府大阪市東淀川区東中島2丁目 -
8.8万円
-
1.0ヶ月
1DK
大阪府大阪市東淀川区西淡路1丁目 -
8.7万円
-
1.0ヶ月
1DK
大阪府大阪市東淀川区西淡路1丁目 -
6.9万円
-
77,000円
1K
大阪府大阪市東淀川区東中島2丁目 -
7.5万円
-
79,000円
1LDK
大阪府大阪市東淀川区淡路5丁目 -
7.3万円
-
1.0ヶ月
1K
大阪府大阪市東淀川区東中島4丁目 -
6.9万円
-
-
1K
大阪府大阪市東淀川区東淡路4丁目 -
6.5万円
-
1.0ヶ月
1K
大阪府大阪市東淀川区淡路1丁目 -
8.6万円
-
1.0ヶ月
1DK
大阪府大阪市東淀川区西淡路1丁目
店舗情報
お電話での物件問い合わせは無料通話で!(直営店のみ)
0001-F000120714-0175
- FC東三国店
- 御堂筋線 東三国駅(徒歩1分)
- Tel: 06-6399-3251
- 店舗詳細情報
このお部屋にお問い合わせ
あわせて店舗への来店を希望のお客様は、上の希望店舗の来店予約フォームをご利用ください(直営店舗のみ)
Sorry,Japanese & English only. 日本語・英語のみ対応しております。ご了承ください。
- ※取扱形態は媒介(先物)です。 / お部屋の情報は随時更新です / 各種情報と現況に差異がある場合は、現況優先となります。 / 保証会社の審査があります。 / 契約一時金は、契約時に借主より貸主に支払われ返還されない金銭です。

この物件のかんたんお問合せフォーム
お電話でお問合せ
外観・間取り図




大阪府大阪市東淀川区上新庄3丁目