大阪府大阪市西区新町3丁目 1LDK 44.64m2 物件詳細情報
| 沿線・駅 所在地 |
賃料 共益費(管理費) |
敷金 礼金 |
間取り 専有面積 |
種別 建築年月日 |
|
|---|---|---|---|---|---|
|
大阪メトロ長堀鶴見緑地線 西長堀駅(徒歩2分)
大阪府大阪市西区新町3丁目 |
165,500円 12,500円 |
- 200,000円 |
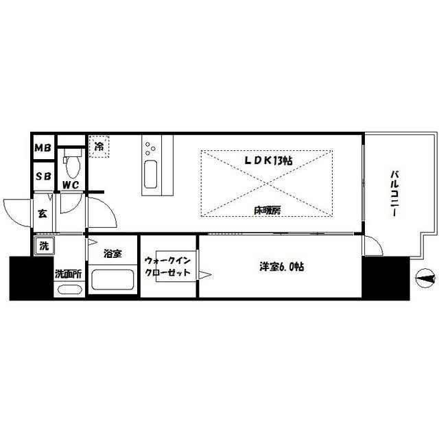
1LDK 44.64m2 |
分譲賃貸 2018年7月 |
|
この物件のお問い合わせ番号 0001-F000120365-0003
月額(プレサポ安心24 990円)

- 【公園】靱公園

- 【スーパー】阪急オアシス新町店

- 【スーパー】イオンフードスタイル四ツ橋店
設備
| 部屋設備 | TV付モニターホン / 下駄箱 / ガスコンロ(コンロ(3口)) / エアコン / フローリング / ウォークインクロゼット / 床暖房 / バルコニー / シャワー / 浴室乾燥機 / 洗髪洗面化粧台 / 追焚き / 室内洗濯機置場 / バストイレ別 / 角部屋 / 2人入居 / シャワー付トイレ / クロゼット / 洗面所独立 / カウンターキッチン / システムキッチン |
|---|---|
| 建物設備 | エレベータ / オートロック / 駐輪場 / 宅配ボックス / バリアフリー / BSアンテナ / CSアンテナ / CATV / バイク置き場 / ネット利用料無料 / 防犯カメラ |
物件詳細
| 交通機関 | ・大阪メトロ長堀鶴見緑地線 西長堀駅(徒歩2分) ・大阪メトロ四つ橋線 四ツ橋駅(徒歩15分) | ||||
|---|---|---|---|---|---|
| 構造 | RC造 | 方位 | 南 | 階数/総階数 | 15階/15階建て |
| 総戸数 | 70戸 | 駐車場 | 近隣 | 入居日 | 2026年2月下旬 |
| 環境 | 【公園】靱公園 (1,148m) / 【スーパー】阪急オアシス新町店 (265m) / 【スーパー】イオンフードスタイル四ツ橋店 (916m) / スーパー (265m) | ||||
| 内装代 | - | 償却 | 0円 | 保険 | 損保要 |
| 更新料 | 11,000円 | 水道料金等預かり金 | - | 特記事項 | - |
| 飲用水 | 公営 | ガス | 都市 | 排水 | 公共下水 |
| 給湯方式 | - | ||||
その他の費用
| 他 | 初回保証料:総賃料の50%月次保証料:総賃料の1.5% |
|---|
この物件のお問い合わせ番号 0001-F000120365-0003
類似物件一覧
-
13.8万円
-
-
-
13.2万円
-
160,000円
1LDK
大阪府大阪市西区立売堀5丁目 -
11.9万円
59,500円
-
1LDK
大阪府大阪市西区西本町3丁目 -
13.8万円
-
1.0ヶ月
1LDK
大阪府大阪市西区本田2丁目 -
14.7万円
-
1.0ヶ月
1LDK
大阪府大阪市西区南堀江2丁目 -
13.3万円
-
1.0ヶ月
1LDK
大阪府大阪市西区本田2丁目 -
12.7万円
63,500円
-
1LDK
大阪府大阪市西区西本町3丁目 -
12.9万円
-
150,000円
1LDK
大阪府大阪市西区立売堀6丁目 -
12.0万円
-
150,000円
1LDK
大阪府大阪市西区立売堀4丁目 -
19.7万円
-
-
1LDK
大阪府大阪市西区南堀江2丁目 -
18.2万円
-
-
1LDK
大阪府大阪市西区南堀江2丁目 -
13.0万円
-
130,000円
1LDK
大阪府大阪市西区京町堀3丁目
店舗情報
お電話での物件問い合わせは無料通話で!(直営店のみ)
0001-F000120365-0003
- FC西中島南方店
- 御堂筋線 西中島南方駅(徒歩1分)
- Tel: 06-6390-3211
- 店舗詳細情報
このお部屋にお問い合わせ
あわせて店舗への来店を希望のお客様は、上の希望店舗の来店予約フォームをご利用ください(直営店舗のみ)
Sorry,Japanese & English only. 日本語・英語のみ対応しております。ご了承ください。
- ※取扱形態は媒介(先物)です。 / お部屋の情報は随時更新です / 各種情報と現況に差異がある場合は、現況優先となります。 / 保証会社の審査があります。 / 契約一時金は、契約時に借主より貸主に支払われ返還されない金銭です。

この物件のかんたんお問合せフォーム
お電話でお問合せ
外観・間取り図

























大阪府大阪市西区立売堀3丁目