大阪府大阪市西淀川区福町2丁目 2LDK 55.02m2 物件詳細情報
| 沿線・駅 所在地 |
賃料 共益費(管理費) |
敷金 礼金 |
間取り 専有面積 |
種別 建築年月日 |
|
|---|---|---|---|---|---|
|
阪神電鉄阪神なんば線 福駅(徒歩10分)
大阪府大阪市西淀川区福町2丁目 |
181,000円 10,000円 |
- - |
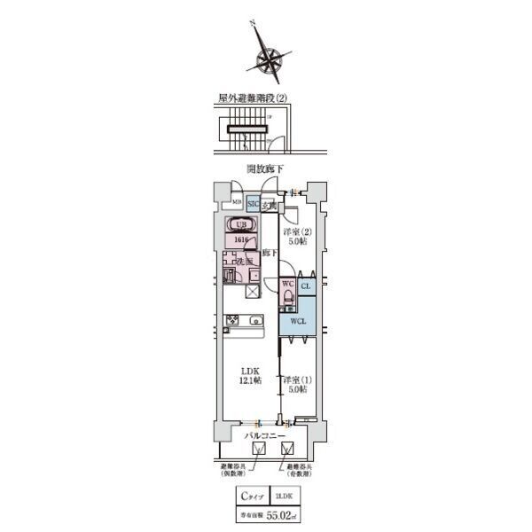
2LDK 55.02m2 |
マンション 2026年3月 |
|
この物件のお問い合わせ番号 0001-F000118852-0053
・1年未満の解約は、賃料の1ヶ月分、短期解約違約金有。 ・ペット飼育可能(小型犬?猫どちらか1匹まで)共益費3000円増額、飼育時クリーニング費27500円(税込)

- 【公園】西淀公園
設備
| 部屋設備 | TV付モニターホン / 下駄箱 / ガスコンロ(コンロ(3口)) / エアコン / フローリング / ウォークインクロゼット / バルコニー / シャワー / 浴室乾燥機 / 洗髪洗面化粧台 / 室内洗濯機置場 / バストイレ別 / 2人入居 / シャワー付トイレ / クロゼット / 全居室収納 / 洗面所独立 / カウンターキッチン / システムキッチン |
|---|---|
| 建物設備 | エレベータ / オートロック / 駐輪場 / 宅配ボックス / ペット可 / バイク置き場 / ネット利用料無料 / 防犯カメラ |
物件詳細
| 交通機関 | ・阪神電鉄阪神なんば線 福駅(徒歩10分) ・阪神電鉄阪神なんば線 出来島駅(徒歩21分) | ||||
|---|---|---|---|---|---|
| 構造 | RC造 | 方位 | 南 | 階数/総階数 | 10階/14階建て |
| 総戸数 | 78戸 | 駐車場 | 16,500円 | 入居日 | 2026年3月下旬 |
| 環境 | 【公園】西淀公園 (1,904m) / コンビニ (2,490m) / スーパー (2,261m) | ||||
| 内装代 | - | 償却 | 0円 | 保険 | 損保要 |
| 更新料 | - | 水道料金等預かり金 | - | 特記事項 | - |
| 飲用水 | 公営 | ガス | 都市 | 排水 | 公共下水 |
| 給湯方式 | - | ||||
その他の費用
| 一時 | アクト安心ライフ24:16,500円 |
|---|---|
| 他 | @初回保証料:月額総額50%月額手数料:1,000円年間保証料:10,000円 A初回保証料:月額総額60%月額保証料:@法人契約1,700円A個人契約(火災保険付きプラン):2,490円 |
この物件のお問い合わせ番号 0001-F000118852-0053
類似物件一覧
-
17.3万円
-
-
-
20.6万円
-
-
2SLDK
大阪府大阪市西淀川区福町2丁目 -
19.0万円
-
-
2SLDK
大阪府大阪市西淀川区福町2丁目 -
18.3万円
-
-
2LDK
大阪府大阪市西淀川区福町2丁目 -
18.6万円
-
-
2LDK
大阪府大阪市西淀川区福町2丁目 -
18.3万円
-
-
2LDK
大阪府大阪市西淀川区福町2丁目 -
20.5万円
-
-
2SLDK
大阪府大阪市西淀川区福町2丁目 -
18.5万円
-
-
2LDK
大阪府大阪市西淀川区福町2丁目 -
20.6万円
-
-
2SLDK
大阪府大阪市西淀川区福町2丁目 -
19.2万円
-
-
2LDK
大阪府大阪市西淀川区福町2丁目 -
19.5万円
-
-
2SLDK
大阪府大阪市西淀川区福町2丁目 -
20.1万円
-
-
2SLDK
大阪府大阪市西淀川区福町2丁目
店舗情報
お電話での物件問い合わせは無料通話で!(直営店のみ)
0001-F000118852-0053
- FC西中島南方店
- 御堂筋線 西中島南方駅(徒歩1分)
- Tel: 06-6390-3211
- 店舗詳細情報
このお部屋にお問い合わせ
あわせて店舗への来店を希望のお客様は、上の希望店舗の来店予約フォームをご利用ください(直営店舗のみ)
Sorry,Japanese & English only. 日本語・英語のみ対応しております。ご了承ください。
- ※取扱形態は媒介(先物)です。 / お部屋の情報は随時更新です / 各種情報と現況に差異がある場合は、現況優先となります。 / 保証会社の審査があります。 / 契約一時金は、契約時に借主より貸主に支払われ返還されない金銭です。

この物件のかんたんお問合せフォーム
お電話でお問合せ
外観・間取り図

























大阪府大阪市西淀川区福町2丁目