アドバンス難波南ノエル 物件詳細情報
| 沿線・駅 所在地 |
賃料 共益費(管理費) |
敷金 礼金 |
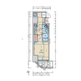
間取り 専有面積 |
種別 建築年月日 |
|
|---|---|---|---|---|---|
|
大阪メトロ堺筋線 恵美須町駅(徒歩6分)
大阪府大阪市浪速区下寺3丁目 |
63,200円 4,800円 |
- 126,400円 |
1K 24.12m2 |
マンション 2022年11月 |
|
この物件のお問い合わせ番号 0001-F000118705-0005
短期違約金:1年未満の解約は家賃の1ヶ月分、小型犬・猫合計2匹まで飼育可能(ペット飼育時、敷金1ヶ月分必要) 月額(スマサポコンシェル 1320円)

- 【スーパー】ライフ 下寺店

- 【コンビニエンスストア】セブンイレブン 大阪日本橋3丁目店

- 【コンビニエンスストア】ローソン 日本橋四丁目店

- 【コンビニエンスストア】ファミリーマート 日本橋四丁目店

- 【郵便局】浪速日本橋郵便局
設備
| 部屋設備 | フローリング / バルコニー / 浴室乾燥機 / 洗髪洗面化粧台 / 室内洗濯機置場 / バストイレ別 / エアコン / ガスコンロ(コンロ(2口)) / 下駄箱 / TV付モニターホン / 角部屋 / シャワー付トイレ / クロゼット / 洗面所独立 / システムキッチン |
|---|---|
| 建物設備 | エレベータ / オートロック / 駐輪場 / 宅配ボックス / ペット可 / ネット利用料無料 / ネット環境(光ファイバ対応) / バリアフリー / バイク置き場 / 防犯カメラ |
物件詳細
| 交通機関 | ・大阪メトロ堺筋線 恵美須町駅(徒歩6分) ・大阪メトロ谷町線 四天王寺前夕陽ヶ丘駅(徒歩9分) | ||||
|---|---|---|---|---|---|
| 構造 | RC造 | 方位 | 北 | 階数/総階数 | 7階/15階建て |
| 総戸数 | - | 駐車場 | - | 入居日 | 2026年3月下旬 |
| 環境 | 【スーパー】ライフ 下寺店 (86m) / 【コンビニエンスストア】セブンイレブン 大阪日本橋3丁目店 (637m) / 【コンビニエンスストア】ローソン 日本橋四丁目店 (479m) / 【コンビニエンスストア】ファミリーマート 日本橋四丁目店 (608m) / 【郵便局】浪速日本橋郵便局 (586m) / コンビニ (637m) / スーパー (86m) | ||||
| 内装代 | - | 償却 | 0円 | 保険 | 損保要 |
| 更新料 | - | 水道料金等預かり金 | - | 特記事項 | - |
| 飲用水 | 公営 | ガス | 都市 | 排水 | 公共下水 |
| 給湯方式 | - | ||||
その他の費用
| 一時 | スマサポコンシェル入会金:5,500円 |
|---|---|
| 他 | 初回保証料:月額総賃料の30%、更新時:20,000円/年、引落手数料:330円/月 |
この物件のお問い合わせ番号 0001-F000118705-0005
類似物件一覧
-
7.3万円
-
-
-
6.5万円
-
-
1K
大阪府大阪市浪速区桜川4丁目 -
7.8万円
-
-
1K
大阪府大阪市浪速区敷津西1丁目 -
7.0万円
-
78,000円
1K
大阪府大阪市浪速区元町1丁目 -
7.1万円
-
-
1K
大阪府大阪市浪速区大国3丁目 -
5.8万円
-
90,000円
1K
大阪府大阪市浪速区塩草2丁目 -
6.7万円
-
1.0ヶ月
1K
大阪府大阪市浪速区元町2丁目 -
6.2万円
-
-
1K
大阪府大阪市浪速区塩草3丁目 -
8.0万円
-
-
1K
大阪府大阪市浪速区大国1丁目 -
5.9万円
-
1.0ヶ月
1K
大阪府大阪市浪速区幸町3丁目 -
6.6万円
-
-
1K
大阪府大阪市浪速区芦原1丁目 -
7.1万円
-
-
1K
大阪府大阪市浪速区大国3丁目
店舗情報
お電話での物件問い合わせは無料通話で!(直営店のみ)
0001-F000118705-0005
- FC肥後橋店
- 四つ橋線 肥後橋駅(徒歩2分)
- Tel: 06-6441-5000
- 店舗詳細情報
このお部屋にお問い合わせ
あわせて店舗への来店を希望のお客様は、上の希望店舗の来店予約フォームをご利用ください(直営店舗のみ)
Sorry,Japanese & English only. 日本語・英語のみ対応しております。ご了承ください。
- ※取扱形態は媒介(先物)です。 / お部屋の情報は随時更新です / 各種情報と現況に差異がある場合は、現況優先となります。 / 保証会社の審査があります。 / 契約一時金は、契約時に借主より貸主に支払われ返還されない金銭です。

この物件のかんたんお問合せフォーム
お電話でお問合せ
外観・間取り図

























大阪府大阪市浪速区大国3丁目