ウエリス茨木 物件詳細情報
| 沿線・駅 所在地 |
賃料 共益費(管理費) |
敷金 礼金 |
間取り 専有面積 |
種別 建築年月日 |
|
|---|---|---|---|---|---|
|
阪急電鉄京都線 茨木市駅(徒歩8分)
大阪府茨木市中津町 |
190,000円 - |
190,000円 380,000円 |
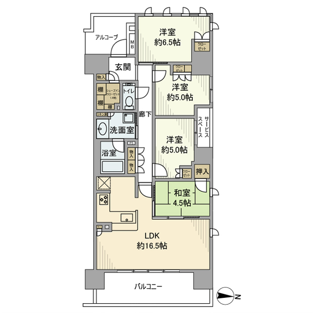
4LDK 89.08m2 |
分譲賃貸 2019年2月 |
|
この物件のお問い合わせ番号 0001-F000118249-0001
外観・間取り図
情報登録日:2026/03/10 情報更新日:2026/03/11 次回更新予定日:2026/03/18
設備
| 部屋設備 | フローリング / 床暖房 / バルコニー / シャワー / 浴室乾燥機 / 追焚き / 室内洗濯機置場 / バストイレ別 / ガスコンロ(コンロ(3口)) / TV付モニターホン / 角部屋 / シャワー付トイレ / 洗面所独立 / カウンターキッチン / システムキッチン |
|---|---|
| 建物設備 | エレベータ / オートロック / 宅配ボックス / CATV |
物件詳細
| 交通機関 | ・阪急電鉄京都線 茨木市駅(徒歩8分) | ||||
|---|---|---|---|---|---|
| 構造 | RC造 | 方位 | 東 | 階数/総階数 | 2階/14階建て |
| 総戸数 | - | 駐車場 | - | 入居日 | 2026年4月中旬 |
| 環境 | |||||
| 内装代 | - | 償却 | 0円 | 保険 | 損保要 |
| 更新料 | - | 水道料金等預かり金 | - | 特記事項 | 定期建物賃貸借物件 |
| 飲用水 | 公営 | ガス | 都市 | 排水 | 公共下水 |
| 給湯方式 | - | ||||
その他の費用
| 一時 | 駐車場登録料 1台(利用時のみ):11,000円/除菌施工料(簡易消火用具付)※契約時のみ:29,700円 |
|---|---|
| 他 | 保証会社要:初回賃料総額100%+月額賃料総額2%(最低1,000円) |
この物件のお問い合わせ番号 0001-F000118249-0001
類似物件一覧
店舗情報
お電話での物件問い合わせは無料通話で!(直営店のみ)
0001-F000118249-0001
- FC山田店
- 阪急電鉄千里線 山田駅(徒歩1分)
- Tel: 06-6872-3232
- 店舗詳細情報
このお部屋にお問い合わせ
あわせて店舗への来店を希望のお客様は、上の希望店舗の来店予約フォームをご利用ください(直営店舗のみ)
Sorry,Japanese & English only. 日本語・英語のみ対応しております。ご了承ください。
- ※取扱形態は媒介(先物)です。 / お部屋の情報は随時更新です / 各種情報と現況に差異がある場合は、現況優先となります。 / 保証会社の審査があります。 / 契約一時金は、契約時に借主より貸主に支払われ返還されない金銭です。

この物件のかんたんお問合せフォーム
お電話でお問合せ




大阪府茨木市南春日丘2丁目