エグゼ大阪CITYオースティン 物件詳細情報
| 沿線・駅 所在地 |
賃料 共益費(管理費) |
敷金 礼金 |
間取り 専有面積 |
種別 建築年月日 |
|
|---|---|---|---|---|---|
|
大阪メトロ千日前線 新深江駅(徒歩9分)
大阪府大阪市東成区深江南3丁目 |
78,600円 10,000円 |
- - |
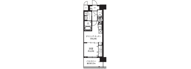
1DK 30.60m2 |
分譲賃貸 2025年9月 |
|
この物件のお問い合わせ番号 0001-F000115973-0011

- 【スーパー】イオン 布施駅前店

- 【ドラッグストア】キリン堂 東大阪長堂店

- 【図書館】東大阪市立 永和図書館

- 【コンビニエンスストア】セブンイレブン 東大阪長堂2丁目南店

- 【デパート】近鉄百貨店 東大阪店

- 【総合病院】医療法人住本会住本医院
設備
| 部屋設備 | TV付モニターホン / ガスコンロ(コンロ(2口)) / エアコン / フローリング / バルコニー / 浴室乾燥機 / 洗髪洗面化粧台 / バストイレ別 / シャワー付トイレ / クロゼット / 洗面所独立 / システムキッチン |
|---|---|
| 建物設備 | エレベータ / オートロック / 駐輪場 / 宅配ボックス / バイク置き場 / 防犯カメラ |
物件詳細
| 交通機関 | ・大阪メトロ千日前線 新深江駅(徒歩9分) ・近鉄大阪線 布施駅(徒歩8分) | ||||
|---|---|---|---|---|---|
| 構造 | RC造 | 方位 | 南 | 階数/総階数 | 6階/12階建て |
| 総戸数 | 70戸 | 駐車場 | - | 入居日 | 即入居可 |
| 環境 | 【スーパー】イオン 布施駅前店 (427m) / 【ドラッグストア】キリン堂 東大阪長堂店 (321m) / 【図書館】東大阪市立 永和図書館 (467m) / 【コンビニエンスストア】セブンイレブン 東大阪長堂2丁目南店 (551m) / 【デパート】近鉄百貨店 東大阪店 (623m) / 【総合病院】医療法人住本会住本医院 (1,216m) / コンビニ (551m) / スーパー (427m) / 総合病院 (1,216m) | ||||
| 内装代 | - | 償却 | 0円 | 保険 | 損保要 |
| 更新料 | - | 水道料金等預かり金 | - | 特記事項 | - |
| 飲用水 | 公営 | ガス | 都市 | 排水 | 公共下水 |
| 給湯方式 | - | ||||
その他の費用
| 他 | 初回:保証人有は総賃料の50%保証人無は総賃料の100%更新:10,000円/年 |
|---|
この物件のお問い合わせ番号 0001-F000115973-0011
類似物件一覧
-
6.5万円
-
80,000円
-
6.3万円
-
-
1K
大阪府大阪市東成区東今里2丁目 -
7.7万円
-
-
1DK
大阪府大阪市東成区深江南3丁目 -
6.2万円
-
-
1K
大阪府大阪市東成区東今里2丁目 -
7.8万円
-
78,000円
1K
大阪府大阪市東成区東中本2丁目 -
9.3万円
-
1.0ヶ月
1LDK
大阪府大阪市東成区東今里3丁目 -
6.3万円
-
73,100円
1K
大阪府大阪市東成区中本5丁目 -
5.8万円
-
2.0ヶ月
1K
大阪府大阪市東成区神路4丁目 -
7.2万円
-
72,000円
1K
大阪府大阪市東成区東今里2丁目 -
6.8万円
-
-
1K
大阪府大阪市東成区中本2丁目 -
6.7万円
-
-
1K
大阪府大阪市東成区中本5丁目 -
7.9万円
-
-
1DK
大阪府大阪市東成区深江南3丁目
店舗情報
お電話での物件問い合わせは無料通話で!(直営店のみ)
0001-F000115973-0011
- FC西中島南方店
- 御堂筋線 西中島南方駅(徒歩1分)
- Tel: 06-6390-3211
- 店舗詳細情報
このお部屋にお問い合わせ
あわせて店舗への来店を希望のお客様は、上の希望店舗の来店予約フォームをご利用ください(直営店舗のみ)
Sorry,Japanese & English only. 日本語・英語のみ対応しております。ご了承ください。
- ※取扱形態は媒介(先物)です。 / お部屋の情報は随時更新です / 各種情報と現況に差異がある場合は、現況優先となります。 / 保証会社の審査があります。 / 契約一時金は、契約時に借主より貸主に支払われ返還されない金銭です。

この物件のかんたんお問合せフォーム
お電話でお問合せ
外観・間取り図




















大阪府大阪市東成区東中本1丁目