カナード西本町 物件詳細情報
| 沿線・駅 所在地 |
賃料 共益費(管理費) |
敷金 礼金 |
間取り 専有面積 |
種別 建築年月日 |
|
|---|---|---|---|---|---|
|
大阪メトロ中央線 阿波座駅(徒歩7分)
大阪府大阪市西区西本町2丁目 |
115,000円 25,000円 |
115,000円 110,000円 |
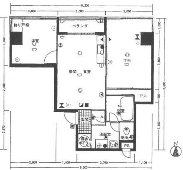
2LDK 52.80m2 |
分譲賃貸 1979年6月 |
|
この物件のお問い合わせ番号 0001-F000113903-0001

- 【公園】靱公園

- 【スーパー】ライフ Miniel西本町店

- 【コンビニエンスストア】ファミリーマート 西本町二丁目店

- 【コンビニエンスストア】セブンイレブン 大阪西本町2丁目店

- 【ホームセンター】ホームセンターコーナン西本町店

- 【郵便局】大阪江戸堀郵便局
設備
| 部屋設備 | バストイレ別 / 角部屋 / システムキッチン |
|---|---|
| 建物設備 |
物件詳細
| 交通機関 | ・大阪メトロ中央線 阿波座駅(徒歩7分) ・大阪メトロ四つ橋線 本町駅(徒歩8分) | ||||
|---|---|---|---|---|---|
| 構造 | SRC造 | 方位 | 北 | 階数/総階数 | 6階/11階建て |
| 総戸数 | - | 駐車場 | - | 入居日 | 即入居可 |
| 環境 | 【公園】靱公園 (204m) / 【スーパー】ライフ Miniel西本町店 (163m) / 【コンビニエンスストア】ファミリーマート 西本町二丁目店 (299m) / 【コンビニエンスストア】セブンイレブン 大阪西本町2丁目店 (150m) / 【ホームセンター】ホームセンターコーナン西本町店 (241m) / 【郵便局】大阪江戸堀郵便局 (517m) / コンビニ (299m) / スーパー (163m) | ||||
| 内装代 | - | 償却 | 0円 | 保険 | 損保要 |
| 更新料 | - | 水道料金等預かり金 | - | 特記事項 | - |
| 飲用水 | - | ガス | - | 排水 | その他 |
| 給湯方式 | - | ||||
その他の費用
| 他 | 初回賃貸保証料:月額総賃料の50%更新料:12,000円/年 |
|---|
この物件のお問い合わせ番号 0001-F000113903-0001
類似物件一覧
-
14.0万円
-
1.0ヶ月
-
13.8万円
-
1.0ヶ月
2LDK
大阪府大阪市西区九条3丁目 -
14.1万円
-
1.0ヶ月
2LDK
大阪府大阪市西区本田3丁目 -
13.5万円
-
2.0ヶ月
2DK
大阪府大阪市西区南堀江3丁目 -
13.6万円
-
2.0ヶ月
2LDK
大阪府大阪市西区立売堀5丁目 -
14.2万円
-
450,000円
2LDK
大阪府大阪市西区九条南2丁目 -
11.5万円
115,000円
110,000円
2LDK
大阪府大阪市西区西本町2丁目 -
14.0万円
-
1.0ヶ月
2LDK
大阪府大阪市西区九条3丁目 -
13.6万円
136,000円
1.0ヶ月
2DK
大阪府大阪市西区本田1丁目 -
13.8万円
-
1.0ヶ月
2LDK
大阪府大阪市西区九条3丁目 -
14.4万円
-
300,000円
2LDK
大阪府大阪市西区川口3丁目 -
14.0万円
-
1.0ヶ月
2LDK
大阪府大阪市西区九条3丁目
店舗情報
お電話での物件問い合わせは無料通話で!(直営店のみ)
0001-F000113903-0001
- FC天満橋店
- 谷町線 天満橋駅(徒歩1分)
- Tel: 06-6920-4848
- 店舗詳細情報
このお部屋にお問い合わせ
あわせて店舗への来店を希望のお客様は、上の希望店舗の来店予約フォームをご利用ください(直営店舗のみ)
Sorry,Japanese & English only. 日本語・英語のみ対応しております。ご了承ください。
- ※取扱形態は媒介(先物)です。 / お部屋の情報は随時更新です / 各種情報と現況に差異がある場合は、現況優先となります。 / 保証会社の審査があります。 / 契約一時金は、契約時に借主より貸主に支払われ返還されない金銭です。

この物件のかんたんお問合せフォーム
お電話でお問合せ
外観・間取り図


















大阪府大阪市西区九条3丁目