大阪府大阪市中央区東高麗橋 1K 26.29m2 物件詳細情報
| 沿線・駅 所在地 |
賃料 共益費(管理費) |
敷金 礼金 |
間取り 専有面積 |
種別 建築年月日 |
|
|---|---|---|---|---|---|
|
大阪メトロ堺筋線 北浜駅(徒歩7分)
大阪府大阪市中央区東高麗橋 |
101,500円 10,000円 |
- 111,500円 |
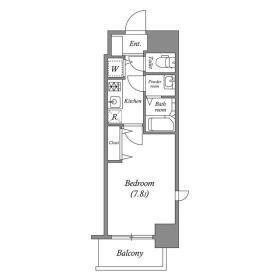
1K 26.29m2 |
マンション 2020年3月 |
|
この物件のお問い合わせ番号 0001-F000107008-0027
解約予告1ヶ月前(月割) 法人契約時:礼金共込1ヶ月要 1年未満の解約で短期違約金1ヶ月(共込)有礼金0円時

- 【スーパー】ライフ 天神橋店

- 【公園】東横堀緑道

- 【市役所・区役所】大阪市中央区役所

- 【郵便局】大阪東郵便局

- 【総合病院】大手前病院

- 【スーパー】FRESCO(フレスコ) 北浜プラザ店

- 【公園】南天満公園
設備
| 部屋設備 | フローリング / バルコニー / シャワー / 浴室乾燥機 / 洗髪洗面化粧台 / 室内洗濯機置場 / バストイレ別 / エアコン / ガスコンロ(コンロ(2口)) / 下駄箱 / TV付モニターホン / シャワー付トイレ / クロゼット / 洗面所独立 / システムキッチン |
|---|---|
| 建物設備 | エレベータ / オートロック / 駐輪場 / 宅配ボックス / ネット利用料無料 / ネット環境(光ファイバ対応) / BSアンテナ / CSアンテナ / バイク置き場 / 防犯カメラ |
物件詳細
| 交通機関 | ・大阪メトロ堺筋線 北浜駅(徒歩7分) ・京阪電鉄本線 天満橋駅(徒歩9分) | ||||
|---|---|---|---|---|---|
| 構造 | RC造 | 方位 | 南 | 階数/総階数 | 10階/15階建て |
| 総戸数 | 309戸 | 駐車場 | 27,500円 | 入居日 | 2026年5月中旬 |
| 環境 | 【スーパー】ライフ 天神橋店 (105m) / 【公園】東横堀緑道 (419m) / 【市役所・区役所】大阪市中央区役所 (990m) / 【郵便局】大阪東郵便局 (636m) / 【総合病院】大手前病院 (986m) / 【スーパー】FRESCO(フレスコ) 北浜プラザ店 (546m) / 【公園】南天満公園 (752m) / スーパー (105m) / 総合病院 (986m) | ||||
| 内装代 | - | 償却 | 0円 | 保険 | 損保要 |
| 更新料 | - | 水道料金等預かり金 | - | 特記事項 | - |
| 飲用水 | 公営 | ガス | 都市 | 排水 | 公共下水 |
| 給湯方式 | - | ||||
その他の費用
| 一時 | 退去時RC代:38,500円/カギ代:22,000円 |
|---|---|
| 他 | 初回保証料:0円月次保証料:月額総賃料の2.5%更新料:20000円/年 |
この物件のお問い合わせ番号 0001-F000107008-0027
類似物件一覧
-
9.8万円
-
-
-
7.4万円
-
-
1K
大阪府大阪市中央区日本橋2丁目 -
11.1万円
-
-
1DK
大阪府大阪市中央区安土町1丁目 -
8.5万円
-
-
1K
大阪府大阪市中央区農人橋1丁目 -
8.9万円
-
120,000円
1K
大阪府大阪市中央区博労町1丁目 -
8.0万円
-
-
1DK
大阪府大阪市中央区谷町6丁目 -
7.9万円
79,000円
-
1K
大阪府大阪市中央区瓦町2丁目 -
11.2万円
-
1.0ヶ月
1R
大阪府大阪市中央区安堂寺町1丁目 -
7.5万円
-
100,000円
1K
大阪府大阪市中央区玉造2丁目 -
8.5万円
-
1.0ヶ月
1K
大阪府大阪市中央区平野町4丁目 -
11.5万円
-
1.5ヶ月
1DK
大阪府大阪市中央区農人橋1丁目 -
9.4万円
-
1.0ヶ月
1K
大阪府大阪市中央区平野町1丁目
店舗情報
お電話での物件問い合わせは無料通話で!(直営店のみ)
0001-F000107008-0027
- FC西中島南方店
- 御堂筋線 西中島南方駅(徒歩1分)
- Tel: 06-6390-3211
- 店舗詳細情報
このお部屋にお問い合わせ
あわせて店舗への来店を希望のお客様は、上の希望店舗の来店予約フォームをご利用ください(直営店舗のみ)
Sorry,Japanese & English only. 日本語・英語のみ対応しております。ご了承ください。
- ※取扱形態は媒介(先物)です。 / お部屋の情報は随時更新です / 各種情報と現況に差異がある場合は、現況優先となります。 / 保証会社の審査があります。 / 契約一時金は、契約時に借主より貸主に支払われ返還されない金銭です。

この物件のかんたんお問合せフォーム
お電話でお問合せ
外観・間取り図


















大阪府大阪市中央区久太郎町1丁目