大阪府大阪市西淀川区千舟2丁目 1K 21.37m2 物件詳細情報
| 沿線・駅 所在地 |
賃料 共益費(管理費) |
敷金 礼金 |
間取り 専有面積 |
種別 建築年月日 |
|
|---|---|---|---|---|---|
|
JR東西線 御幣島駅(徒歩6分)
大阪府大阪市西淀川区千舟2丁目 |
53,000円 5,000円 |
- - |
1K 21.37m2 |
アパート 2018年5月 |
|
この物件のお問い合わせ番号 0001-F000105015-0003
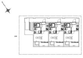
外観・間取り図
情報登録日:2026/05/16 情報更新日:2026/05/17 次回更新予定日:2026/05/24
月額(ルムサポ(月) 2700円 町内会費(月) 220円)
設備
| 部屋設備 | TV付モニターホン / 下駄箱 / ガスコンロ(コンロ(2口)) / エアコン / フローリング / バルコニー / シャワー / 浴室乾燥機 / 洗髪洗面化粧台 / 追焚き / バストイレ別 / 角部屋 / シャワー付トイレ / クロゼット / 洗面所独立 / システムキッチン |
|---|---|
| 建物設備 | 駐輪場 / ネット利用料無料 / ネット環境(光ファイバ対応) / デザイナーズマンション / CATV |
物件詳細
| 交通機関 | ・JR東西線 御幣島駅(徒歩6分) ・阪神電鉄本線 姫島駅(徒歩14分) | ||||
|---|---|---|---|---|---|
| 構造 | 木造 | 方位 | 南西 | 階数/総階数 | 2階/3階建て |
| 総戸数 | 9戸 | 駐車場 | - | 入居日 | 2026年5月下旬 |
| 環境 | |||||
| 内装代 | - | 償却 | 0円 | 保険 | 損保要 |
| 更新料 | - | 水道料金等預かり金 | - | 特記事項 | - |
| 飲用水 | 公営 | ガス | プロパン | 排水 | 公共下水 |
| 給湯方式 | - | ||||
その他の費用
| 一時 | 入居者アプリ設定費:22,000円/退去時ハウスクリーニング:55,000円 |
|---|---|
| 他 | 初回契約時:100%、【大阪】総賃料の100%(支払手数料2%) |
この物件のお問い合わせ番号 0001-F000105015-0003
類似物件一覧
-
6.6万円
-
1.0ヶ月
-
6.7万円
-
1.0ヶ月
1K
大阪府大阪市西淀川区御幣島3丁目 -
6.7万円
-
75,200円
1K
大阪府大阪市西淀川区千舟1丁目 -
6.3万円
-
1.0ヶ月
1K
大阪府大阪市西淀川区御幣島2丁目 -
6.5万円
-
1.0ヶ月
1K
大阪府大阪市西淀川区御幣島3丁目 -
5.8万円
-
1.0ヶ月
1R
大阪府大阪市西淀川区竹島4丁目 -
4.8万円
-
1.0ヶ月
1DK
大阪府大阪市西淀川区出来島1丁目 -
6.7万円
-
74,700円
1K
大阪府大阪市西淀川区千舟1丁目 -
6.3万円
-
1.0ヶ月
1K
大阪府大阪市西淀川区御幣島3丁目 -
5.5万円
-
54,520円
1K
大阪府大阪市西淀川区大和田4丁目 -
4.7万円
-
-
1K
大阪府大阪市西淀川区歌島1丁目 -
6.3万円
-
-
1K
大阪府大阪市西淀川区柏里3丁目
店舗情報
お電話での物件問い合わせは無料通話で!(直営店のみ)
0001-F000105015-0003
- FC東三国店
- 御堂筋線 東三国駅(徒歩1分)
- Tel: 06-6399-3251
- 店舗詳細情報
このお部屋にお問い合わせ
あわせて店舗への来店を希望のお客様は、上の希望店舗の来店予約フォームをご利用ください(直営店舗のみ)
Sorry,Japanese & English only. 日本語・英語のみ対応しております。ご了承ください。
- ※取扱形態は媒介(先物)です。 / お部屋の情報は随時更新です / 各種情報と現況に差異がある場合は、現況優先となります。 / 保証会社の審査があります。 / 契約一時金は、契約時に借主より貸主に支払われ返還されない金銭です。

この物件のかんたんお問合せフォーム
お電話でお問合せ



























大阪府大阪市西淀川区姫里2丁目