Alivis福島海老江(旧:フォーリアライズ福島ルノン) 物件詳細情報
| 沿線・駅 所在地 |
賃料 共益費(管理費) |
敷金 礼金 |
間取り 専有面積 |
種別 建築年月日 |
|
|---|---|---|---|---|---|
|
JR東西線 海老江駅(徒歩8分)
大阪府大阪市福島区海老江6丁目 |
76,000円 10,000円 |
- 76,000円 |
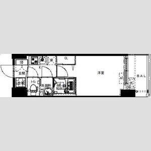
1K 21.38m2 |
マンション 2025年6月 |
|
この物件のお問い合わせ番号 0001-F000103608-0049
退去時費用清掃代1K:3.3万円(税込)、鍵交換代2.75万円(税込)、AC清掃代1.65万円(税込)/台 違約金1年未満の解約は総賃料1ヶ月 ペット礼金1ヶ月必要 法人契約保証会社未加入の場合は敷金・礼金1ヶ月分必要 更新料あり(新賃料の1ヶ月分)

- 【スーパー】食品館アプロ 海老江FESTA店

- 【スーパー】イオンスタイル海老江

- 【スーパー】スーパーマルハチ 大開店

- 【スーパー】イオン 野田阪神店

- 【スーパー】KOHYO(コーヨー) 鷺洲店

- 【コンビニエンスストア】ファミリーマート 福島海老江店

- 【コンビニエンスストア】ファミリーマート 鷺洲五丁目店

- 【コンビニエンスストア】ファミリーマート 大開三丁目店

- 【コンビニエンスストア】セブンイレブン 野田阪神駅北店
設備
| 部屋設備 | TV付モニターホン / 下駄箱 / ガスコンロ(コンロ(2口)) / エアコン / フローリング / バルコニー / シャワー / 浴室乾燥機 / 洗髪洗面化粧台 / 室内洗濯機置場 / バストイレ別 / 保証人不要 / シャワー付トイレ / クロゼット / 洗面所独立 / システムキッチン |
|---|---|
| 建物設備 | エレベータ / オートロック / 駐輪場 / 宅配ボックス / ペット可 / バイク置き場 / ネット利用料無料 / 防犯カメラ |
物件詳細
| 交通機関 | ・JR東西線 海老江駅(徒歩8分) ・阪神電鉄本線 淀川駅(徒歩10分) | ||||
|---|---|---|---|---|---|
| 構造 | RC造 | 方位 | 南東 | 階数/総階数 | 12階/12階建て |
| 総戸数 | - | 駐車場 | 24,200円 | 入居日 | 即入居可 |
| 環境 | 【スーパー】食品館アプロ 海老江FESTA店 (505m) / 【スーパー】イオンスタイル海老江 (599m) / 【スーパー】スーパーマルハチ 大開店 (1,028m) / 【スーパー】イオン 野田阪神店 (835m) / 【スーパー】KOHYO(コーヨー) 鷺洲店 (1,077m) / 【コンビニエンスストア】ファミリーマート 福島海老江店 (709m) / 【コンビニエンスストア】ファミリーマート 鷺洲五丁目店 (842m) / 【コンビニエンスストア】ファミリーマート 大開三丁目店 (752m) / 【コンビニエンスストア】セブンイレブン 野田阪神駅北店 (647m) / コンビニ (709m) / スーパー (505m) | ||||
| 内装代 | - | 償却 | 0円 | 保険 | 損保要 |
| 更新料 | 76,000円 | 水道料金等預かり金 | - | 特記事項 | - |
| 飲用水 | 公営 | ガス | 都市 | 排水 | 公共下水 |
| 給湯方式 | - | ||||
その他の費用
| 他 | 初回保証料30%・更新料1万円/年、口振手数料330円(税込) |
|---|
この物件のお問い合わせ番号 0001-F000103608-0049
類似物件一覧
-
7.0万円
-
1.0ヶ月
-
8.0万円
-
-
1DK
大阪府大阪市福島区海老江8丁目 -
7.8万円
-
-
1DK
大阪府大阪市福島区海老江8丁目 -
7.0万円
-
-
1K
大阪府大阪市福島区吉野5丁目 -
6.2万円
-
123,000円
1K
大阪府大阪市福島区海老江2丁目 -
7.9万円
-
-
1DK
大阪府大阪市福島区海老江8丁目 -
7.7万円
-
76,500円
1K
大阪府大阪市福島区吉野5丁目 -
7.8万円
-
78,000円
1DK
大阪府大阪市福島区玉川2丁目 -
7.9万円
-
-
1DK
大阪府大阪市福島区海老江8丁目 -
7.0万円
-
1.0ヶ月
1K
大阪府大阪市福島区鷺洲4丁目 -
7.3万円
-
1.0ヶ月
1K
大阪府大阪市福島区海老江6丁目 -
7.6万円
-
1.0ヶ月
1K
大阪府大阪市福島区海老江6丁目
店舗情報
お電話での物件問い合わせは無料通話で!(直営店のみ)
0001-F000103608-0049
- FC天六店
- 谷町線 天神橋筋六丁目駅(徒歩1分)
- Tel: 06-6882-4008
- 店舗詳細情報
このお部屋にお問い合わせ
あわせて店舗への来店を希望のお客様は、上の希望店舗の来店予約フォームをご利用ください(直営店舗のみ)
Sorry,Japanese & English only. 日本語・英語のみ対応しております。ご了承ください。
- ※取扱形態は媒介(先物)です。 / お部屋の情報は随時更新です / 各種情報と現況に差異がある場合は、現況優先となります。 / 保証会社の審査があります。 / 契約一時金は、契約時に借主より貸主に支払われ返還されない金銭です。

この物件のかんたんお問合せフォーム
お電話でお問合せ
外観・間取り図























大阪府大阪市福島区鷺洲4丁目