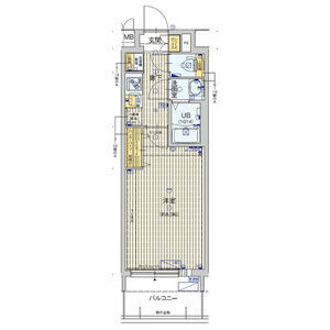
大阪府大阪市北区中崎1丁目 1K 24.21m2 物件詳細情報
| 沿線・駅 所在地 |
賃料 共益費(管理費) |
敷金 礼金 |
間取り 専有面積 |
種別 建築年月日 |
|
|---|---|---|---|---|---|
|
大阪メトロ谷町線 中崎町駅(徒歩3分)
大阪府大阪市北区中崎1丁目 |
75,000円 11,000円 |
- 75,000円 |
1K 24.21m2 |
マンション 2021年10月 |
|
この物件のお問い合わせ番号 0001-F000088887-0005
ペット飼育時、賃料2000円UP。短期解約違約金あり(半年以内総賃料2ヶ月・1年以内総賃料1ヶ月) 退去時ハウスクリーニング33000円。

- 【公園】扇町公園

- 【総合病院】北野病院

- 【市役所・区役所】大阪市北区役所
設備
| 部屋設備 | フローリング / バルコニー / シャワー / 浴室乾燥機 / 室内洗濯機置場 / バストイレ別 / エアコン / ガスコンロ(コンロ(2口)) / 下駄箱 / TV付モニターホン / 角部屋 / シャワー付トイレ / クロゼット / 洗面所独立 / システムキッチン |
|---|---|
| 建物設備 | エレベータ / オートロック / 駐輪場 / 宅配ボックス / ペット可 / BSアンテナ / CSアンテナ / バイク置き場 / ネット利用料無料 / 防犯カメラ |
物件詳細
| 交通機関 | ・大阪メトロ谷町線 中崎町駅(徒歩3分) ・大阪メトロ堺筋線 扇町駅(徒歩9分) | ||||
|---|---|---|---|---|---|
| 構造 | RC造 | 方位 | 南 | 階数/総階数 | 9階/14階建て |
| 総戸数 | 65戸 | 駐車場 | - | 入居日 | 2026年4月下旬 |
| 環境 | 【公園】扇町公園 (644m) / 【総合病院】北野病院 (191m) / 【市役所・区役所】大阪市北区役所 (463m) / 総合病院 (191m) | ||||
| 内装代 | - | 償却 | 0円 | 保険 | 損保要 |
| 更新料 | - | 水道料金等預かり金 | - | 特記事項 | - |
| 飲用水 | 公営 | ガス | 都市 | 排水 | 公共下水 |
| 給湯方式 | - | ||||
その他の費用
| 一時 | エアコン洗浄 退去時:16,500円 |
|---|---|
| 他 | 初回保証料:55%(最低15,000円)更新料:15,000円/1年月次保証料:総賃料の1.5%(最低300円/月) |
この物件のお問い合わせ番号 0001-F000088887-0005
類似物件一覧
-
7.5万円
-
-
-
8.1万円
-
-
1K
大阪府大阪市北区豊崎6丁目 -
6.6万円
-
70,000円
1R
大阪府大阪市北区中津3丁目 -
9.7万円
-
-
1K
大阪府大阪市北区兎我野町 -
7.2万円
-
1.0ヶ月
1R
大阪府大阪市北区東天満2丁目 -
8.0万円
-
-
1K
大阪府大阪市北区西天満3丁目 -
7.1万円
33,000円
79,500円
1K
大阪府大阪市北区大淀中1丁目 -
7.9万円
-
-
1R
大阪府大阪市北区中津7丁目 -
5.5万円
30,000円
30,000円
1R
大阪府大阪市北区天満2丁目 -
7.4万円
50,000円
100,000円
1K
大阪府大阪市北区大淀北1丁目 -
6.8万円
-
77,000円
1K
大阪府大阪市北区天満4丁目 -
8.7万円
-
-
1K
大阪府大阪市北区同心1丁目
店舗情報
お電話での物件問い合わせは無料通話で!(直営店のみ)
0001-F000088887-0005
- FC本町店
- 御堂筋線 本町駅(徒歩1分)
- Tel: 06-6253-4455
- 店舗詳細情報
このお部屋にお問い合わせ
あわせて店舗への来店を希望のお客様は、上の希望店舗の来店予約フォームをご利用ください(直営店舗のみ)
Sorry,Japanese & English only. 日本語・英語のみ対応しております。ご了承ください。
- ※取扱形態は媒介(先物)です。 / お部屋の情報は随時更新です / 各種情報と現況に差異がある場合は、現況優先となります。 / 保証会社の審査があります。 / 契約一時金は、契約時に借主より貸主に支払われ返還されない金銭です。

この物件のかんたんお問合せフォーム
お電話でお問合せ
外観・間取り図
















大阪府大阪市北区本庄西3丁目