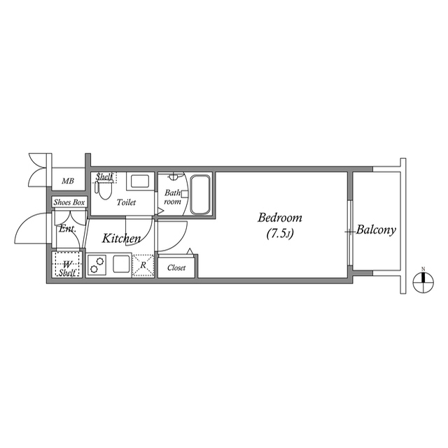
大阪府吹田市南吹田5丁目 1K 22.91m2 物件詳細情報
| 沿線・駅 所在地 |
賃料 共益費(管理費) |
敷金 礼金 |
間取り 専有面積 |
種別 建築年月日 |
|
|---|---|---|---|---|---|
|
おおさか東線 南吹田駅(徒歩11分)
大阪府吹田市南吹田5丁目 |
65,300円 4,300円 |
- 130,600円 |
1K 22.91m2 |
マンション 2024年10月 |
|
この物件のお問い合わせ番号 0001-F000088813-0009
月額(スマサポコンシェル 1320円 ビットキー代 1100円)

- 【スーパー】フードショップ青葉 江坂店

- 【公園】南吹田公園

- 【酒屋】酒のやまや 南吹田店

- 【コンビニエンスストア】セブンイレブン 南吹田3丁目店

- 【スーパー】業務スーパー TAKENOKO 江坂店

- 【コンビニエンスストア】ミニストップ 吹田南金田店

- 【郵便局】吹田郵便局

- 【警察】吹田警察署

- 【ディスカウントショップ】ダイソー吹田泉町店

- 【ディスカウントショップ】ジャパン 吹田穂波店
設備
| 部屋設備 | TV付モニターホン / 下駄箱 / エアコン / フローリング / バルコニー / シャワー / 浴室乾燥機 / 室内洗濯機置場 / バストイレ別 / コンロ(コンロ(2口)) / クロゼット / 洗面所独立 / システムキッチン |
|---|---|
| 建物設備 | エレベータ / オートロック / 駐輪場 / 宅配ボックス / ペット可 / BSアンテナ / CSアンテナ / CATV / バイク置き場 / 防犯カメラ |
物件詳細
| 交通機関 | ・おおさか東線 南吹田駅(徒歩11分) ・大阪メトロ御堂筋線 江坂駅(徒歩15分) | ||||
|---|---|---|---|---|---|
| 構造 | RC造 | 方位 | 東 | 階数/総階数 | 6階/10階建て |
| 総戸数 | 63戸 | 駐車場 | - | 入居日 | 2026年3月下旬 |
| 環境 | 【スーパー】フードショップ青葉 江坂店 (150m) / 【公園】南吹田公園 (450m) / 【酒屋】酒のやまや 南吹田店 (105m) / 【コンビニエンスストア】セブンイレブン 南吹田3丁目店 (222m) / 【スーパー】業務スーパー TAKENOKO 江坂店 (919m) / 【コンビニエンスストア】ミニストップ 吹田南金田店 (340m) / 【郵便局】吹田郵便局 (1,015m) / 【警察】吹田警察署 (635m) / 【ディスカウントショップ】ダイソー吹田泉町店 (1,099m) / 【ディスカウントショップ】ジャパン 吹田穂波店 (575m) / コンビニ (222m) / スーパー (150m) | ||||
| 内装代 | - | 償却 | 0円 | 保険 | 損保要 |
| 更新料 | - | 水道料金等預かり金 | - | 特記事項 | - |
| 飲用水 | 公営 | ガス | 都市 | 排水 | 公共下水 |
| 給湯方式 | - | ||||
その他の費用
| 一時 | スマサポコンシェル入会金:5,500円/カギ費用:27,500円/ハウスクリーニング費用:33,000円 |
|---|---|
| 他 | 株式会社ルームバンクインシュア※大手法人相談可 |
この物件のお問い合わせ番号 0001-F000088813-0009
類似物件一覧
-
5.6万円
-
-
-
8.1万円
-
-
1K
大阪府吹田市江の木町 -
7.0万円
-
70,000円
1K
大阪府吹田市垂水町3丁目 -
4.9万円
-
-
1K
大阪府吹田市青葉丘南 -
7.2万円
-
1.0ヶ月
1K
大阪府吹田市垂水町1丁目 -
4.6万円
-
50,000円
1K
大阪府吹田市垂水町2丁目 -
6.3万円
-
1.0ヶ月
1R
大阪府吹田市豊津町 -
6.2万円
67,000円
134,000円
1K
大阪府吹田市千里山西1丁目 -
7.4万円
-
-
1K
大阪府吹田市垂水町3丁目 -
5.0万円
-
100,000円
1K
大阪府吹田市千里山東1丁目 -
4.8万円
-
1.0ヶ月
1K
大阪府吹田市上山手町 -
5.3万円
-
3.0ヶ月
1K
大阪府吹田市江坂町1丁目
店舗情報
お電話での物件問い合わせは無料通話で!(直営店のみ)
0001-F000088813-0009
- FC江坂店
- 御堂筋線 江坂駅(徒歩1分)
- Tel: 06-6386-0321
- 店舗詳細情報
このお部屋にお問い合わせ
あわせて店舗への来店を希望のお客様は、上の希望店舗の来店予約フォームをご利用ください(直営店舗のみ)
Sorry,Japanese & English only. 日本語・英語のみ対応しております。ご了承ください。
- ※取扱形態は媒介(先物)です。 / お部屋の情報は随時更新です / 各種情報と現況に差異がある場合は、現況優先となります。 / 保証会社の審査があります。 / 契約一時金は、契約時に借主より貸主に支払われ返還されない金銭です。

この物件のかんたんお問合せフォーム
お電話でお問合せ
外観・間取り図

























大阪府吹田市古江台5丁目