ライオンズマンション新大阪第6 物件詳細情報
| 沿線・駅 所在地 |
賃料 共益費(管理費) |
敷金 礼金 |
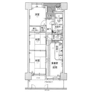
間取り 専有面積 |
種別 建築年月日 |
|
|---|---|---|---|---|---|
|
大阪メトロ御堂筋線 新大阪駅(徒歩14分)
大阪府大阪市淀川区木川東4丁目 |
120,000円 9,900円 |
120,000円 120,000円 |
3LDK 56.16m2 |
分譲賃貸 1988年10月 |
|
この物件のお問い合わせ番号 0001-F000082692-0001
外観・間取り図
情報登録日:2026/03/25 情報更新日:2026/03/26 次回更新予定日:2026/04/02
設備
| 部屋設備 | 下駄箱 / バルコニー / バストイレ別 / 保証人不要 / システムキッチン |
|---|---|
| 建物設備 | 有線放送 |
物件詳細
| 交通機関 | ・大阪メトロ御堂筋線 新大阪駅(徒歩14分) ・大阪メトロ御堂筋線 西中島南方駅(徒歩12分) | ||||
|---|---|---|---|---|---|
| 構造 | SRC造 | 方位 | 南 | 階数/総階数 | 11階/15階建て |
| 総戸数 | 262戸 | 駐車場 | - | 入居日 | 相談 |
| 環境 | |||||
| 内装代 | - | 償却 | 0円 | 保険 | 損保要 |
| 更新料 | - | 水道料金等預かり金 | - | 特記事項 | - |
| 飲用水 | 公営 | ガス | 都市 | 排水 | 公共下水 |
| 給湯方式 | - | ||||
その他の費用
| 一時 | 初期費用:エステム安心クラブ入会金、契約事務手数料:16,500円/ランニング費用:エステム安心クラブ(月額)、更新事:50,490円/その他費用:エアコンクリーニング代(一台につき)(:13,200円 |
|---|---|
| 他 | エステム保証サービス初回保証料:総賃料の50%月額更新料:総賃料の1.5%初回保証料は決済金預かりです |
この物件のお問い合わせ番号 0001-F000082692-0001
類似物件一覧
-
9.5万円
-
200,000円
-
12.0万円
120,000円
1.0ヶ月
3LDK
大阪府大阪市淀川区木川東4丁目 -
12.1万円
120,500円
1.0ヶ月
3LDK
大阪府大阪市淀川区木川東1丁目 -
12.0万円
120,000円
1.0ヶ月
3LDK
大阪府大阪市淀川区木川東4丁目 -
12.5万円
50,000円
2.0ヶ月
3LDK
大阪府大阪市淀川区西宮原3丁目 -
12.0万円
120,000円
1.0ヶ月
3LDK
大阪府大阪市淀川区木川東4丁目 -
12.1万円
120,500円
1.0ヶ月
3LDK
大阪府大阪市淀川区木川東1丁目 -
12.5万円
50,000円
2.0ヶ月
3LDK
大阪府大阪市淀川区西宮原3丁目 -
13.5万円
-
200,000円
3LDK
大阪府大阪市淀川区野中南2丁目 -
9.0万円
-
1.0ヶ月
3LDK
大阪府大阪市淀川区三津屋南2丁目 -
12.5万円
50,000円
2.0ヶ月
3LDK
大阪府大阪市淀川区西宮原3丁目 -
9.0万円
-
1.0ヶ月
3LDK
大阪府大阪市淀川区三津屋南2丁目
店舗情報
お電話での物件問い合わせは無料通話で!(直営店のみ)
0001-F000082692-0001
- FC江坂店
- 御堂筋線 江坂駅(徒歩1分)
- Tel: 06-6386-0321
- 店舗詳細情報
このお部屋にお問い合わせ
あわせて店舗への来店を希望のお客様は、上の希望店舗の来店予約フォームをご利用ください(直営店舗のみ)
Sorry,Japanese & English only. 日本語・英語のみ対応しております。ご了承ください。
- ※取扱形態は媒介(先物)です。 / お部屋の情報は随時更新です / 各種情報と現況に差異がある場合は、現況優先となります。 / 保証会社の審査があります。 / 契約一時金は、契約時に借主より貸主に支払われ返還されない金銭です。

この物件のかんたんお問合せフォーム
お電話でお問合せ





大阪府大阪市淀川区三津屋北2丁目