S-RESIDENCE阿波座bouncy 物件詳細情報
| 沿線・駅 所在地 |
賃料 共益費(管理費) |
敷金 礼金 |
間取り 専有面積 |
種別 建築年月日 |
|
|---|---|---|---|---|---|
|
大阪メトロ中央線 阿波座駅(徒歩3分)
大阪府大阪市西区江之子島1丁目 |
89,000円 10,000円 |
- - |
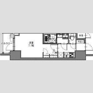
1K 23.64m2 |
マンション 2025年2月 |
|
この物件のお問い合わせ番号 0001-F000081580-0082
退去時費用清掃代3.3万円(税込)、鍵交換代2.75万円(税込)、AC清掃代1.65万円(税込) 違約金1年未満の解約は総賃料1ヶ月分要

- 【スーパー】ライフ ビオラル靭店

- 【スーパー】ライフ阿波座駅前店

- 【スーパー】mandai(万代) フレスポ阿波座店

- 【コンビニエンスストア】ローソン 西本町三丁目店

- 【コンビニエンスストア】ファミリーマート 西本町二丁目店
設備
| 部屋設備 | TV付モニターホン / 下駄箱 / ガスコンロ(コンロ(2口)) / エアコン / フローリング / バルコニー / シャワー / 浴室乾燥機 / 洗髪洗面化粧台 / 室内洗濯機置場 / バストイレ別 / 保証人不要 / 角部屋 / 2人入居 / シャワー付トイレ / クロゼット / 洗面所独立 / システムキッチン |
|---|---|
| 建物設備 | エレベータ / オートロック / 宅配ボックス / ペット可 / BSアンテナ / バイク置き場 / ネット利用料無料 / 防犯カメラ |
物件詳細
| 交通機関 | ・大阪メトロ中央線 阿波座駅(徒歩3分) ・大阪メトロ四つ橋線 本町駅(徒歩17分) | ||||
|---|---|---|---|---|---|
| 構造 | RC造 | 方位 | 西 | 階数/総階数 | 14階/15階建て |
| 総戸数 | 98戸 | 駐車場 | 33,000円 | 入居日 | 即入居可 |
| 環境 | 【スーパー】ライフ ビオラル靭店 (324m) / 【スーパー】ライフ阿波座駅前店 (246m) / 【スーパー】mandai(万代) フレスポ阿波座店 (544m) / 【コンビニエンスストア】ローソン 西本町三丁目店 (344m) / 【コンビニエンスストア】ファミリーマート 西本町二丁目店 (489m) / コンビニ (344m) / スーパー (324m) | ||||
| 内装代 | - | 償却 | 0円 | 保険 | 損保要 |
| 更新料 | 89,000円 | 水道料金等預かり金 | - | 特記事項 | - |
| 飲用水 | 公営 | ガス | 都市 | 排水 | 公共下水 |
| 給湯方式 | - | ||||
その他の費用
| 一時 | 火災保険料:18,000円 |
|---|---|
| 他 | 初回保証料30%、月次保証料330円、更新料1万円/年 |
この物件のお問い合わせ番号 0001-F000081580-0082
類似物件一覧
-
9.1万円
91,000円
1.0ヶ月
-
6.3万円
-
71,000円
1K
大阪府大阪市西区川口4丁目 -
8.4万円
-
100,000円
1K
大阪府大阪市西区京町堀3丁目 -
6.3万円
-
71,000円
1K
大阪府大阪市西区川口4丁目 -
6.5万円
-
65,000円
1K
大阪府大阪市西区京町堀2丁目 -
7.7万円
-
100,000円
1K
大阪府大阪市西区南堀江3丁目 -
10.6万円
-
-
1R
大阪府大阪市西区江戸堀1丁目 -
8.4万円
91,000円
91,000円
1K
大阪府大阪市西区靱本町2丁目 -
8.8万円
50,000円
150,000円
1R
大阪府大阪市西区南堀江4丁目 -
6.6万円
-
131,000円
1K
大阪府大阪市西区本田1丁目 -
7.5万円
-
50,000円
1K
大阪府大阪市西区立売堀6丁目 -
7.3万円
-
-
1K
大阪府大阪市西区千代崎1丁目
店舗情報
お電話での物件問い合わせは無料通話で!(直営店のみ)
0001-F000081580-0082
- FC天六店
- 谷町線 天神橋筋六丁目駅(徒歩1分)
- Tel: 06-6882-4008
- 店舗詳細情報
このお部屋にお問い合わせ
あわせて店舗への来店を希望のお客様は、上の希望店舗の来店予約フォームをご利用ください(直営店舗のみ)
Sorry,Japanese & English only. 日本語・英語のみ対応しております。ご了承ください。
- ※取扱形態は媒介(先物)です。 / お部屋の情報は随時更新です / 各種情報と現況に差異がある場合は、現況優先となります。 / 保証会社の審査があります。 / 契約一時金は、契約時に借主より貸主に支払われ返還されない金銭です。

この物件のかんたんお問合せフォーム
お電話でお問合せ
外観・間取り図




















大阪府大阪市西区南堀江3丁目