S-RESIDENCE阿波座bouncy 物件詳細情報
| 沿線・駅 所在地 |
賃料 共益費(管理費) |
敷金 礼金 |
間取り 専有面積 |
種別 建築年月日 |
|
|---|---|---|---|---|---|
|
大阪メトロ中央線 阿波座駅(徒歩3分)
大阪府大阪市西区江之子島1丁目 |
91,000円 10,000円 |
- - |
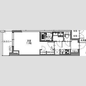
1K 23.39m2 |
マンション 2025年2月 |
|
この物件のお問い合わせ番号 0001-F000081049-0022
退去時費用AC清掃代1.65万円(税込) ペット賃料増額(犬3000円/猫10000円)敷金1ヶ月分礼金2.5万円要 違約金1年未満の解約は総賃料1ヶ月分(FR有の場合は別途規定有)法人契約敷金・礼金1ヶ月分上乗せ必要

- 【スーパー】ライフ ビオラル靭店

- 【スーパー】ライフ阿波座駅前店

- 【スーパー】mandai(万代) フレスポ阿波座店

- 【コンビニエンスストア】ローソン 西本町三丁目店

- 【コンビニエンスストア】ファミリーマート 西本町二丁目店
設備
| 部屋設備 | TV付モニターホン / 下駄箱 / ガスコンロ(コンロ(2口)) / エアコン / フローリング / バルコニー / 浴室乾燥機 / 洗髪洗面化粧台 / 室内洗濯機置場 / バストイレ別 / 保証人不要 / 2人入居 / シャワー付トイレ / クロゼット / 洗面所独立 / システムキッチン |
|---|---|
| 建物設備 | エレベータ / オートロック / 駐輪場 / 宅配ボックス / BSアンテナ / バイク置き場 / 防犯カメラ |
物件詳細
| 交通機関 | ・大阪メトロ中央線 阿波座駅(徒歩3分) ・大阪メトロ四つ橋線 本町駅(徒歩17分) | ||||
|---|---|---|---|---|---|
| 構造 | RC造 | 方位 | 西 | 階数/総階数 | 5階/15階建て |
| 総戸数 | 98戸 | 駐車場 | 無料 | 入居日 | 2026年5月下旬 |
| 環境 | 【スーパー】ライフ ビオラル靭店 (324m) / 【スーパー】ライフ阿波座駅前店 (246m) / 【スーパー】mandai(万代) フレスポ阿波座店 (544m) / 【コンビニエンスストア】ローソン 西本町三丁目店 (344m) / 【コンビニエンスストア】ファミリーマート 西本町二丁目店 (489m) / コンビニ (344m) / スーパー (324m) | ||||
| 内装代 | - | 償却 | 0円 | 保険 | 損保要 |
| 更新料 | 91,000円 | 水道料金等預かり金 | - | 特記事項 | - |
| 飲用水 | 公営 | ガス | 都市 | 排水 | 公共下水 |
| 給湯方式 | - | ||||
その他の費用
| 他 | 【K−B1(更ベーシック1)】初回保証料30%、月次保証料330円、更新料1万円/年 |
|---|
この物件のお問い合わせ番号 0001-F000081049-0022
類似物件一覧
-
8.9万円
-
-
-
11.0万円
-
-
1DK
大阪府大阪市西区新町4丁目 -
9.7万円
-
1.0ヶ月
1DK
大阪府大阪市西区京町堀1丁目 -
7.2万円
-
-
1K
大阪府大阪市西区立売堀1丁目 -
8.1万円
88,000円
88,000円
1K
大阪府大阪市西区靱本町2丁目 -
7.0万円
-
1.0ヶ月
1K
大阪府大阪市西区本田1丁目 -
8.6万円
-
1.0ヶ月
1DK
大阪府大阪市西区本田1丁目 -
8.2万円
-
-
1K
大阪府大阪市西区九条南1丁目 -
8.9万円
-
-
1K
大阪府大阪市西区新町4丁目 -
6.5万円
-
70,600円
1K
大阪府大阪市西区九条南2丁目 -
8.9万円
-
132,750円
1K
大阪府大阪市西区阿波座1丁目 -
6.7万円
-
100,500円
1K
大阪府大阪市西区九条2丁目
店舗情報
お電話での物件問い合わせは無料通話で!(直営店のみ)
0001-F000081049-0022
- FC南森町店
- 谷町線 南森町駅(徒歩1分)
- Tel: 06-6356-6161
- 店舗詳細情報
このお部屋にお問い合わせ
あわせて店舗への来店を希望のお客様は、上の希望店舗の来店予約フォームをご利用ください(直営店舗のみ)
Sorry,Japanese & English only. 日本語・英語のみ対応しております。ご了承ください。
- ※取扱形態は媒介(先物)です。 / お部屋の情報は随時更新です / 各種情報と現況に差異がある場合は、現況優先となります。 / 保証会社の審査があります。 / 契約一時金は、契約時に借主より貸主に支払われ返還されない金銭です。

この物件のかんたんお問合せフォーム
お電話でお問合せ
外観・間取り図




















大阪府大阪市西区靱本町3丁目