ガーデンハイツ江戸堀 物件詳細情報
| 沿線・駅 所在地 |
賃料 共益費(管理費) |
敷金 礼金 |
間取り 専有面積 |
種別 建築年月日 |
|
|---|---|---|---|---|---|
|
京阪電鉄中之島線 中之島駅(徒歩6分)
大阪府大阪市西区江戸堀2丁目 |
143,000円 10,000円 |
100,000円 200,000円 |
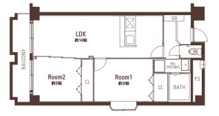
2LDK 53.51m2 |
マンション 1986年3月 |
|
この物件のお問い合わせ番号 0001-F000063582-0004

- 【スーパー】阪急オアシス 中之島店

- 【スーパー】ライフ 土佐堀店

- 【スーパー】ライフ ビオラル靭店

- 【コンビニエンスストア】セブンイレブン 大阪土佐堀ダイビル店

- 【総合病院】住友病院

- 【郵便局】大阪江戸堀郵便局
設備
| 部屋設備 | フローリング / バルコニー / シャワー / 室内洗濯機置場 / バストイレ別 / エアコン / ガスコンロ(コンロ(3口)) / 下駄箱 / TV付モニターホン / 2人入居 / シャワー付トイレ / クロゼット / 洗面所独立 / カウンターキッチン / システムキッチン |
|---|---|
| 建物設備 | エレベータ / オートロック / 駐輪場 / デザイナーズマンション / 防犯カメラ / 初期費用カード決済可 |
物件詳細
| 交通機関 | ・京阪電鉄中之島線 中之島駅(徒歩6分) ・大阪メトロ千日前線 阿波座駅(徒歩10分) | ||||
|---|---|---|---|---|---|
| 構造 | SRC造 | 方位 | 北 | 階数/総階数 | 8階/11階建て |
| 総戸数 | 44戸 | 駐車場 | 近隣 | 入居日 | 即入居可 |
| 環境 | 【スーパー】阪急オアシス 中之島店 (457m) / 【スーパー】ライフ 土佐堀店 (478m) / 【スーパー】ライフ ビオラル靭店 (550m) / 【コンビニエンスストア】セブンイレブン 大阪土佐堀ダイビル店 (374m) / 【総合病院】住友病院 (228m) / 【郵便局】大阪江戸堀郵便局 (437m) / コンビニ (374m) / スーパー (457m) / 総合病院 (228m) | ||||
| 内装代 | - | 償却 | 0円 | 保険 | 損保要 |
| 更新料 | - | 水道料金等預かり金 | - | 特記事項 | - |
| 飲用水 | 公営 | ガス | 都市 | 排水 | 公共下水 |
| 給湯方式 | - | ||||
その他の費用
| 他 | 初回:総賃料の40%月次:総賃料の1% |
|---|
この物件のお問い合わせ番号 0001-F000063582-0004
類似物件一覧
-
15.4万円
-
-
-
17.0万円
170,000円
2.0ヶ月
2LDK
大阪府大阪市西区京町堀2丁目 -
12.7万円
-
-
2DK
大阪府大阪市西区土佐堀3丁目 -
17.4万円
-
2.0ヶ月
2LDK
大阪府大阪市西区北堀江3丁目 -
12.7万円
-
-
2DK
大阪府大阪市西区土佐堀3丁目 -
16.6万円
-
-
2LDK
大阪府大阪市西区新町3丁目 -
13.3万円
-
-
2LDK
大阪府大阪市西区立売堀3丁目 -
13.3万円
-
-
2LDK
大阪府大阪市西区立売堀3丁目 -
17.0万円
170,000円
2.0ヶ月
2LDK
大阪府大阪市西区京町堀2丁目 -
15.4万円
-
1.0ヶ月
2LDK
大阪府大阪市西区西本町2丁目 -
17.4万円
-
2.0ヶ月
2LDK
大阪府大阪市西区北堀江3丁目 -
16.6万円
-
-
2LDK
大阪府大阪市西区新町3丁目
店舗情報
お電話での物件問い合わせは無料通話で!(直営店のみ)
0001-F000063582-0004
- FC天六店
- 谷町線 天神橋筋六丁目駅(徒歩1分)
- Tel: 06-6882-4008
- 店舗詳細情報
このお部屋にお問い合わせ
あわせて店舗への来店を希望のお客様は、上の希望店舗の来店予約フォームをご利用ください(直営店舗のみ)
Sorry,Japanese & English only. 日本語・英語のみ対応しております。ご了承ください。
- ※取扱形態は媒介(先物)です。 / お部屋の情報は随時更新です / 各種情報と現況に差異がある場合は、現況優先となります。 / 保証会社の審査があります。 / 契約一時金は、契約時に借主より貸主に支払われ返還されない金銭です。

この物件のかんたんお問合せフォーム
お電話でお問合せ
外観・間取り図


















大阪府大阪市西区西本町2丁目