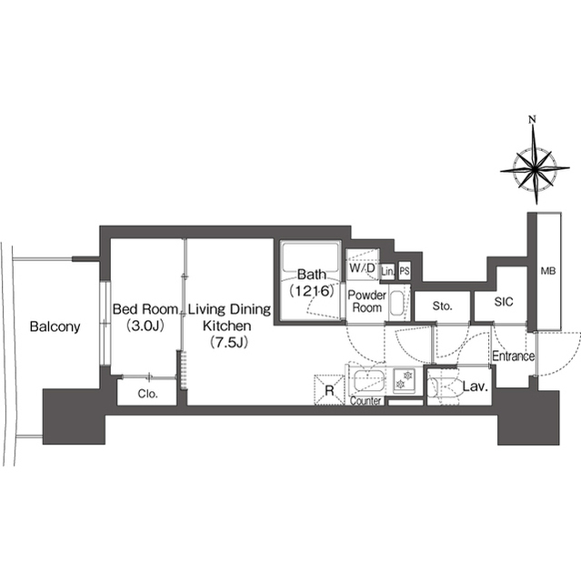
大阪府大阪市西区立売堀3丁目 1DK 29.30m2 物件詳細情報
| 沿線・駅 所在地 |
賃料 共益費(管理費) |
敷金 礼金 |
間取り 専有面積 |
種別 建築年月日 |
|
|---|---|---|---|---|---|
|
大阪メトロ中央線 阿波座駅(徒歩1分)
大阪府大阪市西区立売堀3丁目 |
122,000円 12,000円 |
- - |
1DK 29.30m2 |
マンション 2025年2月 |
|
この物件のお問い合わせ番号 0001-F000062604-0052
清掃費:27500円(退去時請求).エアコン清掃費:8250円(退去時請求) 短期解約違約金:1年以内の解約は賃料1ヶ月

- 【公園】立売堀公園

- 【スーパー】ライフ阿波座駅前店

- 【ホームセンター】ホームセンターコーナン西本町店

- 【ドラッグストア】ドラッグアカカベ 阿波座店

- 【総合病院】日本生命病院

- 【郵便局】大阪西郵便局

- 【図書館】大阪市立中央図書館

- 【警察】西警察署

- 【市役所・区役所】大阪市西区役所

- 【コンビニエンスストア】セブンイレブン 大阪立売堀3丁目店
設備
| 部屋設備 | TV付モニターホン / 下駄箱 / ガスコンロ(コンロ(2口)) / エアコン / フローリング / バルコニー / シャワー / 浴室乾燥機 / 追焚き / 室内洗濯機置場 / バストイレ別 / シャワー付トイレ / クロゼット / 洗面所独立 / システムキッチン |
|---|---|
| 建物設備 | エレベータ / オートロック / 駐輪場 / 宅配ボックス / デザイナーズマンション / BSアンテナ / CSアンテナ / バイク置き場 / ネット利用料無料 / 防犯カメラ |
物件詳細
| 交通機関 | ・大阪メトロ中央線 阿波座駅(徒歩1分) ・大阪メトロ四つ橋線 本町駅(徒歩9分) | ||||
|---|---|---|---|---|---|
| 構造 | RC造 | 方位 | 西 | 階数/総階数 | 8階/17階建て |
| 総戸数 | 130戸 | 駐車場 | - | 入居日 | 即入居可 |
| 環境 | 【公園】立売堀公園 (489m) / 【スーパー】ライフ阿波座駅前店 (390m) / 【ホームセンター】ホームセンターコーナン西本町店 (356m) / 【ドラッグストア】ドラッグアカカベ 阿波座店 (140m) / 【総合病院】日本生命病院 (690m) / 【郵便局】大阪西郵便局 (433m) / 【図書館】大阪市立中央図書館 (980m) / 【警察】西警察署 (964m) / 【市役所・区役所】大阪市西区役所 (838m) / 【コンビニエンスストア】セブンイレブン 大阪立売堀3丁目店 (37m) / コンビニ (37m) / スーパー (390m) / 総合病院 (690m) | ||||
| 内装代 | - | 償却 | 0円 | 保険 | 損保要 |
| 更新料 | 30,000円 | 水道料金等預かり金 | - | 特記事項 | - |
| 飲用水 | 公営 | ガス | 都市 | 排水 | 公共下水 |
| 給湯方式 | - | ||||
その他の費用
| 一時 | 鍵交換代:22,000円/駐輪場ステッカー:440円 |
|---|---|
| 他 | エポスカード(RP)保証料:賃料等の50%(最低2万)、月額保証料:賃料等の1%(更新料無) |
この物件のお問い合わせ番号 0001-F000062604-0052
類似物件一覧
-
10.6万円
-
-
-
11.2万円
-
-
1DK
大阪府大阪市西区新町4丁目 -
15.5万円
154,500円
-
1LDK
大阪府大阪市西区九条1丁目 -
14.5万円
145,000円
145,000円
1LDK
大阪府大阪市西区南堀江3丁目 -
13.8万円
-
-
1LDK
大阪府大阪市西区南堀江4丁目 -
9.3万円
-
-
1R
大阪府大阪市西区南堀江4丁目 -
15.7万円
-
-
1K
大阪府大阪市西区北堀江1丁目 -
10.0万円
-
-
1K
大阪府大阪市西区江戸堀1丁目 -
14.2万円
-
-
1LDK
大阪府大阪市西区本田2丁目 -
13.8万円
-
-
1LDK
大阪府大阪市西区本田3丁目 -
15.9万円
158,500円
-
1LDK
大阪府大阪市西区九条1丁目 -
12.6万円
-
1.0ヶ月
1LDK
大阪府大阪市西区九条3丁目
店舗情報
お電話での物件問い合わせは無料通話で!(直営店のみ)
0001-F000062604-0052
- FC肥後橋店
- 四つ橋線 肥後橋駅(徒歩2分)
- Tel: 06-6441-5000
- 店舗詳細情報
このお部屋にお問い合わせ
あわせて店舗への来店を希望のお客様は、上の希望店舗の来店予約フォームをご利用ください(直営店舗のみ)
Sorry,Japanese & English only. 日本語・英語のみ対応しております。ご了承ください。
- ※取扱形態は媒介(先物)です。 / お部屋の情報は随時更新です / 各種情報と現況に差異がある場合は、現況優先となります。 / 保証会社の審査があります。 / 契約一時金は、契約時に借主より貸主に支払われ返還されない金銭です。

この物件のかんたんお問合せフォーム
お電話でお問合せ
外観・間取り図




















大阪府大阪市西区本田2丁目