大阪府大阪市西区北堀江1丁目 2LDK 64.50m2 物件詳細情報
| 沿線・駅 所在地 |
賃料 共益費(管理費) |
敷金 礼金 |
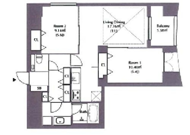
間取り 専有面積 |
種別 建築年月日 |
|
|---|---|---|---|---|---|
|
大阪メトロ長堀鶴見緑地線 西大橋駅(徒歩3分)
大阪府大阪市西区北堀江1丁目 |
266,000円 12,000円 |
- - |
2LDK 64.50m2 |
マンション 2008年4月 |
|
この物件のお問い合わせ番号 0001-F000062565-0007
短期解約違約金:1年未満総賃料2ヶ月、2年未満総賃料1ヶ月 ペット飼育可:敷金1ヶ月要(猫相談可)

- 【公園】新町北公園

- 【デパート】心斎橋PARCO(パルコ)

- 【スーパー】イオンフードスタイル四ツ橋店

- 【コンビニエンスストア】ファミリーマート 南堀江一丁目店

- 【ホームセンター】ホームセンターコーナン西本町店

- 【ドラッグストア】スギ薬局 四ツ橋店

- 【総合病院】寿楽会(社会医療法人)大野記念病院

- 【市役所・区役所】大阪市西区役所

- 【図書館】大阪市立中央図書館
設備
| 部屋設備 | TV付モニターホン / 下駄箱 / ガスコンロ(コンロ(4口以上)) / エアコン / フローリング / バルコニー / シャワー / 浴室乾燥機 / 追焚き / 室内洗濯機置場 / バストイレ別 / 角部屋 / 2人入居 / シャワー付トイレ / クロゼット / 洗面所独立 / システムキッチン |
|---|---|
| 建物設備 | エレベータ / オートロック / 駐輪場 / 宅配ボックス / ペット可 / 事務所使用可 / デザイナーズマンション / BSアンテナ / CSアンテナ / CATV / 防犯カメラ |
物件詳細
| 交通機関 | ・大阪メトロ長堀鶴見緑地線 西大橋駅(徒歩3分) ・大阪メトロ四つ橋線 四ツ橋駅(徒歩4分) | ||||
|---|---|---|---|---|---|
| 構造 | RC造 | 方位 | 東 | 階数/総階数 | 8階/14階建て |
| 総戸数 | 34戸 | 駐車場 | - | 入居日 | 2026年4月下旬 |
| 環境 | 【公園】新町北公園 (688m) / 【デパート】心斎橋PARCO(パルコ) (742m) / 【スーパー】イオンフードスタイル四ツ橋店 (388m) / 【コンビニエンスストア】ファミリーマート 南堀江一丁目店 (409m) / 【ホームセンター】ホームセンターコーナン西本町店 (1,087m) / 【ドラッグストア】スギ薬局 四ツ橋店 (536m) / 【総合病院】寿楽会(社会医療法人)大野記念病院 (429m) / 【市役所・区役所】大阪市西区役所 (1,027m) / 【図書館】大阪市立中央図書館 (814m) / コンビニ (409m) / スーパー (388m) / 総合病院 (429m) | ||||
| 内装代 | - | 償却 | 0円 | 保険 | 損保要 |
| 更新料 | - | 水道料金等預かり金 | - | 特記事項 | - |
| 飲用水 | 公営 | ガス | 都市 | 排水 | 公共下水 |
| 給湯方式 | - | ||||
その他の費用
| 一時 | コール24:16,500円/退去時エアコン清掃費/台:9,900円/初回駐輪場ステッカー:550円 |
|---|---|
| 他 | エポス初回保証料:50%更新料:800円/月口座振替料:無し |
この物件のお問い合わせ番号 0001-F000062565-0007
類似物件一覧
-
19.4万円
-
-
-
19.5万円
-
2.0ヶ月
2LDK
大阪府大阪市西区江戸堀2丁目 -
20.0万円
-
2.0ヶ月
2LDK
大阪府大阪市西区江戸堀2丁目 -
27.0万円
270,000円
1.0ヶ月
2LDK
大阪府大阪市西区江之子島2丁目 -
19.4万円
-
-
2LDK
大阪府大阪市西区阿波座1丁目 -
19.3万円
-
-
2LDK
大阪府大阪市西区阿波座1丁目 -
31.0万円
155,000円
465,000円
2LDK
大阪府大阪市西区南堀江1丁目 -
29.8万円
-
298,000円
2LDK
大阪府大阪市西区新町3丁目 -
19.1万円
-
-
2LDK
大阪府大阪市西区阿波座1丁目 -
27.5万円
275,000円
2.0ヶ月
2LDK
大阪府大阪市西区江之子島2丁目 -
27.0万円
270,000円
1.0ヶ月
2LDK
大阪府大阪市西区江之子島2丁目 -
22.0万円
235,000円
235,000円
2LDK
大阪府大阪市西区新町1丁目
店舗情報
お電話での物件問い合わせは無料通話で!(直営店のみ)
0001-F000062565-0007
- FC南森町店
- 谷町線 南森町駅(徒歩1分)
- Tel: 06-6356-6161
- 店舗詳細情報
このお部屋にお問い合わせ
あわせて店舗への来店を希望のお客様は、上の希望店舗の来店予約フォームをご利用ください(直営店舗のみ)
Sorry,Japanese & English only. 日本語・英語のみ対応しております。ご了承ください。
- ※取扱形態は媒介(先物)です。 / お部屋の情報は随時更新です / 各種情報と現況に差異がある場合は、現況優先となります。 / 保証会社の審査があります。 / 契約一時金は、契約時に借主より貸主に支払われ返還されない金銭です。

この物件のかんたんお問合せフォーム
お電話でお問合せ
外観・間取り図



















大阪府大阪市西区阿波座1丁目