東三国Noah 物件詳細情報
| 沿線・駅 所在地 |
賃料 共益費(管理費) |
敷金 礼金 |
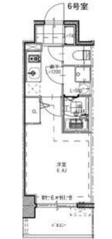
間取り 専有面積 |
種別 建築年月日 |
|
|---|---|---|---|---|---|
|
大阪メトロ御堂筋線 東三国駅(徒歩10分)
大阪府大阪市淀川区十八条1丁目 |
78,000円 12,000円 |
- - |
1K 21.42m2 |
マンション 2024年3月 |
|
この物件のお問い合わせ番号 0001-F000061159-0021
退去時費用清掃代3.3万円(税込)、鍵交換代3.08万円(税込)、AC清掃代1.65万円(税込)/台ペット敷金1ヶ月分必要駐輪場初期登録料5500円(税込) 駐輪場:有料

- 【ファーストフード】ケンタッキー東三国店

- 【ファーストフード】マクドナルド 東三国駅前店

- 【弁当】ほっともっと 東三国6丁目店

- 【その他】吉野家 東三国店

- 【スーパー】業務スーパー新大阪三国店

- 【スーパー】ダイエー 東三国店・イオンフードスタイル

- 【コンビニエンスストア】ファミリーマート東三国三丁目店

- 【コンビニエンスストア】ローソン東三国店
設備
| 部屋設備 | 下駄箱 / ガスコンロ(コンロ(2口)) / エアコン / フローリング / バルコニー / シャワー / 浴室乾燥機 / 室内洗濯機置場 / バストイレ別 / シャワー付トイレ / クロゼット / 洗面所独立 / システムキッチン |
|---|---|
| 建物設備 | エレベータ / オートロック / 駐輪場 / 宅配ボックス / ペット可 / バイク置き場 / ネット利用料無料 / 防犯カメラ |
物件詳細
| 交通機関 | ・大阪メトロ御堂筋線 東三国駅(徒歩10分) ・JR東海道本線 東淀川駅(徒歩19分) | ||||
|---|---|---|---|---|---|
| 構造 | RC造 | 方位 | 階数/総階数 | 7階/10階建て | |
| 総戸数 | - | 駐車場 | 27,500円 | 入居日 | 2026年4月下旬 |
| 環境 | 【ファーストフード】ケンタッキー東三国店 (784m) / 【ファーストフード】マクドナルド 東三国駅前店 (748m) / 【弁当】ほっともっと 東三国6丁目店 (430m) / 【その他】吉野家 東三国店 (757m) / 【スーパー】業務スーパー新大阪三国店 (969m) / 【スーパー】ダイエー 東三国店・イオンフードスタイル (425m) / 【コンビニエンスストア】ファミリーマート東三国三丁目店 (402m) / 【コンビニエンスストア】ローソン東三国店 (231m) / コンビニ (402m) / スーパー (969m) | ||||
| 内装代 | - | 償却 | 0円 | 保険 | 損保要 |
| 更新料 | 78,000円 | 水道料金等預かり金 | - | 特記事項 | - |
| 飲用水 | 公営 | ガス | 都市 | 排水 | 公共下水 |
| 給湯方式 | - | ||||
その他の費用
| 他 | 【K−B1(更ベーシック1)】初回保証料30%、月次保証料330円、更新料1万円/年 |
|---|
この物件のお問い合わせ番号 0001-F000061159-0021
類似物件一覧
-
6.8万円
68,000円
2.0ヶ月
-
8.4万円
-
-
1DK
大阪府大阪市淀川区新高4丁目 -
7.5万円
-
-
1K
大阪府大阪市淀川区宮原1丁目 -
5.5万円
-
55,000円
1K
大阪府大阪市淀川区十三東3丁目 -
8.0万円
-
160,000円
1DK
大阪府大阪市淀川区西宮原2丁目 -
7.8万円
-
87,500円
1DK
大阪府大阪市淀川区新高1丁目 -
5.6万円
-
66,000円
1K
大阪府大阪市淀川区西中島6丁目 -
5.6万円
-
61,500円
1K
大阪府大阪市淀川区宮原1丁目 -
6.8万円
-
1.0ヶ月
1K
大阪府大阪市淀川区十三本町1丁目 -
8.8万円
-
88,000円
1DK
大阪府大阪市淀川区宮原2丁目 -
8.2万円
-
100,000円
1K
大阪府大阪市淀川区東三国6丁目 -
5.8万円
-
-
1K
大阪府大阪市淀川区新北野3丁目
店舗情報
お電話での物件問い合わせは無料通話で!(直営店のみ)
0001-F000061159-0021
- FC東三国店
- 御堂筋線 東三国駅(徒歩1分)
- Tel: 06-6399-3251
- 店舗詳細情報
このお部屋にお問い合わせ
あわせて店舗への来店を希望のお客様は、上の希望店舗の来店予約フォームをご利用ください(直営店舗のみ)
Sorry,Japanese & English only. 日本語・英語のみ対応しております。ご了承ください。
- ※取扱形態は媒介(先物)です。 / お部屋の情報は随時更新です / 各種情報と現況に差異がある場合は、現況優先となります。 / 保証会社の審査があります。 / 契約一時金は、契約時に借主より貸主に支払われ返還されない金銭です。

この物件のかんたんお問合せフォーム
お電話でお問合せ
外観・間取り図






















大阪府大阪市淀川区東三国4丁目