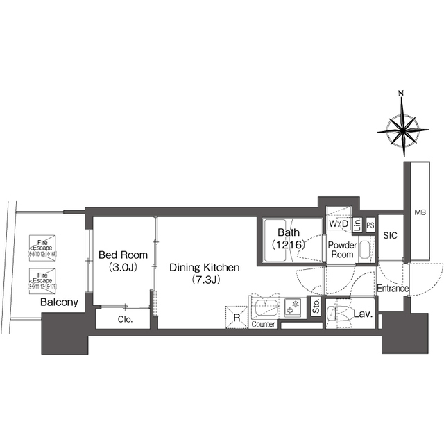
大阪府大阪市西区立売堀3丁目 1DK 29.22m2 物件詳細情報
このお部屋は募集を終了しました
ただいまこのお部屋は入居募集を終了しており、募集時の情報となっております。お部屋探しの参考としてご利用ください。募集が再度開始しましたら、こちらのページで詳細情報を掲載の上募集開始致します。情報掲載日:2025/04/08
| 沿線・駅 所在地 |
間取り 専有面積 |
種別 建築年月日 |
|
|---|---|---|---|
|
大阪メトロ中央線 阿波座駅(徒歩1分)
大阪府大阪市西区立売堀3丁目 |
1DK 29.22m2 |
マンション 2025年2月 |
|
この物件のお問い合わせ番号 0001-F000058867-0078
設備
| 部屋設備 | TV付モニターホン / ガスコンロ(コンロ(2口)) / エアコン / フローリング / ウォークインクロゼット / バルコニー / シャワー / 浴室乾燥機 / 洗髪洗面化粧台 / 室内洗濯機置場 / バストイレ別 / シャワー付トイレ / 洗面所独立 / システムキッチン |
|---|---|
| 建物設備 | エレベータ / オートロック / 駐輪場 / 宅配ボックス / ペット可 / バイク置き場 / ネット利用料無料 / 防犯カメラ |
物件詳細
| 交通機関 | ・大阪メトロ中央線 阿波座駅(徒歩1分) ・大阪メトロ四つ橋線 本町駅(徒歩9分) | ||||
|---|---|---|---|---|---|
| 構造 | RC造 | 総階数 | 17階建て | ||
| 総戸数 | 130戸 | 入居日 | 入居不可(募集終了) | ||
| 飲用水 | 公営 | ガス | 都市 | 排水 | 公共下水 |
| 給湯方式 | - | ||||
この物件のお問い合わせ番号 0001-F000058867-0078
類似物件一覧
-
9.1万円
-
-
-
8.3万円
-
-
1DK
大阪府大阪市西区川口3丁目 -
10.2万円
-
-
1R
大阪府大阪市西区靱本町1丁目 -
12.7万円
-
127,000円
1LDK
大阪府大阪市西区京町堀3丁目 -
10.0万円
-
1.0ヶ月
1LDK
大阪府大阪市西区本田4丁目 -
8.3万円
-
-
1R
大阪府大阪市西区川口1丁目 -
8.4万円
-
-
1R
大阪府大阪市西区川口1丁目 -
9.3万円
-
1.0ヶ月
1DK
大阪府大阪市西区立売堀3丁目 -
13.7万円
-
-
1LDK
大阪府大阪市西区立売堀6丁目 -
8.2万円
-
82,000円
1K
大阪府大阪市西区新町3丁目 -
7.6万円
-
-
1K
大阪府大阪市西区川口2丁目 -
7.9万円
-
1.0ヶ月
1K
大阪府大阪市西区立売堀1丁目
店舗情報
お電話での物件問い合わせは無料通話で!(直営店のみ)
0001-F000058867-0078
- FC天六店
- 谷町線 天神橋筋六丁目駅(徒歩1分)
- Tel: 06-6882-4008
- 店舗詳細情報
このお部屋に似ている物件を問い合わせる
あわせて店舗への来店を希望のお客様は、上の希望店舗の来店予約フォームをご利用ください(直営店舗のみ)
Sorry,Japanese & English only. 日本語・英語のみ対応しております。ご了承ください。
- ※各種情報と現況に差異がある場合は、現況優先となります。

似た物件を問い合わせる
お電話でお問合せ
間取り図

大阪府大阪市西区九条1丁目