大阪府吹田市江の木町 1K 25.28m2 物件詳細情報
| 沿線・駅 所在地 |
賃料 共益費(管理費) |
敷金 礼金 |
間取り 専有面積 |
種別 建築年月日 |
|
|---|---|---|---|---|---|
|
大阪メトロ御堂筋線 江坂駅(徒歩2分)
大阪府吹田市江の木町 |
80,500円 12,000円 |
- 80,500円 |
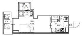
1K 25.28m2 |
マンション 2022年8月 |
|
この物件のお問い合わせ番号 0001-F000058607-0016
外観・間取り図
情報登録日:2026/03/12 情報更新日:2026/03/13 次回更新予定日:2026/03/20
設備
| 部屋設備 | TV付モニターホン / 下駄箱 / ガスコンロ(コンロ(2口)) / エアコン / シャワー / 浴室乾燥機 / 洗髪洗面化粧台 / バストイレ別 / 角部屋 / 2人入居 / シャワー付トイレ / クロゼット / 洗面所独立 / システムキッチン |
|---|---|
| 建物設備 | オートロック / 駐輪場 / 宅配ボックス / BSアンテナ / CSアンテナ / ネット利用料無料 / 防犯カメラ |
物件詳細
| 交通機関 | ・大阪メトロ御堂筋線 江坂駅(徒歩2分) ・北大阪急行南北線 江坂駅(徒歩2分) | ||||
|---|---|---|---|---|---|
| 構造 | RC造 | 方位 | 西 | 階数/総階数 | 4階/15階建て |
| 総戸数 | 84戸 | 駐車場 | - | 入居日 | 相談 |
| 環境 | |||||
| 内装代 | - | 償却 | 0円 | 保険 | 損保要 |
| 更新料 | 80,500円 | 水道料金等預かり金 | - | 特記事項 | - |
| 飲用水 | - | ガス | 都市 | 排水 | その他 |
| 給湯方式 | - | ||||
その他の費用
| 他 | 【特別コースSA】初回保証料50%、更新料1.2万円/年、口振手数料330円(税込) |
|---|
この物件のお問い合わせ番号 0001-F000058607-0016
類似物件一覧
-
7.3万円
-
73,000円
-
5.8万円
-
58,000円
1K
大阪府吹田市泉町5丁目 -
7.0万円
-
2.0ヶ月
1K
大阪府吹田市豊津町 -
6.7万円
-
146,000円
1K
大阪府吹田市山田東4丁目 -
10.3万円
-
1.0ヶ月
1DK
大阪府吹田市垂水町3丁目 -
7.2万円
-
3.0ヶ月
1K
大阪府吹田市垂水町3丁目 -
6.6万円
-
1.0ヶ月
1R
大阪府吹田市上山手町 -
6.6万円
-
132,000円
1K
大阪府吹田市古江台5丁目 -
8.1万円
-
2.0ヶ月
1DK
大阪府吹田市南吹田5丁目 -
7.2万円
-
-
1K
大阪府吹田市江の木町 -
7.6万円
100,000円
300,000円
1R
大阪府吹田市山田東4丁目 -
7.3万円
73,300円
-
1K
大阪府吹田市垂水町3丁目
店舗情報
お電話での物件問い合わせは無料通話で!(直営店のみ)
0001-F000058607-0016
- 三重法人部
- 059-356-8041
- 三重県四日市市鵜の森1丁目1-19太平洋鵜の森ビル5階
このお部屋にお問い合わせ
あわせて店舗への来店を希望のお客様は、上の希望店舗の来店予約フォームをご利用ください(直営店舗のみ)
Sorry,Japanese & English only. 日本語・英語のみ対応しております。ご了承ください。
- ※取扱形態は媒介(先物)です。 / お部屋の情報は随時更新です / 各種情報と現況に差異がある場合は、現況優先となります。 / 保証会社の審査があります。 / 契約一時金は、契約時に借主より貸主に支払われ返還されない金銭です。

この物件のかんたんお問合せフォーム
お電話でお問合せ(法人用)


















大阪府吹田市垂水町3丁目