コンフォリア・リヴ新大阪西宮原ソルテラス 物件詳細情報
| 沿線・駅 所在地 |
賃料 共益費(管理費) |
敷金 礼金 |
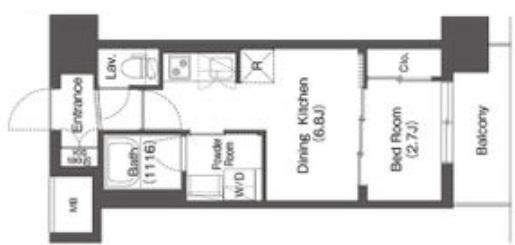
間取り 専有面積 |
種別 建築年月日 |
|
|---|---|---|---|---|---|
|
JR東海道本線 新大阪駅(徒歩10分)
大阪府大阪市淀川区西宮原2丁目 |
103,000円 12,000円 |
- - |
1LDK 26.27m2 |
マンション 2025年3月 |
|
この物件のお問い合わせ番号 0001-F000058270-0057
平面駐車場:屋内30800円・屋外27500円、敷金1ヶ月 駐輪上段110円/下段330円、ステッカー代440円 ペット可(2・3階限定)、2階のみ大型犬または多頭飼い相談可3階は小型犬または猫1匹まで、敷金1ヶ月及び共益費3000円積増

- 【ファミリーレストラン】サイゼリア新大阪西宮原店

- 【喫茶店・カフェ】スターバックスコーヒー新大阪ニッセイビル店

- 【ファーストフード】ドミノピザ東三国店

- 【ファーストフード】モスバーガーニッセイ新大阪ビル店

- 【弁当】ほっかほっか亭 西宮原店

- 【弁当】ほっかほっか亭 東三国店

- 【公園】北中島公園

- 【スーパー】Foods Market satake新大阪店

- 【スーパー】グルメシティ新大阪店
設備
| 部屋設備 | TV付モニターホン / 下駄箱 / ガスコンロ / エアコン / フローリング / ウォークインクロゼット / バルコニー / シャワー / 浴室乾燥機 / 洗髪洗面化粧台 / 室内洗濯機置場 / バストイレ別 / シャワー付トイレ / クロゼット / 洗面所独立 / カウンターキッチン / システムキッチン |
|---|---|
| 建物設備 | エレベータ / オートロック / 駐輪場 / 宅配ボックス / ペット可 / BSアンテナ / CSアンテナ / CATV / ネット利用料無料 / 防犯カメラ |
物件詳細
| 交通機関 | ・JR東海道本線 新大阪駅(徒歩10分) ・大阪メトロ御堂筋線 東三国駅(徒歩13分) | ||||
|---|---|---|---|---|---|
| 構造 | RC造 | 方位 | 南 | 階数/総階数 | 7階/12階建て |
| 総戸数 | - | 駐車場 | - | 入居日 | 2026年5月上旬 |
| 環境 | 【ファミリーレストラン】サイゼリア新大阪西宮原店 (467m) / 【喫茶店・カフェ】スターバックスコーヒー新大阪ニッセイビル店 (518m) / 【ファーストフード】ドミノピザ東三国店 (534m) / 【ファーストフード】モスバーガーニッセイ新大阪ビル店 (652m) / 【弁当】ほっかほっか亭 西宮原店 (426m) / 【弁当】ほっかほっか亭 東三国店 (351m) / 【公園】北中島公園 (360m) / 【スーパー】Foods Market satake新大阪店 (596m) / 【スーパー】グルメシティ新大阪店 (446m) / スーパー (596m) | ||||
| 内装代 | - | 償却 | 0円 | 保険 | 損保要 |
| 更新料 | 30,000円 | 水道料金等預かり金 | - | 特記事項 | - |
| 飲用水 | 公営 | ガス | - | 排水 | 公共下水 |
| 給湯方式 | - | ||||
その他の費用
| 他 | エポスカード(RP)保証料:賃料等の50%(最低2万)、月額保証料:賃料等の1%(更新料無) |
|---|
この物件のお問い合わせ番号 0001-F000058270-0057
類似物件一覧
-
12.6万円
-
-
-
11.1万円
-
-
1LDK
大阪府大阪市淀川区木川東3丁目 -
10.6万円
-
1.0ヶ月
1LDK
大阪府大阪市淀川区田川3丁目 -
10.5万円
-
1.0ヶ月
1LDK
大阪府大阪市淀川区田川3丁目 -
12.2万円
122,000円
-
1LDK
大阪府大阪市淀川区新北野1丁目 -
12.5万円
-
400,000円
1LDK
大阪府大阪市淀川区西中島2丁目 -
10.4万円
-
1.0ヶ月
1LDK
大阪府大阪市淀川区田川3丁目 -
9.4万円
-
-
1DK
大阪府大阪市淀川区木川東4丁目 -
12.4万円
124,000円
-
1LDK
大阪府大阪市淀川区新北野1丁目 -
7.9万円
-
1.0ヶ月
1LDK
大阪府大阪市淀川区十三本町1丁目 -
8.0万円
-
160,000円
1DK
大阪府大阪市淀川区西宮原2丁目 -
11.8万円
-
1.0ヶ月
1LDK
大阪府大阪市淀川区田川3丁目
店舗情報
お電話での物件問い合わせは無料通話で!(直営店のみ)
0001-F000058270-0057
- 中部法人部
- 0800-888-3215
- 愛知県名古屋市中区錦3丁目16−27 栄パークサイドプレイス12F
このお部屋にお問い合わせ
あわせて店舗への来店を希望のお客様は、上の希望店舗の来店予約フォームをご利用ください(直営店舗のみ)
Sorry,Japanese & English only. 日本語・英語のみ対応しております。ご了承ください。
- ※取扱形態は媒介(先物)です。 / お部屋の情報は随時更新です / 各種情報と現況に差異がある場合は、現況優先となります。 / 保証会社の審査があります。 / 契約一時金は、契約時に借主より貸主に支払われ返還されない金銭です。

この物件のかんたんお問合せフォーム
お電話でお問合せ(法人用)
外観・間取り図























大阪府大阪市淀川区三国本町1丁目