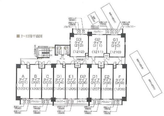
大阪府大阪市東成区中本2丁目 1K 24.75m2 物件詳細情報
| 沿線・駅 所在地 |
賃料 共益費(管理費) |
敷金 礼金 |
間取り 専有面積 |
種別 建築年月日 |
|
|---|---|---|---|---|---|
|
大阪メトロ中央線 緑橋駅(徒歩4分)
大阪府大阪市東成区中本2丁目 |
68,300円 5,700円 |
- 74,000円 |
1K 24.75m2 |
マンション 2019年9月 |
|
この物件のお問い合わせ番号 0001-F000053662-0010
1年未満の解約の場合、賃料・共益費の1ヶ月分の短期違約金有り

- 【公園】神路公園

- 【スーパー】スーパーマーケット コノミヤ 緑橋店
設備
| 部屋設備 | TV付モニターホン / 下駄箱 / ガスコンロ(コンロ(2口)) / エアコン / フローリング / バルコニー / 浴室乾燥機 / 洗髪洗面化粧台 / 室内洗濯機置場 / バストイレ別 / シャワー付トイレ / クロゼット / 洗面所独立 / システムキッチン |
|---|---|
| 建物設備 | エレベータ / オートロック / 駐輪場 / 宅配ボックス / ペット可 / BSアンテナ / CSアンテナ / CATV / ネット利用料無料 / 防犯カメラ |
物件詳細
| 交通機関 | ・大阪メトロ中央線 緑橋駅(徒歩4分) ・JR大阪環状線 森ノ宮駅(徒歩10分) | ||||
|---|---|---|---|---|---|
| 構造 | RC造 | 方位 | 南東 | 階数/総階数 | 8階/13階建て |
| 総戸数 | 141戸 | 駐車場 | 13,000円 | 入居日 | 2026年1月上旬 |
| 環境 | 【公園】神路公園 (891m) / 【スーパー】スーパーマーケット コノミヤ 緑橋店 (283m) / コンビニ (364m) / スーパー (283m) | ||||
| 内装代 | - | 償却 | 0円 | 保険 | 損保要 |
| 更新料 | - | 水道料金等預かり金 | - | 特記事項 | - |
| 飲用水 | 公営 | ガス | 都市 | 排水 | 公共下水 |
| 給湯方式 | - | ||||
その他の費用
| 一時 | エスリードクラブ:19,800円 |
|---|---|
| 他 | JEI初回50%毎年1万円 |
この物件のお問い合わせ番号 0001-F000053662-0010
類似物件一覧
-
7.3万円
-
100,000円
-
8.0万円
-
-
1DK
大阪府大阪市東成区深江南3丁目 -
6.8万円
-
-
1K
大阪府大阪市東成区中本5丁目 -
6.6万円
-
-
1K
大阪府大阪市東成区中本5丁目 -
7.1万円
-
1.0ヶ月
1R
大阪府大阪市東成区中道1丁目 -
8.0万円
-
-
1DK
大阪府大阪市東成区深江南3丁目 -
6.8万円
-
-
1K
大阪府大阪市東成区中本2丁目 -
6.7万円
-
-
1K
大阪府大阪市東成区中本2丁目 -
7.9万円
-
-
1DK
大阪府大阪市東成区深江南3丁目 -
7.2万円
-
100,000円
1K
大阪府大阪市東成区東小橋1丁目 -
6.7万円
67,000円
-
1R
大阪府大阪市東成区深江北3丁目 -
6.8万円
-
-
1K
大阪府大阪市東成区中本2丁目
店舗情報
お電話での物件問い合わせは無料通話で!(直営店のみ)
0001-F000053662-0010
- FC天満橋店
- 谷町線 天満橋駅(徒歩1分)
- Tel: 06-6920-4848
- 店舗詳細情報
このお部屋にお問い合わせ
あわせて店舗への来店を希望のお客様は、上の希望店舗の来店予約フォームをご利用ください(直営店舗のみ)
Sorry,Japanese & English only. 日本語・英語のみ対応しております。ご了承ください。
- ※取扱形態は媒介(先物)です。 / お部屋の情報は随時更新です / 各種情報と現況に差異がある場合は、現況優先となります。 / 保証会社の審査があります。 / 契約一時金は、契約時に借主より貸主に支払われ返還されない金銭です。

この物件のかんたんお問合せフォーム
お電話でお問合せ
外観・間取り図

























大阪府大阪市東成区東小橋1丁目