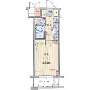
大阪府大阪市北区長柄西2丁目 1K 20.62m2 物件詳細情報
| 沿線・駅 所在地 |
賃料 共益費(管理費) |
敷金 礼金 |
間取り 専有面積 |
種別 建築年月日 |
|
|---|---|---|---|---|---|
|
大阪メトロ谷町線 天神橋筋六丁目駅(徒歩13分)
大阪府大阪市北区長柄西2丁目 |
57,000円 9,900円 |
- - |
1K 20.62m2 |
分譲賃貸 2009年7月 |
|
この物件のお問い合わせ番号 0001-F000052150-0021
退去時室内クリーニング代 平米数×1540円(税込) 短期解約違約金 1年未満の解約は家賃・共益費の2ヶ月分(条件により1ヶ月分の場合あり)/2年未満の解約は家賃・共益費の1ヶ月分。「ペット可」物件の飼育時費用 登録料 別途確認/消毒費用 22000円(税込)退去時 猫飼育可能物件は条件あり。

- 【コンビニエンスストア】ファミリーマート 長柄店

- 【コンビニエンスストア】セブンイレブン 大阪天神橋8丁目店

- 【郵便局】大阪天神橋八郵便局

- 【スーパー】サボイ天六味道館

- 【スーパー】ライフ 本庄店

- 【総合病院】加納総合病院

- 【警察】大淀警察署 本庄交番
設備
| 部屋設備 | フローリング / バルコニー / シャワー / 浴室乾燥機 / 室内洗濯機置場 / バストイレ別 / エアコン / ガスコンロ(コンロ(2口)) / 下駄箱 / TV付モニターホン / 保証人不要 / 2人入居 / 洗面所独立 |
|---|---|
| 建物設備 | エレベータ / オートロック / 駐輪場 / ペット可 / ネット利用料無料 |
物件詳細
| 交通機関 | ・大阪メトロ谷町線 天神橋筋六丁目駅(徒歩13分) ・JR大阪環状線 天満駅(徒歩21分) | ||||
|---|---|---|---|---|---|
| 構造 | RC造 | 方位 | 南 | 階数/総階数 | 3階/13階建て |
| 総戸数 | 144戸 | 駐車場 | - | 入居日 | 相談 |
| 環境 | 【コンビニエンスストア】ファミリーマート 長柄店 (130m) / 【コンビニエンスストア】セブンイレブン 大阪天神橋8丁目店 (380m) / 【郵便局】大阪天神橋八郵便局 (215m) / 【スーパー】サボイ天六味道館 (696m) / 【スーパー】ライフ 本庄店 (911m) / 【総合病院】加納総合病院 (757m) / 【警察】大淀警察署 本庄交番 (1,071m) / コンビニ (130m) / スーパー (696m) / 総合病院 (757m) | ||||
| 内装代 | - | 償却 | 0円 | 保険 | 損保要 |
| 更新料 | - | 水道料金等預かり金 | - | 特記事項 | - |
| 飲用水 | 公営 | ガス | 都市 | 排水 | 公共下水 |
| 給湯方式 | - | ||||
その他の費用
| 一時 | 初期費用:エステム安心クラブ入会金、ペット登録料(:21,500円/ランニング費用:エステム安心クラブ(月額)、更新事:17,490円/その他費用:消毒費(ペット飼育時)(退去時)、エア:35,200円 |
|---|---|
| 他 | 初回保証料:総賃料の50%月額更新料:総賃料の1.5%初回保証料は決済金預かりです |
この物件のお問い合わせ番号 0001-F000052150-0021
類似物件一覧
-
6.4万円
-
108,150円
-
7.3万円
81,000円
-
1K
大阪府大阪市北区長柄東3丁目 -
7.4万円
-
1.0ヶ月
1K
大阪府大阪市北区西天満3丁目 -
7.2万円
-
-
1K
大阪府大阪市北区大淀中2丁目 -
7.4万円
81,000円
162,000円
1K
大阪府大阪市北区紅梅町 -
7.1万円
-
160,000円
1K
大阪府大阪市北区中津6丁目 -
6.9万円
-
-
1K
大阪府大阪市北区大淀中5丁目 -
5.0万円
-
1.0ヶ月
1K
大阪府大阪市北区長柄中3丁目 -
7.2万円
-
100,000円
1K
大阪府大阪市北区天満2丁目 -
5.3万円
-
50,000円
1DK
大阪府大阪市北区本庄東2丁目 -
6.1万円
-
90,000円
1K
大阪府大阪市北区大淀中4丁目 -
7.3万円
81,000円
-
1K
大阪府大阪市北区長柄東3丁目
店舗情報
お電話での物件問い合わせは無料通話で!(直営店のみ)
0001-F000052150-0021
- 三重法人部
- 059-356-8041
- 三重県四日市市鵜の森1丁目1-19太平洋鵜の森ビル5階
このお部屋にお問い合わせ
あわせて店舗への来店を希望のお客様は、上の希望店舗の来店予約フォームをご利用ください(直営店舗のみ)
Sorry,Japanese & English only. 日本語・英語のみ対応しております。ご了承ください。
- ※取扱形態は媒介(先物)です。 / お部屋の情報は随時更新です / 各種情報と現況に差異がある場合は、現況優先となります。 / 保証会社の審査があります。 / 契約一時金は、契約時に借主より貸主に支払われ返還されない金銭です。

この物件のかんたんお問合せフォーム
お電話でお問合せ(法人用)
外観・間取り図



















大阪府大阪市北区中津6丁目