リヴィエール江坂江の木公園 物件詳細情報
| 沿線・駅 所在地 |
賃料 共益費(管理費) |
敷金 礼金 |
間取り 専有面積 |
種別 建築年月日 |
|
|---|---|---|---|---|---|
|
大阪メトロ御堂筋線 江坂駅(徒歩4分)
大阪府吹田市江の木町 |
151,000円 8,000円 |
- 302,000円 |
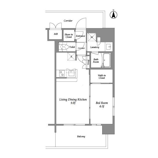
1LDK 36.51m2 |
マンション 2025年1月 |
|
この物件のお問い合わせ番号 0001-F000046911-0028
外観・間取り図
情報登録日:2026/04/05 情報更新日:2026/04/06 次回更新予定日:2026/04/13
設備
| 部屋設備 | TV付モニターホン / エアコン / フローリング / ウォークインクロゼット / トランクルーム / 浴室乾燥機 / 追焚き / 室内洗濯機置場 / バストイレ別 / シャワー付トイレ |
|---|---|
| 建物設備 | エレベータ / オートロック / 駐輪場 / 宅配ボックス / BSアンテナ / CSアンテナ / バイク置き場 / ネット利用料無料 / 防犯カメラ |
物件詳細
| 交通機関 | ・大阪メトロ御堂筋線 江坂駅(徒歩4分) | ||||
|---|---|---|---|---|---|
| 構造 | RC造 | 方位 | 南 | 階数/総階数 | 13階/14階建て |
| 総戸数 | 65戸 | 駐車場 | - | 入居日 | 2026年5月下旬 |
| 環境 | |||||
| 内装代 | - | 償却 | 0円 | 保険 | 損保要 |
| 更新料 | 151,000円 | 水道料金等預かり金 | - | 特記事項 | - |
| 飲用水 | - | ガス | - | 排水 | その他 |
| 給湯方式 | - | ||||
その他の費用
| 一時 | 鍵交換代:27,500円/駐輪場ステッカー:440円 |
|---|---|
| 他 | エポスカード(RP)保証料:賃料等の50%(最低2万)、月額保証料:賃料等の1%(更新料無) |
この物件のお問い合わせ番号 0001-F000046911-0028
類似物件一覧
-
11.0万円
-
220,000円
-
14.5万円
-
300,000円
1SLDK
大阪府吹田市山田東4丁目 -
10.7万円
-
-
1DK
大阪府吹田市江坂町2丁目 -
11.4万円
-
228,000円
1LDK
大阪府吹田市広芝町 -
13.6万円
-
150,000円
1LDK
大阪府吹田市広芝町 -
10.6万円
-
212,000円
1DK
大阪府吹田市千里万博公園 -
15.0万円
-
-
1LDK
大阪府吹田市広芝町 -
11.4万円
114,000円
250,000円
1LDK
大阪府吹田市広芝町 -
10.7万円
-
-
1LDK
大阪府吹田市豊津町 -
12.8万円
-
2.0ヶ月
1LDK
大阪府吹田市江の木町 -
11.8万円
-
-
1LDK
大阪府吹田市垂水町3丁目 -
14.4万円
-
-
1LDK
大阪府吹田市広芝町
店舗情報
お電話での物件問い合わせは無料通話で!(直営店のみ)
0001-F000046911-0028
- FC北千里店
- 阪急電鉄千里線 北千里駅(徒歩1分)
- Tel: 06-6836-4455
- 店舗詳細情報
このお部屋にお問い合わせ
あわせて店舗への来店を希望のお客様は、上の希望店舗の来店予約フォームをご利用ください(直営店舗のみ)
Sorry,Japanese & English only. 日本語・英語のみ対応しております。ご了承ください。
- ※取扱形態は媒介(先物)です。 / お部屋の情報は随時更新です / 各種情報と現況に差異がある場合は、現況優先となります。 / 保証会社の審査があります。 / 契約一時金は、契約時に借主より貸主に支払われ返還されない金銭です。

この物件のかんたんお問合せフォーム
お電話でお問合せ




大阪府吹田市千里万博公園